|
|
|
| Larry Stein Oklahoma County Assessor (405) 713-1200 - Public Access System |
|
|
|
|
|
|
| Real Property Display - Screen Produced 4/6/2026 8:40:39 AM | ||||
|---|---|---|---|---|
| Account: R153753325 | Type: Residential | Location: |
1624 HANNA DR |
|
| Building Name/Occupant: |
|
DEL CITY |
||
| Owner Name 1: | COMBS ARTHUR L |
Parcel PIN#: |
1432-15-375-3325 |
|
| Owner Name 2: | COMBS SHARLETT N | 1/4 section #: |
1432 |
|
| Owner Name 3: | Parent Acct: |
|
||
| Billing Address: | PO BOX 11511 | Tax District: |
|
|
| City, State, Zip | OKLAHOMA CITY, OK 73136-0511 | School System: |
Mid-Del #52 |
|
|
Country: (If noted) |
Land Size: |
0.1722 Acres |
||
|
Land Value: 24,000 |
|
|||
|
Sect 8-T11N-R2W Qtr NW |
EPPERLY HEIGHTS 7TH
Block
003
Lot
007
|
|||
| Full Legal Description: EPPERLY HEIGHTS 7TH 003 007 |
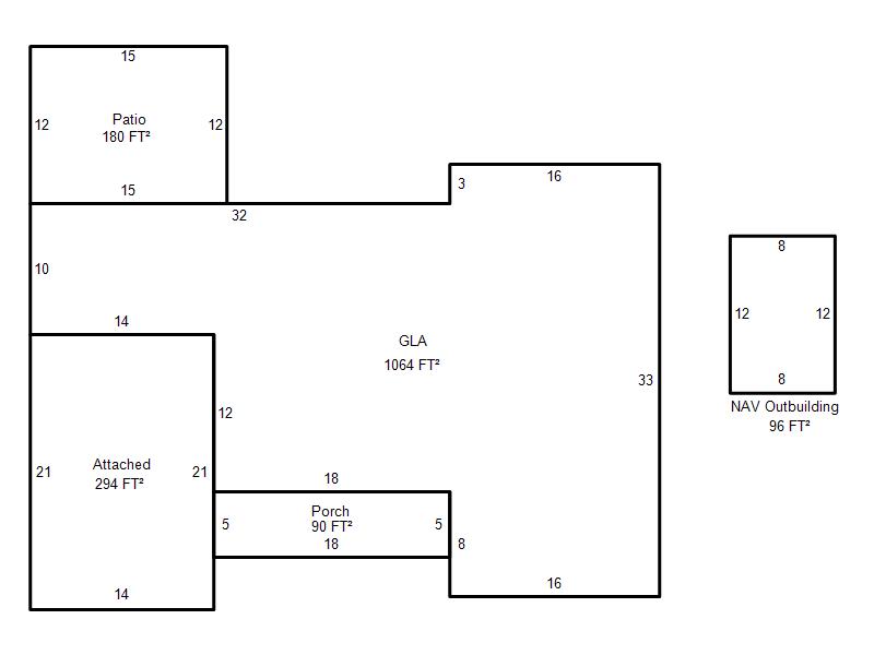
| Photo & Sketch (if available) | Comp Sales (ordered by relevancy) |
|
||||||||||||||||||
|
||||||||||||||||||||
| Value History (*The County Treasurer 405-713-1300 posts & collects actual tax amounts. Contact information HERE) | |||||||||||||
|---|---|---|---|---|---|---|---|---|---|---|---|---|---|
| Year | Market Value | Taxable Mkt Value | Gross Assessed | Exemption | Net Assessed | Millage | Est. Tax | Tax Savings | |||||
|
2026 |
116,500 |
85,094 |
9,359 |
0 |
9,359 |
114.72 |
$1,074 |
$396 |
|||||
|
2025 |
113,000 |
81,042 |
8,914 |
0 |
8,914 |
114.72 |
$1,023 |
$403 |
|||||
|
2024 |
102,500 |
77,183 |
8,489 |
0 |
8,489 |
117.21 |
$995 |
$326 |
|||||
|
2023 |
88,500 |
73,508 |
8,085 |
0 |
8,085 |
112.46 |
$909 |
$185 |
|||||
|
2022 |
77,000 |
70,008 |
7,700 |
0 |
7,700 |
110.76 |
$853 |
$85 |
|||||
| Property Account Status/Adjustments/Exemptions | ||
|---|---|---|
| Account # | Exemption Description | Amount |
|
R153753325 |
5% Capped Account |
0 |
| Property Deed Transaction History (Recorded in the County Clerk's Office) | |||||||
|---|---|---|---|---|---|---|---|
| Date | Type | Book | Page | Price | Grantor | Grantee | |
|
10/13/2010 |
|
Deeds |
$54,000 |
WRIGHT JANET L |
COMBS ARTHUR L |
||
|
4/29/1996 |
|
Historical |
$0 |
MCDARIS JANET L |
WRIGHT JANET L |
||
|
12/1/1981 |
|
Historical |
$0 |
|
MCDARIS JANET L |
||
| Last Mailed Notice of Value (N.O.V.) Information/History | ||||||||
|---|---|---|---|---|---|---|---|---|
| Year | Date | Market Value | Taxable Market Value | Gross Assessed | Exemption | Net Assessed | ||
|
2026 |
02/06/2026 |
116,500 |
85,094 |
9,359 |
0 |
9,359 |
||
|
2025 |
01/31/2025 |
113,000 |
81,042 |
8,914 |
0 |
8,914 |
||
|
2024 |
01/22/2024 |
102,500 |
77,183 |
8,489 |
0 |
8,489 |
||
|
2023 |
01/23/2023 |
88,500 |
73,508 |
8,085 |
0 |
8,085 |
||
|
2022 |
02/22/2022 |
77,000 |
70,008 |
7,700 |
0 |
7,700 |
||
| Property Building Permit History | |||||||||||
|---|---|---|---|---|---|---|---|---|---|---|---|
| Issued | Permit # | Provided by | Bldg # | Description | Est Construction Cost | Status | |||||
| No Building Permit records returned. | |||||||||||
| Click button on building number to access detailed information: | ||||||
|---|---|---|---|---|---|---|
| Bldg # | Vacant/Improved Land | Bldg Description | Year Built | SqFt | # Stories | |
|
1 |
Improved |
Ranch 1 Story |
1953 |
1,064 |
1 Stories |
|