|
|
|
| Larry Stein Oklahoma County Assessor (405) 713-1200 - Public Access System |
|
|
|
|
|
|
| Real Property Display - Screen Produced 4/6/2026 8:42:36 AM | ||||
|---|---|---|---|---|
| Account: R153753355 | Type: Residential | Location: |
1628 HANNA DR |
|
| Building Name/Occupant: |
|
DEL CITY |
||
| Owner Name 1: | FERRARI MAZZO MARIA CARMELLA |
Parcel PIN#: |
1432-15-375-3355 |
|
| Owner Name 2: | 1/4 section #: |
1432 |
||
| Owner Name 3: | Parent Acct: |
|
||
| Billing Address: | 1628 HANNA DR | Tax District: |
|
|
| City, State, Zip | DEL CITY, OK 73115 | School System: |
Mid-Del #52 |
|
|
Country: (If noted) |
Land Size: |
0.1722 Acres |
||
|
Land Value: 24,000 |
|
|||
|
Sect 8-T11N-R2W Qtr NW |
EPPERLY HEIGHTS 7TH
Block
003
Lot
008
|
|||
| Full Legal Description: EPPERLY HEIGHTS 7TH 003 008 |
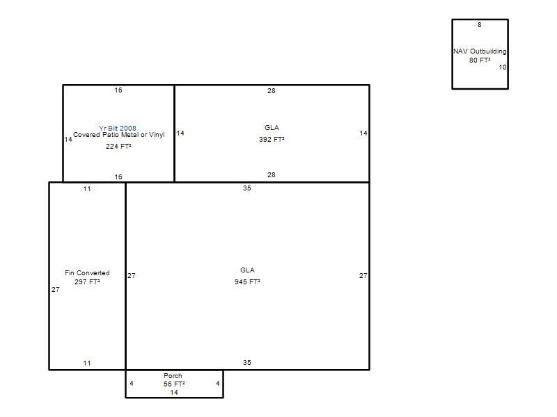
| Photo & Sketch (if available) | Comp Sales (ordered by relevancy) |
|
||||||||||||||||||
|
||||||||||||||||||||
| Value History (*The County Treasurer 405-713-1300 posts & collects actual tax amounts. Contact information HERE) | |||||||||||||
|---|---|---|---|---|---|---|---|---|---|---|---|---|---|
| Year | Market Value | Taxable Mkt Value | Gross Assessed | Exemption | Net Assessed | Millage | Est. Tax | Tax Savings | |||||
|
2026 |
169,000 |
127,301 |
14,003 |
1,000 |
13,003 |
114.72 |
$1,492 |
$641 |
|||||
|
2025 |
167,000 |
127,301 |
14,002 |
1,000 |
13,002 |
114.72 |
$1,492 |
$616 |
|||||
|
2024 |
155,000 |
123,594 |
13,594 |
1,000 |
12,594 |
117.21 |
$1,476 |
$522 |
|||||
|
2023 |
135,000 |
119,995 |
13,199 |
1,000 |
12,199 |
112.46 |
$1,372 |
$298 |
|||||
|
2022 |
116,500 |
116,500 |
12,815 |
1,000 |
11,815 |
110.76 |
$1,309 |
$111 |
|||||
| Property Account Status/Adjustments/Exemptions | ||
|---|---|---|
| Account # | Exemption Description | Amount |
|
R153753355 |
Freeze Senior Valuation |
0 |
|
R153753355 |
3% Cap Homestead |
0 |
|
R153753355 |
Homestead |
1,000 |
| Property Deed Transaction History (Recorded in the County Clerk's Office) | |||||||
|---|---|---|---|---|---|---|---|
| Date | Type | Book | Page | Price | Grantor | Grantee | |
|
1/22/2021 |
|
Deeds |
$120,000 |
KRAETZER JEFFERY C |
FERRARI MAZZO MARIA CARMELLA |
||
|
2/16/2010 |
|
Deeds |
$80,000 |
STRAUGHN FRANCES |
KRAETZER JEFFERY C |
||
|
6/14/1994 |
|
Historical |
$0 |
STRAUGHN FRANCES |
STRAUGHN FRANCES |
||
|
10/25/1993 |
|
Historical |
$0 |
STRAUGHN DORA M |
STRAUGHN FRANCES |
||
|
2/1/1984 |
|
Historical |
$0 |
|
STRAUGHN DORA M |
||
| Last Mailed Notice of Value (N.O.V.) Information/History | ||||||||
|---|---|---|---|---|---|---|---|---|
| Year | Date | Market Value | Taxable Market Value | Gross Assessed | Exemption | Net Assessed | ||
|
2026 |
02/06/2026 |
169,000 |
127,301 |
14,003 |
1,000 |
13,003 |
||
|
2025 |
01/31/2025 |
167,000 |
127,301 |
14,002 |
1,000 |
13,002 |
||
|
2024 |
01/22/2024 |
155,000 |
123,594 |
13,594 |
1,000 |
12,594 |
||
|
2023 |
01/23/2023 |
135,000 |
119,995 |
13,199 |
1,000 |
12,199 |
||
|
2022 |
02/22/2022 |
116,500 |
116,500 |
12,815 |
1,000 |
11,815 |
||
| Property Building Permit History | |||||||||||
|---|---|---|---|---|---|---|---|---|---|---|---|
| Issued | Permit # | Provided by | Bldg # | Description | Est Construction Cost | Status | |||||
| No Building Permit records returned. | |||||||||||
| Click button on building number to access detailed information: | ||||||
|---|---|---|---|---|---|---|
| Bldg # | Vacant/Improved Land | Bldg Description | Year Built | SqFt | # Stories | |
|
1 |
Improved |
Ranch 1 Story |
1954 |
1,337 |
1 Stories |
|