|
|
|
| Larry Stein Oklahoma County Assessor (405) 713-1200 - Public Access System |
|
|
|
|
|
|
| Real Property Display - Screen Produced 4/6/2026 8:40:39 AM | ||||
|---|---|---|---|---|
| Account: R153753505 | Type: Residential | Location: |
1712 HANNA DR |
|
| Building Name/Occupant: |
|
DEL CITY |
||
| Owner Name 1: | MAXEV INVESTMENT LLC |
Parcel PIN#: |
1432-15-375-3505 |
|
| Owner Name 2: | 1/4 section #: |
1432 |
||
| Owner Name 3: | Parent Acct: |
|
||
| Billing Address: | 2604 SW 136TH ST | Tax District: |
|
|
| City, State, Zip | OKLAHOMA CITY, OK 73170 | School System: |
Mid-Del #52 |
|
|
Country: (If noted) |
Land Size: |
0.1722 Acres |
||
|
Land Value: 24,000 |
|
|||
|
Sect 8-T11N-R2W Qtr NW |
EPPERLY HEIGHTS 7TH
Block
003
Lot
014
|
|||
| Full Legal Description: EPPERLY HEIGHTS 7TH 003 014 |
| Photo & Sketch (if available) | Comp Sales (ordered by relevancy) |
|
||||||||||||||||||
|
||||||||||||||||||||
| Value History (*The County Treasurer 405-713-1300 posts & collects actual tax amounts. Contact information HERE) | |||||||||||||
|---|---|---|---|---|---|---|---|---|---|---|---|---|---|
| Year | Market Value | Taxable Mkt Value | Gross Assessed | Exemption | Net Assessed | Millage | Est. Tax | Tax Savings | |||||
|
2026 |
139,500 |
93,188 |
10,250 |
0 |
10,250 |
114.72 |
$1,176 |
$584 |
|||||
|
2025 |
138,000 |
88,751 |
9,761 |
0 |
9,761 |
114.72 |
$1,120 |
$621 |
|||||
|
2024 |
128,500 |
84,525 |
9,297 |
0 |
9,297 |
117.21 |
$1,090 |
$567 |
|||||
|
2023 |
80,500 |
80,500 |
8,855 |
0 |
8,855 |
112.46 |
$996 |
$0 |
|||||
|
2022 |
80,500 |
80,500 |
8,855 |
0 |
8,855 |
110.76 |
$981 |
$0 |
|||||
| Property Account Status/Adjustments/Exemptions | ||
|---|---|---|
| Account # | Exemption Description | Amount |
|
R153753505 |
5% Capped Account |
0 |
| Property Deed Transaction History (Recorded in the County Clerk's Office) | |||||||
|---|---|---|---|---|---|---|---|
| Date | Type | Book | Page | Price | Grantor | Grantee | |
|
5/18/2021 |
|
Deeds |
$78,000 |
LITTLE MELISSA L |
MAXEV INVESTMENT LLC |
||
|
11/19/2009 |
|
Hmstd Off & |
$0 |
CALDWELL HAROLD R & PAULINE CO TRS CALDWELL HAROLD & PAULINE |
LITTLE MELISSA L |
||
|
11/19/2009 |
|
Deeds |
$83,000 |
CALDWELL ALLAN RAY SUC TRS ETAL MYERS PAULA SUE SUC TRS |
LITTLE MELISSA L |
||
|
10/8/1999 |
|
Deeds |
$0 |
CALDWELL H R & P |
CALDWELL HAROLD R & PAULINE CO TRS CALDWELL HAROLD & PAULINE |
||
|
11/11/1911 |
|
Historical |
$0 |
|
CALDWELL H R & P |
||
| Last Mailed Notice of Value (N.O.V.) Information/History | ||||||||
|---|---|---|---|---|---|---|---|---|
| Year | Date | Market Value | Taxable Market Value | Gross Assessed | Exemption | Net Assessed | ||
|
2026 |
02/06/2026 |
139,500 |
93,188 |
10,250 |
0 |
10,250 |
||
|
2025 |
01/31/2025 |
138,000 |
88,751 |
9,761 |
0 |
9,761 |
||
|
2024 |
01/22/2024 |
128,500 |
84,525 |
9,297 |
0 |
9,297 |
||
|
2021 |
02/24/2021 |
83,500 |
81,375 |
8,951 |
0 |
8,951 |
||
|
2019 |
02/26/2019 |
78,000 |
78,000 |
8,580 |
0 |
8,580 |
||
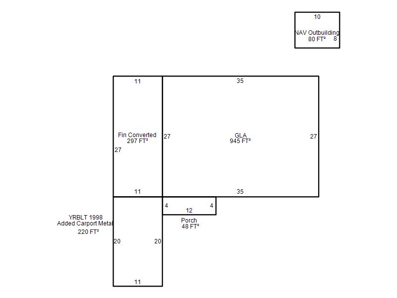
| Property Building Permit History | ||||||
|---|---|---|---|---|---|---|
| Issued | Permit # | Provided by | Bldg # | Description | Est Construction Cost | Status |
|
10/23/1998 |
10250320 |
DEL CITY |
1 |
Carport |
1,400 |
Inactive |
| Click button on building number to access detailed information: | ||||||
|---|---|---|---|---|---|---|
| Bldg # | Vacant/Improved Land | Bldg Description | Year Built | SqFt | # Stories | |
|
1 |
Improved |
Ranch 1 Story |
1954 |
945 |
1 Stories |
|