|
|
|
| Larry Stein Oklahoma County Assessor (405) 713-1200 - Public Access System |
|
|
|
|
|
|
| Real Property Display - Screen Produced 4/6/2026 8:39:39 AM | ||||
|---|---|---|---|---|
| Account: R153754055 | Type: Residential | Location: |
4337 SE 20TH ST |
|
| Building Name/Occupant: |
|
DEL CITY |
||
| Owner Name 1: | OAKLINE GROUP LLC |
Parcel PIN#: |
1432-15-375-4055 |
|
| Owner Name 2: | 1/4 section #: |
1432 |
||
| Owner Name 3: | Parent Acct: |
|
||
| Billing Address: | 5605 S VENTURA DR | Tax District: |
|
|
| City, State, Zip | OKLAHOMA CITY, OK 73135 | School System: |
Mid-Del #52 |
|
|
Country: (If noted) |
Land Size: |
0.1722 Acres |
||
|
Land Value: 18,000 |
|
|||
|
Sect 8-T11N-R2W Qtr NW |
EPPERLY HEIGHTS 7TH
Block
004
Lot
005
|
|||
| Full Legal Description: EPPERLY HEIGHTS 7TH 004 005 |
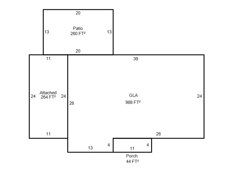
| Photo & Sketch (if available) | Comp Sales (ordered by relevancy) |
|
||||||||||||||||||
|
||||||||||||||||||||
| Value History (*The County Treasurer 405-713-1300 posts & collects actual tax amounts. Contact information HERE) | |||||||||||||
|---|---|---|---|---|---|---|---|---|---|---|---|---|---|
| Year | Market Value | Taxable Mkt Value | Gross Assessed | Exemption | Net Assessed | Millage | Est. Tax | Tax Savings | |||||
|
2026 |
108,500 |
108,500 |
11,935 |
0 |
11,935 |
114.72 |
$1,369 |
$0 |
|||||
|
2025 |
105,500 |
105,500 |
11,605 |
0 |
11,605 |
114.72 |
$1,331 |
$0 |
|||||
|
2024 |
97,500 |
74,144 |
8,155 |
0 |
8,155 |
117.21 |
$956 |
$301 |
|||||
|
2023 |
85,500 |
70,614 |
7,766 |
0 |
7,766 |
112.46 |
$874 |
$184 |
|||||
|
2022 |
77,500 |
67,252 |
7,397 |
0 |
7,397 |
110.76 |
$819 |
$125 |
|||||
| Property Account Status/Adjustments/Exemptions | ||||||
|---|---|---|---|---|---|---|
| Account # | Exemption Description | Amount | ||||
| No adjustment/exemption records returned. | ||||||
| Property Deed Transaction History (Recorded in the County Clerk's Office) | ||||||||||
|---|---|---|---|---|---|---|---|---|---|---|
| Date | Type | Book | Page | Price | Grantor | Grantee | ||||
|
1/28/2026 |
|
Hmstd Off & |
$0 |
SITU ALAN L |
OAKLINE GROUP LLC |
|||||
|
1/15/2025 |
|
Deeds |
$108,000 |
CASA DEL RANCHO LLC |
SITU ALAN L |
|||||
|
8/27/2024 |
|
Deeds |
$75,000 |
CONLEY ELAINE M |
CASA DEL RANCHO LLC |
|||||
|
9/5/2003 |
|
Deeds |
$41,500 |
BASS MILDRED MARIE TRS BASS MILDRED LIVING TRUST |
CONLEY ELAINE M |
|||||
|
12/1/1993 |
|
Historical |
$0 |
BASS MILDRED MARIE |
BASS MILDRED MARIE TRS |
|||||
| Last Mailed Notice of Value (N.O.V.) Information/History | ||||||||
|---|---|---|---|---|---|---|---|---|
| Year | Date | Market Value | Taxable Market Value | Gross Assessed | Exemption | Net Assessed | ||
|
2026 |
02/06/2026 |
108,500 |
108,500 |
11,935 |
0 |
11,935 |
||
|
2026 |
03/30/2026 |
108,500 |
108,500 |
11,935 |
0 |
11,935 |
||
|
2025 |
01/31/2025 |
105,500 |
105,500 |
11,605 |
0 |
11,605 |
||
|
2025 |
03/28/2025 |
105,500 |
105,500 |
11,605 |
0 |
11,605 |
||
|
2024 |
01/22/2024 |
97,500 |
74,144 |
8,155 |
0 |
8,155 |
||
| Property Building Permit History | |||||||||||
|---|---|---|---|---|---|---|---|---|---|---|---|
| Issued | Permit # | Provided by | Bldg # | Description | Est Construction Cost | Status | |||||
| No Building Permit records returned. | |||||||||||
| Click button on building number to access detailed information: | ||||||
|---|---|---|---|---|---|---|
| Bldg # | Vacant/Improved Land | Bldg Description | Year Built | SqFt | # Stories | |
|
1 |
Improved |
Ranch 1 Story |
1952 |
988 |
1 Stories |
|