Larry Stein Oklahoma County Assessor (405) 713-1200 - Public Access System
Home Contact Us Guest Book Map Search New Search
Real Property Display - Screen Produced   4/25/2026 8:06:43 PM 
Account: R194361480  Type: Residential

  

Location:

19692 SE 33RD ST

Building Name/Occupant:

 

UNINCORPORATED

Owner Name 1:  SNAVELY CONNIE V

Parcel PIN#:

1057-19-436-1480

Owner Name 2:  SNAVELY JEFF L 1/4 section #:

1057

Owner Name 3:    Parent Acct:

 

Billing Address:  19692 SE 33RD ST Tax District:

City, State, Zip  HARRAH, OK  73045-6113 School System:

Harrah #7

Country: (If noted)

  

Land Size:

0.9320  Acres

Personal Property

Land Value: 44,660 

Treasurer:

Sect 15-T11N-R1E Qtr NE

 DUGGAN HEIGHTS   Block 005  Lot 000   Subdivision Sales
 Full Legal Description:  DUGGAN HEIGHTS BLK 005 LOTS 001 & 002

NOTE:  The following sales may or may not be used to determine Fair Market Value

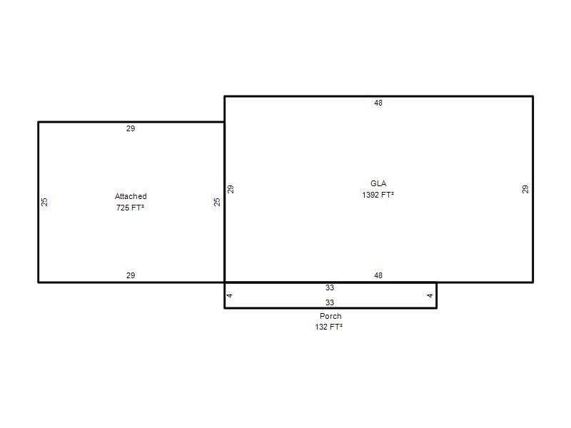
Photo & Sketch (if available) Sales  Sales Report

 19675 SE 31ST ST UNINCORPORATED, OK

11/24/2025

 $268,000 

 19625 SE 31ST ST UNINCORPORATED, OK

08/01/2024

 $254,000 

 3005 SHARON AVE UNINCORPORATED, OK

04/24/2025

 $235,000 

 19630 SE 31ST ST UNINCORPORATED, OK

12/19/2024

 $285,000 

 3600 SHARON AVE UNINCORPORATED, OK

03/28/2022

 $305,000 

 19730 SE 29TH ST UNINCORPORATED, OK

09/29/2023

 $294,000 

Value History  (*The County Treasurer 405-713-1300 posts & collects actual tax amounts.  Contact information  HERE)
Year Market Value Taxable Mkt Value Gross Assessed Exemption Net Assessed Millage Est. Tax Tax Savings

2026

202,500 

134,431 

14,786 

1,000 

13,786 

107.54 

$1,483 

$913 

2025

216,500 

130,516 

14,356 

1,000 

13,356 

107.54 

$1,436 

$1,125 

2024

197,000 

126,715 

13,937 

1,000 

12,937 

110.62 

$1,431 

$966 

[1/10]
Property Account Status/Adjustments/Exemptions
Account # Exemption Description Amount

R194361480

3% Cap Homestead

R194361480

Homestead

1,000 

Property Deed Transaction History   (Recorded in the County Clerk's Office)
Date Type Book Page Price Grantor Grantee

7/25/2013

Deeds

12319

258

 $0 

SNAVELY CONNIE V

SNAVELY CONNIE V

9/24/1993

Historical

6493

303

 $0 

SNAVELY BOBBY D & CONNIE V

SNAVELY CONNIE V

3/1/1982

Historical

4861

279

 $0 

 

SNAVELY BOBBY D & CONNIE V

Last Mailed Notice of Value (N.O.V.) Information/History
Year Date Market Value Taxable Market Value Gross Assessed Exemption Net Assessed

2026

02/06/2026

202,500 

134,431 

14,786 

1,000 

13,786 

2025

01/31/2025

216,500 

130,516 

14,356 

1,000 

13,356 

2024

01/22/2024

197,000 

126,715 

13,937 

1,000 

12,937 

[1/6]
Property Building Permit History
Issued Permit # Provided by Bldg # Description Est Construction Cost Status
No Building Permit records returned.
Click button below to access detailed information and additional property photos:
  Bldg # Vacant/Improved Land Bldg Description Year Built SqFt # Stories

Click

1

Improved

Ranch 1 Story

1983

1,392 

1 Stories