|
|
|
| Larry Stein Oklahoma County Assessor (405) 713-1200 - Public Access System |
|
|
|
|
|
|
| Real Property Display - Screen Produced 4/2/2026 4:10:20 PM | ||||
|---|---|---|---|---|
| Account: R169840170 | Type: Residential | Location: |
1717 ELMHURST AVE |
|
| Building Name/Occupant: |
|
NICHOLS HILLS |
||
| Owner Name 1: | FARMER JAZMINE |
Parcel PIN#: |
3722-16-984-0170 |
|
| Owner Name 2: | 1/4 section #: |
3722 |
||
| Owner Name 3: | Parent Acct: |
|
||
| Billing Address: | 1717 ELMHURST AVE | Tax District: |
|
|
| City, State, Zip | NICHOLS HILLS , OK 73120 | School System: |
Oklahoma City #89 |
|
|
Country: (If noted) |
Land Size: |
0.5506 Acres |
||
|
Land Value: 209,878 |
|
|||
|
Sect 31-T13N-R3W Qtr SE |
NICHOLS HILLS WILSHIRE
Block
096
Lot
027
|
|||
| Full Legal Description: NICHOLS HILLS WILSHIRE 096 027 |
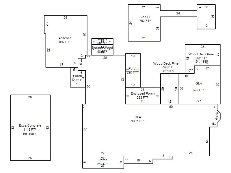
| Photo & Sketch (if available) | Comp Sales (ordered by relevancy) |
|
||||||||||||||||||
|
||||||||||||||||||||
| Value History (*The County Treasurer 405-713-1300 posts & collects actual tax amounts. Contact information HERE) | |||||||||||||
|---|---|---|---|---|---|---|---|---|---|---|---|---|---|
| Year | Market Value | Taxable Mkt Value | Gross Assessed | Exemption | Net Assessed | Millage | Est. Tax | Tax Savings | |||||
|
2026 |
1,467,500 |
1,177,821 |
129,559 |
1,000 |
128,559 |
140.78 |
$18,099 |
$4,627 |
|||||
|
2025 |
1,402,000 |
1,143,516 |
125,786 |
1,000 |
124,786 |
140.78 |
$17,567 |
$4,144 |
|||||
|
2024 |
1,333,500 |
1,110,210 |
122,122 |
1,000 |
121,122 |
141.11 |
$17,092 |
$3,607 |
|||||
|
2023 |
1,327,000 |
1,077,874 |
118,565 |
1,000 |
117,565 |
139.71 |
$16,425 |
$3,968 |
|||||
|
2022 |
1,183,000 |
1,046,480 |
115,112 |
1,000 |
114,112 |
127.53 |
$14,553 |
$2,043 |
|||||
| Property Account Status/Adjustments/Exemptions | ||
|---|---|---|
| Account # | Exemption Description | Amount |
|
R169840170 |
3% Cap Homestead |
0 |
|
R169840170 |
Homestead |
1,000 |
| Property Deed Transaction History (Recorded in the County Clerk's Office) | |||||||
|---|---|---|---|---|---|---|---|
| Date | Type | Book | Page | Price | Grantor | Grantee | |
|
6/24/2019 |
|
Deeds |
$940,000 |
WOODSON DOUGLAS GREG |
FARMER JAZMINE |
||
|
3/29/2005 |
|
Deeds |
$842,000 |
KELLEY JOHN T |
WOODSON DOUGLAS GREG |
||
|
8/15/2001 |
|
Deeds |
$674,000 |
LEE KREGG S & MARLENE E |
KELLEY JOHN T |
||
|
8/5/1997 |
|
Historical |
$357,000 |
FISHBURNE JOHN I JR & JEAN C |
LEE KREGG S & MARLENE E |
||
|
4/1/1983 |
|
Historical |
$0 |
|
FISHBURNE JOHN I JR & JEAN C |
||
| Last Mailed Notice of Value (N.O.V.) Information/History | ||||||||
|---|---|---|---|---|---|---|---|---|
| Year | Date | Market Value | Taxable Market Value | Gross Assessed | Exemption | Net Assessed | ||
|
2026 |
02/23/2026 |
1,467,500 |
1,177,821 |
129,559 |
1,000 |
128,559 |
||
|
2025 |
02/14/2025 |
1,402,000 |
1,143,516 |
125,786 |
1,000 |
124,786 |
||
|
2024 |
02/13/2024 |
1,333,500 |
1,110,210 |
122,122 |
1,000 |
121,122 |
||
|
2023 |
02/14/2023 |
1,327,000 |
1,077,874 |
118,565 |
1,000 |
117,565 |
||
|
2022 |
03/15/2022 |
1,183,000 |
1,046,480 |
115,112 |
1,000 |
114,112 |
||
| Property Building Permit History | ||||||
|---|---|---|---|---|---|---|
| Issued | Permit # | Provided by | Bldg # | Description | Est Construction Cost | Status |
|
3/19/1999 |
10254600 |
NICHOLS HILLS |
1 |
Add On |
85,000 |
Inactive |
|
8/31/1998 |
10254601 |
NICHOLS HILLS |
1 |
Garage |
45,000 |
Inactive |
|
10/1/1997 |
10254602 |
NICHOLS HILLS |
1 |
Remodeled |
50,000 |
Inactive |
| Click button on building number to access detailed information: | ||||||
|---|---|---|---|---|---|---|
| Bldg # | Vacant/Improved Land | Bldg Description | Year Built | SqFt | # Stories | |
|
1 |
Improved |
1½ Story Fin |
1948 |
5,319 |
1.5 Stories |
|