|
|
|
| Larry Stein Oklahoma County Assessor (405) 713-1200 - Public Access System |
|
|
|
|
|
|
| Real Property Display - Screen Produced 3/20/2026 5:52:25 AM | ||||
|---|---|---|---|---|
| Account: R130724080 | Type: Residential | Location: |
1204 NW 89TH ST |
|
| Building Name/Occupant: |
|
OKLAHOMA CITY |
||
| Owner Name 1: | REVEN HOUSING FUNDING 2 LLC |
Parcel PIN#: |
3725-13-072-4080 |
|
| Owner Name 2: | 1/4 section #: |
3725 |
||
| Owner Name 3: | Parent Acct: |
|
||
| Billing Address: | PO BOX 19201 | Tax District: |
|
|
| City, State, Zip | JACKSONVILLE, FL 32245-9201 | School System: |
Oklahoma City #89 |
|
|
Country: (If noted) |
UNITED STATES |
Land Size: |
0.1607 Acres |
|
|
Land Value: 26,600 |
|
|||
|
Sect 32-T13N-R3W Qtr NE |
BRITTON HEIGHTS ADD
Block
023
Lot
000
|
|||
| Full Legal Description: BRITTON HEIGHTS ADD 023 000 LOTS 3 & 4 |
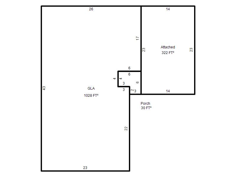
| Photo & Sketch (if available) | Comp Sales (ordered by relevancy) |
|
||||||||||||||||||
|
||||||||||||||||||||
| Value History (*The County Treasurer 405-713-1300 posts & collects actual tax amounts. Contact information HERE) | |||||||||||||
|---|---|---|---|---|---|---|---|---|---|---|---|---|---|
| Year | Market Value | Taxable Mkt Value | Gross Assessed | Exemption | Net Assessed | Millage | Est. Tax | Tax Savings | |||||
|
2025 |
160,500 |
126,350 |
13,897 |
0 |
13,897 |
122.90 |
$1,708 |
$462 |
|||||
|
2024 |
156,000 |
120,334 |
13,236 |
0 |
13,236 |
123.89 |
$1,640 |
$486 |
|||||
|
2023 |
147,000 |
114,604 |
12,606 |
0 |
12,606 |
122.82 |
$1,548 |
$438 |
|||||
|
2022 |
115,000 |
109,147 |
12,005 |
0 |
12,005 |
117.63 |
$1,412 |
$76 |
|||||
|
2021 |
110,000 |
103,950 |
11,434 |
0 |
11,434 |
117.70 |
$1,346 |
$78 |
|||||
| Property Account Status/Adjustments/Exemptions | ||
|---|---|---|
| Account # | Exemption Description | Amount |
|
R130724080 |
5% Capped Account |
0 |
| Property Deed Transaction History (Recorded in the County Clerk's Office) | ||||||||||
|---|---|---|---|---|---|---|---|---|---|---|
| Date | Type | Book | Page | Price | Grantor | Grantee | ||||
|
12/18/2018 |
|
Mult Parcel |
$6,867,999 |
TB RENTALS LLC |
REVEN HOUSING FUNDING 2 LLC |
|||||
|
12/19/2017 |
|
Hmstd Off & |
$0 |
BROWN REALTY INVESTMENTS LLC |
TB RENTALS LLC |
|||||
|
4/5/2012 |
|
Deeds |
$33,000 |
BANK OF NEW YORK MELLON AS TRS |
BROWN REALTY INVESTMENTS LLC |
|||||
|
10/3/2011 |
|
Hmstd Off & |
$0 |
YARBROUGH DEBRA |
BANK OF NEW YORK MELLON AS TRS |
|||||
|
8/21/2006 |
|
Deeds |
$0 |
YARBROUGH BOBBY B & DEBRA A |
YARBROUGH DEBRA |
|||||
| Last Mailed Notice of Value (N.O.V.) Information/History | ||||||||
|---|---|---|---|---|---|---|---|---|
| Year | Date | Market Value | Taxable Market Value | Gross Assessed | Exemption | Net Assessed | ||
|
2026 |
02/23/2026 |
161,500 |
132,667 |
14,592 |
0 |
14,592 |
||
|
2025 |
02/14/2025 |
160,500 |
126,350 |
13,897 |
0 |
13,897 |
||
|
2024 |
02/13/2024 |
156,000 |
120,334 |
13,236 |
0 |
13,236 |
||
|
2023 |
02/14/2023 |
147,000 |
114,604 |
12,606 |
0 |
12,606 |
||
|
2022 |
03/15/2022 |
115,000 |
109,147 |
12,005 |
0 |
12,005 |
||
| Property Building Permit History | |||||||||||
|---|---|---|---|---|---|---|---|---|---|---|---|
| Issued | Permit # | Provided by | Bldg # | Description | Est Construction Cost | Status | |||||
| No Building Permit records returned. | |||||||||||
| Click button on building number to access detailed information: | ||||||
|---|---|---|---|---|---|---|
| Bldg # | Vacant/Improved Land | Bldg Description | Year Built | SqFt | # Stories | |
|
1 |
Improved |
Ranch 1 Story |
1972 |
1,028 |
1 Stories |
|