|
|
|
| Larry Stein Oklahoma County Assessor (405) 713-1200 - Public Access System |
|
|
|
|
|
|
| Real Property Display - Screen Produced 3/18/2026 5:29:45 AM | ||||
|---|---|---|---|---|
| Account: R130724785 | Type: Residential | Location: |
1500 NW 88TH ST |
|
| Building Name/Occupant: |
|
OKLAHOMA CITY |
||
| Owner Name 1: | ANDERSON TRACY L LIV TRUST |
Parcel PIN#: |
3725-13-072-4785 |
|
| Owner Name 2: | 1/4 section #: |
3725 |
||
| Owner Name 3: | Parent Acct: |
|
||
| Billing Address: | 1500 NW 88TH ST | Tax District: |
|
|
| City, State, Zip | OKLAHOMA CITY, OK 73114 | School System: |
Oklahoma City #89 |
|
|
Country: (If noted) |
Land Size: |
0.2410 Acres |
||
|
Land Value: 39,900 |
|
|||
|
Sect 32-T13N-R3W Qtr NE |
BRITTON HEIGHTS ADD
Block
027
Lot
000
|
|||
| Full Legal Description: BRITTON HEIGHTS ADD 027 000 E15FT LOT 2 & N/2 VAC ALLEY ALONG REAR & A TR BEG AT NE/C LT 2 TH S150FT E55FT N150FT W55FT TO BEG FKA LT 1 BLK 27 BRITTON HTS & N/2 OF ADJ ALLEY NOW VACATED & W30FT OF GEORGIA AVE ADJ LT 1 ON E NOW VACATED |
| Photo & Sketch (if available) | Comp Sales (ordered by relevancy) |
|
||||||||||||||||||
|
||||||||||||||||||||
| Value History (*The County Treasurer 405-713-1300 posts & collects actual tax amounts. Contact information HERE) | |||||||||||||
|---|---|---|---|---|---|---|---|---|---|---|---|---|---|
| Year | Market Value | Taxable Mkt Value | Gross Assessed | Exemption | Net Assessed | Millage | Est. Tax | Tax Savings | |||||
|
2025 |
403,500 |
403,500 |
44,385 |
1,000 |
43,385 |
122.90 |
$5,332 |
$123 |
|||||
|
2024 |
392,000 |
392,000 |
43,120 |
1,000 |
42,120 |
123.89 |
$5,218 |
$124 |
|||||
|
2023 |
486,000 |
486,000 |
53,460 |
1,000 |
52,460 |
122.82 |
$6,443 |
$123 |
|||||
|
2022 |
202,000 |
202,000 |
22,220 |
0 |
22,220 |
117.63 |
$2,614 |
$0 |
|||||
|
2021 |
178,000 |
163,800 |
18,018 |
0 |
18,018 |
117.70 |
$2,121 |
$184 |
|||||
| Property Account Status/Adjustments/Exemptions | ||
|---|---|---|
| Account # | Exemption Description | Amount |
|
R130724785 |
3% Cap Homestead |
0 |
|
R130724785 |
Homestead |
1,000 |
| Property Deed Transaction History (Recorded in the County Clerk's Office) | |||||||
|---|---|---|---|---|---|---|---|
| Date | Type | Book | Page | Price | Grantor | Grantee | |
|
2/10/2022 |
|
Deeds |
$485,000 |
KASERMAN SCOTT |
ANDERSON TRACY L LIV TRUST |
||
|
8/23/2021 |
|
Deeds |
$210,000 |
ABLES WAYLAN & BETTY JO TRS |
KASERMAN SCOTT |
||
|
12/31/2001 |
|
Deeds |
$0 |
ABLES WAYLAN & BETTY JO |
ABLES WAYLAN & BETTY JO TRS |
||
|
11/11/1911 |
|
Historical |
$0 |
|
ABLES WAYLAN & BETTY JO |
||
| Last Mailed Notice of Value (N.O.V.) Information/History | ||||||||
|---|---|---|---|---|---|---|---|---|
| Year | Date | Market Value | Taxable Market Value | Gross Assessed | Exemption | Net Assessed | ||
|
2026 |
02/23/2026 |
408,000 |
408,000 |
44,880 |
1,000 |
43,880 |
||
|
2025 |
02/14/2025 |
403,500 |
403,500 |
44,385 |
1,000 |
43,385 |
||
|
2023 |
02/14/2023 |
486,000 |
486,000 |
53,460 |
1,000 |
52,460 |
||
|
2022 |
03/15/2022 |
202,000 |
202,000 |
22,220 |
0 |
22,220 |
||
|
2021 |
03/19/2021 |
178,000 |
160,680 |
17,674 |
1,000 |
16,674 |
||
| Property Building Permit History | |||||||||||
|---|---|---|---|---|---|---|---|---|---|---|---|
| Issued | Permit # | Provided by | Bldg # | Description | Est Construction Cost | Status | |||||
| No Building Permit records returned. | |||||||||||
| Click button on building number to access detailed information: | ||||||
|---|---|---|---|---|---|---|
| Bldg # | Vacant/Improved Land | Bldg Description | Year Built | SqFt | # Stories | |
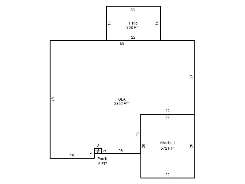
|
1 |
Improved |
Ranch 1 Story |
1960 |
2,392 |
1 Stories |
|