|
|
|
| Larry Stein Oklahoma County Assessor (405) 713-1200 - Public Access System |
|
|
|
|
|
|
| Real Property Display - Screen Produced 3/16/2026 2:18:41 PM | ||||
|---|---|---|---|---|
| Account: R130725456 | Type: Residential | Location: |
1019 WESTCHESTER DR |
|
| Building Name/Occupant: |
|
OKLAHOMA CITY |
||
| Owner Name 1: | HALL KINSLEY |
Parcel PIN#: |
3725-13-072-5456 |
|
| Owner Name 2: | MANNING SYDNEY | 1/4 section #: |
3725 |
|
| Owner Name 3: | Parent Acct: |
|
||
| Billing Address: | 1019 WESTCHESTER DR | Tax District: |
|
|
| City, State, Zip | OKLAHOMA CITY, OK 73114-1617 | School System: |
Oklahoma City #89 |
|
|
Country: (If noted) |
Land Size: |
0.2250 Acres |
||
|
Land Value: 47,530 |
|
|||
|
Sect 32-T13N-R3W Qtr NE |
BRITTON HEIGHTS ADD
Block
030
Lot
000
|
|||
| Full Legal Description: BRITTON HEIGHTS ADD 030 000 E15FT OF LOT 22 ALL LOTS 23 & 24 PLUS W5FT OF LOT 25 |
| Photo & Sketch (if available) | Comp Sales (ordered by relevancy) |
|
||||||||||||||||||
|
||||||||||||||||||||
| Value History (*The County Treasurer 405-713-1300 posts & collects actual tax amounts. Contact information HERE) | |||||||||||||
|---|---|---|---|---|---|---|---|---|---|---|---|---|---|
| Year | Market Value | Taxable Mkt Value | Gross Assessed | Exemption | Net Assessed | Millage | Est. Tax | Tax Savings | |||||
|
2025 |
392,500 |
297,372 |
32,710 |
0 |
32,710 |
122.90 |
$4,020 |
$1,286 |
|||||
|
2024 |
380,500 |
283,212 |
31,152 |
0 |
31,152 |
123.89 |
$3,860 |
$1,326 |
|||||
|
2023 |
359,500 |
269,726 |
29,669 |
0 |
29,669 |
122.82 |
$3,644 |
$1,213 |
|||||
|
2022 |
303,500 |
256,882 |
28,256 |
0 |
28,256 |
117.63 |
$3,324 |
$603 |
|||||
|
2021 |
271,000 |
244,650 |
26,911 |
0 |
26,911 |
117.70 |
$3,167 |
$341 |
|||||
| Property Account Status/Adjustments/Exemptions | ||
|---|---|---|
| Account # | Exemption Description | Amount |
|
R130725456 |
Homestead |
1,000 |
| Property Deed Transaction History (Recorded in the County Clerk's Office) | ||||||||||
|---|---|---|---|---|---|---|---|---|---|---|
| Date | Type | Book | Page | Price | Grantor | Grantee | ||||
|
7/22/2025 |
|
Deeds |
$315,000 |
MATTHEWS CALVIN |
HALL KINSLEY |
|||||
|
2/8/2013 |
|
Deeds |
$225,000 |
KITCH INVESTMENTS LLC |
MATTHEWS CALVIN |
|||||
|
10/17/2012 |
|
Hmstd Off & |
$0 |
KITCH BRANDON |
KITCH INVESTMENTS LLC |
|||||
|
5/9/2011 |
|
Deeds |
$93,000 |
FEDERAL HOME LOAN MORTGAGE CORP |
KITCH BRANDON |
|||||
|
3/8/2011 |
|
Hmstd Off & |
$0 |
MCPHERSON TODD |
FEDERAL HOME LOAN MORTGAGE CORP |
|||||
| Last Mailed Notice of Value (N.O.V.) Information/History | ||||||||
|---|---|---|---|---|---|---|---|---|
| Year | Date | Market Value | Taxable Market Value | Gross Assessed | Exemption | Net Assessed | ||
|
2026 |
02/23/2026 |
399,500 |
399,500 |
43,945 |
1,000 |
42,945 |
||
|
2025 |
02/14/2025 |
392,500 |
297,372 |
32,710 |
0 |
32,710 |
||
|
2024 |
02/13/2024 |
380,500 |
283,212 |
31,152 |
0 |
31,152 |
||
|
2023 |
02/14/2023 |
359,500 |
269,726 |
29,669 |
0 |
29,669 |
||
|
2022 |
03/15/2022 |
303,500 |
256,882 |
28,256 |
0 |
28,256 |
||
| Property Building Permit History | |||||||||||
|---|---|---|---|---|---|---|---|---|---|---|---|
| Issued | Permit # | Provided by | Bldg # | Description | Est Construction Cost | Status | |||||
| No Building Permit records returned. | |||||||||||
| Click button on building number to access detailed information: | ||||||
|---|---|---|---|---|---|---|
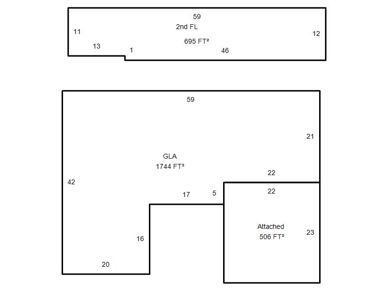
| Bldg # | Vacant/Improved Land | Bldg Description | Year Built | SqFt | # Stories | |
|
1 |
Improved |
1½ Story Fin |
1978 |
2,439 |
1.5 Stories |
|