|
|
|
| Larry Stein Oklahoma County Assessor (405) 713-1200 - Public Access System |
|
|
|
|
|
|
| Real Property Display - Screen Produced 3/16/2026 2:17:38 PM | ||||
|---|---|---|---|---|
| Account: R130725745 | Type: Residential | Location: |
908 WESTCHESTER DR |
|
| Building Name/Occupant: |
|
OKLAHOMA CITY |
||
| Owner Name 1: | ZUNIGA ARTHUR |
Parcel PIN#: |
3725-13-072-5745 |
|
| Owner Name 2: | 1/4 section #: |
3725 |
||
| Owner Name 3: | Parent Acct: |
|
||
| Billing Address: | 908 WESTCHESTER DR | Tax District: |
|
|
| City, State, Zip | OKLAHOMA CITY, OK 73114-1616 | School System: |
Oklahoma City #89 |
|
|
Country: (If noted) |
Land Size: |
0.1768 Acres |
||
|
Land Value: 29,260 |
|
|||
|
Sect 32-T13N-R3W Qtr NE |
BRITTON HEIGHTS ADD
Block
032
Lot
000
|
|||
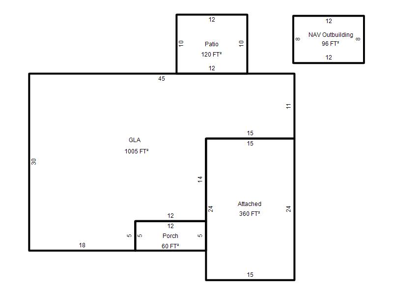
| Full Legal Description: BRITTON HEIGHTS ADD 032 000 W6FT LOT 4 ALL LOT 5 & E24FT LOT 6 |
| Photo & Sketch (if available) | Comp Sales (ordered by relevancy) |
|
||||||||||||||||||
|
||||||||||||||||||||
| Value History (*The County Treasurer 405-713-1300 posts & collects actual tax amounts. Contact information HERE) | |||||||||||||
|---|---|---|---|---|---|---|---|---|---|---|---|---|---|
| Year | Market Value | Taxable Mkt Value | Gross Assessed | Exemption | Net Assessed | Millage | Est. Tax | Tax Savings | |||||
|
2025 |
135,500 |
93,468 |
10,281 |
1,000 |
9,281 |
122.90 |
$1,141 |
$691 |
|||||
|
2024 |
132,000 |
90,746 |
9,981 |
1,000 |
8,981 |
123.89 |
$1,113 |
$686 |
|||||
|
2023 |
125,000 |
88,103 |
9,691 |
1,000 |
8,691 |
122.82 |
$1,067 |
$621 |
|||||
|
2022 |
96,500 |
85,537 |
9,409 |
1,000 |
8,409 |
117.63 |
$989 |
$259 |
|||||
|
2021 |
92,500 |
83,046 |
9,135 |
1,000 |
8,135 |
117.70 |
$957 |
$240 |
|||||
| Property Account Status/Adjustments/Exemptions | ||
|---|---|---|
| Account # | Exemption Description | Amount |
|
R130725745 |
Homestead |
1,000 |
|
R130725745 |
3% Cap Homestead |
0 |
| Property Deed Transaction History (Recorded in the County Clerk's Office) | |||||||
|---|---|---|---|---|---|---|---|
| Date | Type | Book | Page | Price | Grantor | Grantee | |
|
4/23/1999 |
|
Historical |
$46,000 |
BISH DAVID J & BECKY J |
ZUNIGA ARTHUR |
||
|
6/1/1983 |
|
Historical |
$0 |
|
BISH DAVID J & BECKY J |
||
| Last Mailed Notice of Value (N.O.V.) Information/History | ||||||||
|---|---|---|---|---|---|---|---|---|
| Year | Date | Market Value | Taxable Market Value | Gross Assessed | Exemption | Net Assessed | ||
|
2026 |
02/23/2026 |
137,000 |
96,272 |
10,589 |
1,000 |
9,589 |
||
|
2025 |
02/14/2025 |
135,500 |
93,468 |
10,281 |
1,000 |
9,281 |
||
|
2024 |
02/13/2024 |
132,000 |
90,746 |
9,981 |
1,000 |
8,981 |
||
|
2023 |
02/14/2023 |
125,000 |
88,103 |
9,691 |
1,000 |
8,691 |
||
|
2022 |
03/15/2022 |
96,500 |
85,537 |
9,409 |
1,000 |
8,409 |
||
| Property Building Permit History | |||||||||||
|---|---|---|---|---|---|---|---|---|---|---|---|
| Issued | Permit # | Provided by | Bldg # | Description | Est Construction Cost | Status | |||||
| No Building Permit records returned. | |||||||||||
| Click button on building number to access detailed information: | ||||||
|---|---|---|---|---|---|---|
| Bldg # | Vacant/Improved Land | Bldg Description | Year Built | SqFt | # Stories | |
|
1 |
Improved |
Ranch 1 Story |
1959 |
1,005 |
1 Stories |
|