|
|
|
| Larry Stein Oklahoma County Assessor (405) 713-1200 - Public Access System |
|
|
|
|
|
|
| Real Property Display - Screen Produced 3/20/2026 4:23:44 AM | ||||
|---|---|---|---|---|
| Account: R131601365 | Type: Residential | Location: |
1305 NW 84TH ST |
|
| Building Name/Occupant: |
|
OKLAHOMA CITY |
||
| Owner Name 1: | SPICER TERRY L & TYJUANA K |
Parcel PIN#: |
3726-13-160-1365 |
|
| Owner Name 2: | 1/4 section #: |
3726 |
||
| Owner Name 3: | Parent Acct: |
|
||
| Billing Address: | 1305 NW 84TH ST | Tax District: |
|
|
| City, State, Zip | OKLAHOMA CITY, OK 73114-1528 | School System: |
Oklahoma City #89 |
|
|
Country: (If noted) |
Land Size: |
0.2097 Acres |
||
|
Land Value: 32,886 |
|
|||
|
Sect 32-T13N-R3W Qtr SE |
HIGHLAND VIEW ADD
Block
003
Lot
000
|
|||
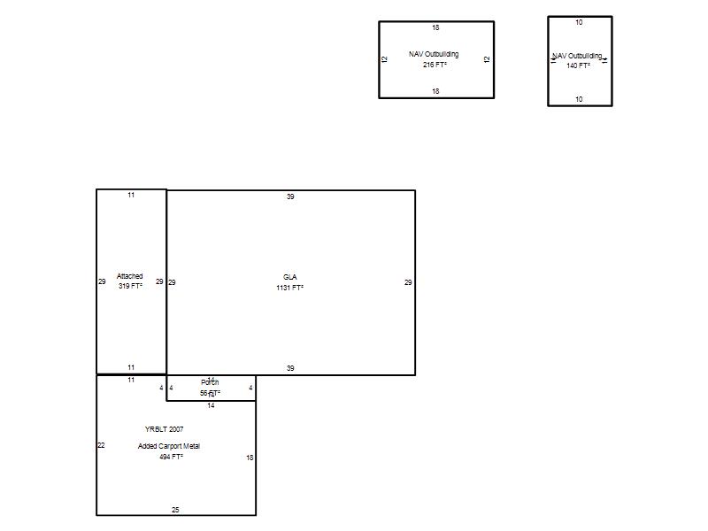
| Full Legal Description: HIGHLAND VIEW ADD 003 000 W62.5FT OF E125FT OF LOTS 7 THRU 12 |
| Photo & Sketch (if available) | Comp Sales (ordered by relevancy) |
|
||||||||||||||||||
|
||||||||||||||||||||
| Value History (*The County Treasurer 405-713-1300 posts & collects actual tax amounts. Contact information HERE) | |||||||||||||
|---|---|---|---|---|---|---|---|---|---|---|---|---|---|
| Year | Market Value | Taxable Mkt Value | Gross Assessed | Exemption | Net Assessed | Millage | Est. Tax | Tax Savings | |||||
|
2025 |
141,000 |
89,162 |
9,807 |
1,000 |
8,807 |
122.90 |
$1,082 |
$824 |
|||||
|
2024 |
138,500 |
86,566 |
9,521 |
1,000 |
8,521 |
123.89 |
$1,056 |
$832 |
|||||
|
2023 |
131,500 |
84,045 |
9,244 |
1,000 |
8,244 |
122.82 |
$1,013 |
$764 |
|||||
|
2022 |
108,000 |
81,598 |
8,974 |
1,000 |
7,974 |
117.63 |
$938 |
$459 |
|||||
|
2021 |
95,000 |
79,222 |
8,713 |
1,000 |
7,713 |
117.70 |
$908 |
$322 |
|||||
| Property Account Status/Adjustments/Exemptions | ||
|---|---|---|
| Account # | Exemption Description | Amount |
|
R131601365 |
3% Cap Homestead |
0 |
|
R131601365 |
Homestead |
1,000 |
| Property Deed Transaction History (Recorded in the County Clerk's Office) | |||||||
|---|---|---|---|---|---|---|---|
| Date | Type | Book | Page | Price | Grantor | Grantee | |
|
2/17/1993 |
|
Historical |
$40,000 |
JOHNSTON PEGGY |
SPICER TERRY L & TYJUANA K |
||
|
4/7/1992 |
|
Historical |
$0 |
BANK OF OKLAHOMA NA |
JOHNSTON PEGGY |
||
|
3/7/1990 |
|
Historical |
$0 |
NOLAN ALLAN PATRICK |
BANK OF OKLAHOMA NA |
||
|
9/1/1984 |
|
Historical |
$49,000 |
|
NOLAN ALLAN PATRICK |
||
| Last Mailed Notice of Value (N.O.V.) Information/History | ||||||||
|---|---|---|---|---|---|---|---|---|
| Year | Date | Market Value | Taxable Market Value | Gross Assessed | Exemption | Net Assessed | ||
|
2026 |
02/23/2026 |
146,000 |
91,836 |
10,101 |
1,000 |
9,101 |
||
|
2025 |
02/14/2025 |
141,000 |
89,162 |
9,807 |
1,000 |
8,807 |
||
|
2024 |
02/13/2024 |
138,500 |
86,566 |
9,521 |
1,000 |
8,521 |
||
|
2023 |
02/14/2023 |
131,500 |
84,045 |
9,244 |
1,000 |
8,244 |
||
|
2022 |
03/15/2022 |
108,000 |
81,598 |
8,974 |
1,000 |
7,974 |
||
| Property Building Permit History | |||||||||||
|---|---|---|---|---|---|---|---|---|---|---|---|
| Issued | Permit # | Provided by | Bldg # | Description | Est Construction Cost | Status | |||||
| No Building Permit records returned. | |||||||||||
| Click button on building number to access detailed information: | ||||||
|---|---|---|---|---|---|---|
| Bldg # | Vacant/Improved Land | Bldg Description | Year Built | SqFt | # Stories | |
|
1 |
Improved |
Ranch 1 Story |
1955 |
1,131 |
1 Stories |
|