|
|
|
| Larry Stein Oklahoma County Assessor (405) 713-1200 - Public Access System |
|
|
|
|
|
|
| Real Property Display - Screen Produced 3/20/2026 5:52:25 AM | ||||
|---|---|---|---|---|
| Account: R131602125 | Type: Residential | Location: |
1314 NW 84TH ST |
|
| Building Name/Occupant: |
|
OKLAHOMA CITY |
||
| Owner Name 1: | SFR OWNER I LLC |
Parcel PIN#: |
3726-13-160-2125 |
|
| Owner Name 2: | 1/4 section #: |
3726 |
||
| Owner Name 3: | Parent Acct: |
|
||
| Billing Address: | PO BOX 130 | Tax District: |
|
|
| City, State, Zip | PORTSMOUTH, NH 03802-0069 | School System: |
Oklahoma City #89 |
|
|
Country: (If noted) |
Land Size: |
0.1607 Acres |
||
|
Land Value: 25,200 |
|
|||
|
Sect 32-T13N-R3W Qtr SE |
HIGHLAND VIEW ADD
Block
006
Lot
000
|
|||
| Full Legal Description: HIGHLAND VIEW ADD 006 000 LOTS 28 & 29 |
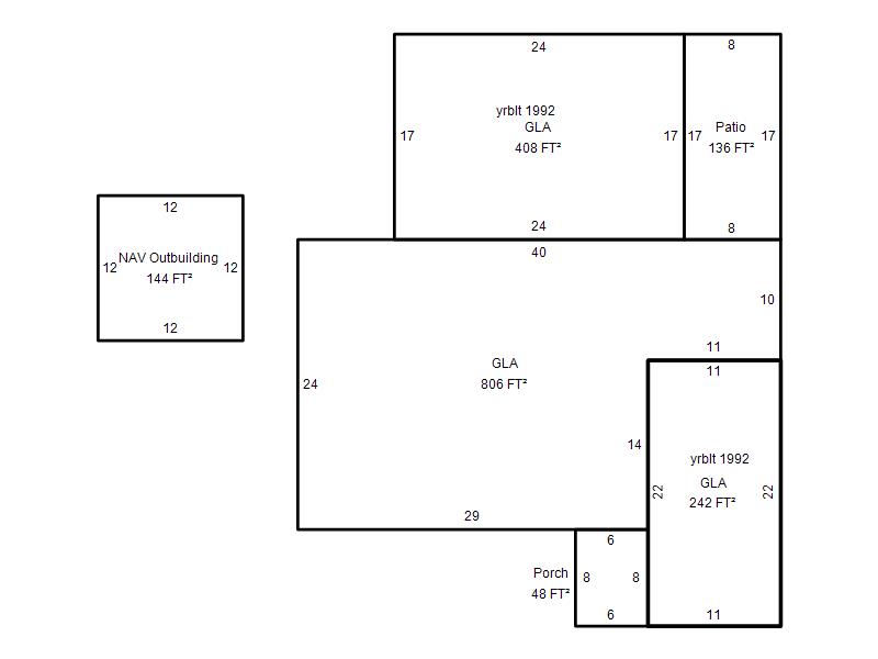
| Photo & Sketch (if available) | Comp Sales (ordered by relevancy) |
|
||||||||||||||||||
|
||||||||||||||||||||
| Value History (*The County Treasurer 405-713-1300 posts & collects actual tax amounts. Contact information HERE) | |||||||||||||
|---|---|---|---|---|---|---|---|---|---|---|---|---|---|
| Year | Market Value | Taxable Mkt Value | Gross Assessed | Exemption | Net Assessed | Millage | Est. Tax | Tax Savings | |||||
|
2025 |
174,500 |
107,640 |
11,839 |
0 |
11,839 |
122.90 |
$1,455 |
$904 |
|||||
|
2024 |
172,000 |
102,515 |
11,275 |
0 |
11,275 |
123.89 |
$1,397 |
$947 |
|||||
|
2023 |
161,000 |
97,634 |
10,739 |
0 |
10,739 |
122.82 |
$1,319 |
$856 |
|||||
|
2022 |
121,500 |
92,985 |
10,227 |
0 |
10,227 |
117.63 |
$1,203 |
$369 |
|||||
|
2021 |
106,000 |
88,558 |
9,740 |
0 |
9,740 |
117.70 |
$1,147 |
$226 |
|||||
| Property Account Status/Adjustments/Exemptions | ||||||
|---|---|---|---|---|---|---|
| Account # | Exemption Description | Amount | ||||
| No adjustment/exemption records returned. | ||||||
| Property Deed Transaction History (Recorded in the County Clerk's Office) | ||||||||||
|---|---|---|---|---|---|---|---|---|---|---|
| Date | Type | Book | Page | Price | Grantor | Grantee | ||||
|
10/28/2025 |
|
Mult Parcel |
$577,000 |
CLH4 LLC |
SFR OWNER I LLC |
|||||
|
6/17/2024 |
|
Hmstd Off & |
$0 |
CLH7 LLC |
CLH4 LLC |
|||||
|
1/8/2020 |
|
Hmstd Off & |
$0 |
CEDARLAND HOMES LLC |
CLH7 LLC |
|||||
|
2/22/2013 |
|
Other |
$0 |
SECRETARY OF HOUSING & URBAN DEV |
CEDARLAND HOMES LLC |
|||||
|
9/11/2012 |
|
Hmstd Off & |
$0 |
CATO CARLA C |
SECRETARY OF HOUSING & URBAN DEV |
|||||
| Last Mailed Notice of Value (N.O.V.) Information/History | ||||||||
|---|---|---|---|---|---|---|---|---|
| Year | Date | Market Value | Taxable Market Value | Gross Assessed | Exemption | Net Assessed | ||
|
2026 |
02/23/2026 |
178,000 |
178,000 |
19,580 |
0 |
19,580 |
||
|
2025 |
02/14/2025 |
174,500 |
107,640 |
11,839 |
0 |
11,839 |
||
|
2024 |
02/13/2024 |
172,000 |
102,515 |
11,275 |
0 |
11,275 |
||
|
2023 |
02/14/2023 |
161,000 |
97,634 |
10,739 |
0 |
10,739 |
||
|
2022 |
03/15/2022 |
121,500 |
92,985 |
10,227 |
0 |
10,227 |
||
| Property Building Permit History | ||||||
|---|---|---|---|---|---|---|
| Issued | Permit # | Provided by | Bldg # | Description | Est Construction Cost | Status |
|
11/20/1991 |
10229197 |
OKLAHOMA CITY |
1 |
Fire Remodel |
10,000 |
Inactive |
|
10/25/1991 |
10229196 |
OKLAHOMA CITY |
1 |
Burn - Trip |
16,000 |
Inactive |
| Click button on building number to access detailed information: | ||||||
|---|---|---|---|---|---|---|
| Bldg # | Vacant/Improved Land | Bldg Description | Year Built | SqFt | # Stories | |
|
1 |
Improved |
Ranch 1 Story |
1953 |
1,456 |
1 Stories |
|