|
|
|
| Larry Stein Oklahoma County Assessor (405) 713-1200 - Public Access System |
|
|
|
|
|
|
| Real Property Display - Screen Produced 3/20/2026 5:05:04 AM | ||||
|---|---|---|---|---|
| Account: R131605320 | Type: Residential | Location: |
1157 NW 81ST ST |
|
| Building Name/Occupant: |
|
OKLAHOMA CITY |
||
| Owner Name 1: | DABISH JASON |
Parcel PIN#: |
3726-13-160-5320 |
|
| Owner Name 2: | 1/4 section #: |
3726 |
||
| Owner Name 3: | Parent Acct: |
|
||
| Billing Address: | 1157 NW 81ST ST | Tax District: |
|
|
| City, State, Zip | OKLAHOMA CITY, OK 73114 | School System: |
Oklahoma City #89 |
|
|
Country: (If noted) |
Land Size: |
0.1607 Acres |
||
|
Land Value: 25,200 |
|
|||
|
Sect 32-T13N-R3W Qtr SE |
HIGHLAND VIEW ADD
Block
016
Lot
000
|
|||
| Full Legal Description: HIGHLAND VIEW ADD 016 000 LOTS 34 & 35 |
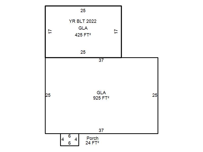
| Photo & Sketch (if available) | Comp Sales (ordered by relevancy) |
|
||||||||||||||||||
|
||||||||||||||||||||
| Value History (*The County Treasurer 405-713-1300 posts & collects actual tax amounts. Contact information HERE) | |||||||||||||
|---|---|---|---|---|---|---|---|---|---|---|---|---|---|
| Year | Market Value | Taxable Mkt Value | Gross Assessed | Exemption | Net Assessed | Millage | Est. Tax | Tax Savings | |||||
|
2025 |
242,900 |
242,900 |
26,719 |
0 |
26,719 |
122.90 |
$3,284 |
$0 |
|||||
|
2024 |
243,500 |
243,500 |
26,785 |
0 |
26,785 |
123.89 |
$3,318 |
$0 |
|||||
|
2023 |
29,825 |
29,825 |
3,280 |
0 |
3,280 |
122.82 |
$403 |
$0 |
|||||
|
2022 |
77,500 |
60,166 |
6,618 |
0 |
6,618 |
117.63 |
$779 |
$224 |
|||||
|
2021 |
67,000 |
57,301 |
6,303 |
0 |
6,303 |
117.70 |
$742 |
$126 |
|||||
| Property Account Status/Adjustments/Exemptions | ||
|---|---|---|
| Account # | Exemption Description | Amount |
|
R131605320 |
5% Capped Account |
0 |
| Property Deed Transaction History (Recorded in the County Clerk's Office) | ||||||||||
|---|---|---|---|---|---|---|---|---|---|---|
| Date | Type | Book | Page | Price | Grantor | Grantee | ||||
|
12/6/2022 |
|
Hmstd Off & |
$0 |
ESPINOSA JESUS |
HPJ FAMILY LIMITED PARTNERSHIP |
|||||
|
12/6/2022 |
|
Deeds |
$66,000 |
HPJ FAMILY LIMITED PARTNERSHIP |
DABISH JASON |
|||||
|
8/1/1997 |
|
Historical |
$0 |
JOHNSTON HARRY J & PEGGY J TRS |
HPJ FAMILY LIMITED PARTNERSHIP |
|||||
|
8/25/1994 |
|
Historical |
$0 |
JOHNSTON HARRY J & PEGGY J TRS |
JOHNSTON HARRY J & PEGGY J TRS |
|||||
|
6/15/1994 |
|
Historical |
$0 |
JOHNSTON PEGGY |
JOHNSTON HARRY J & PEGGY J TRS |
|||||
| Last Mailed Notice of Value (N.O.V.) Information/History | ||||||||
|---|---|---|---|---|---|---|---|---|
| Year | Date | Market Value | Taxable Market Value | Gross Assessed | Exemption | Net Assessed | ||
|
2026 |
02/23/2026 |
243,000 |
243,000 |
26,730 |
0 |
26,730 |
||
|
2025 |
02/14/2025 |
250,500 |
250,500 |
27,555 |
0 |
27,555 |
||
|
2024 |
03/01/2024 |
243,500 |
243,500 |
26,785 |
0 |
26,785 |
||
|
2022 |
03/15/2022 |
77,500 |
60,166 |
6,618 |
0 |
6,618 |
||
|
2021 |
03/19/2021 |
67,000 |
57,301 |
6,303 |
0 |
6,303 |
||
| Property Building Permit History | ||||||
|---|---|---|---|---|---|---|
| Issued | Permit # | Provided by | Bldg # | Description | Est Construction Cost | Status |
|
5/11/2022 |
|
|
1 |
Add On |
|
Inactive |
|
5/11/2022 |
|
|
1 |
Remodeled |
|
Inactive |
| Click button on building number to access detailed information: | ||||||
|---|---|---|---|---|---|---|
| Bldg # | Vacant/Improved Land | Bldg Description | Year Built | SqFt | # Stories | |
|
1 |
Improved |
Ranch 1 Story |
1949 |
1,350 |
1 Stories |
|