|
|
|
| Larry Stein Oklahoma County Assessor (405) 713-1200 - Public Access System |
|
|
|
|
|
|
| Real Property Display - Screen Produced 3/18/2026 4:35:07 AM | ||||
|---|---|---|---|---|
| Account: R131607242 | Type: Residential | Location: |
1231 NW 79TH ST |
|
| Building Name/Occupant: |
|
OKLAHOMA CITY |
||
| Owner Name 1: | WEAMM FAMILY LIV TRUST |
Parcel PIN#: |
3726-13-160-7242 |
|
| Owner Name 2: | 1/4 section #: |
3726 |
||
| Owner Name 3: | Parent Acct: |
|
||
| Billing Address: | 6701 NE 109TH ST | Tax District: |
|
|
| City, State, Zip | EDMOND, OK 73013-8368 | School System: |
Oklahoma City #89 |
|
|
Country: (If noted) |
Land Size: |
0.1964 Acres |
||
|
Land Value: 41,064 |
|
|||
|
Sect 32-T13N-R3W Qtr SE |
HIGHLAND VIEW ADD
Block
022
Lot
000
|
|||
| Full Legal Description: HIGHLAND VIEW ADD 022 000 BEG 9FT E OF SE/C BLK 22 TH N145FT E59FT S145FT W59FT TO BEG AKA E59FT OF W68FT OF VACATED STREET ADJ LTS 7 THRU 12 ON E |
| Photo & Sketch (if available) | Comp Sales (ordered by relevancy) |
|
||||||||||||||||||
|
||||||||||||||||||||
| Value History (*The County Treasurer 405-713-1300 posts & collects actual tax amounts. Contact information HERE) | |||||||||||||
|---|---|---|---|---|---|---|---|---|---|---|---|---|---|
| Year | Market Value | Taxable Mkt Value | Gross Assessed | Exemption | Net Assessed | Millage | Est. Tax | Tax Savings | |||||
|
2025 |
194,000 |
151,881 |
16,706 |
0 |
16,706 |
122.90 |
$2,053 |
$569 |
|||||
|
2024 |
189,500 |
144,649 |
15,910 |
0 |
15,910 |
123.89 |
$1,971 |
$611 |
|||||
|
2023 |
178,500 |
137,761 |
15,152 |
0 |
15,152 |
122.82 |
$1,861 |
$550 |
|||||
|
2022 |
146,000 |
130,725 |
14,379 |
0 |
14,379 |
117.63 |
$1,691 |
$198 |
|||||
|
2021 |
124,500 |
124,500 |
13,695 |
0 |
13,695 |
117.70 |
$1,612 |
$0 |
|||||
| Property Account Status/Adjustments/Exemptions | ||
|---|---|---|
| Account # | Exemption Description | Amount |
|
R131607242 |
5% Capped Account |
0 |
| Property Deed Transaction History (Recorded in the County Clerk's Office) | ||||||||||
|---|---|---|---|---|---|---|---|---|---|---|
| Date | Type | Book | Page | Price | Grantor | Grantee | ||||
|
5/27/2025 |
|
Hmstd Off & |
$0 |
BLASQUEZ WILBERTO S & ESPERANZA M TRS |
WEAMM FAMILY LIV TRUST |
|||||
|
9/10/2024 |
|
Hmstd Off & |
$0 |
BLASQUEZ WILBERTO S & ESPERANZA M TRS |
WEAMM FAMILY LIV TRUST |
|||||
|
8/17/2020 |
|
Deeds |
$120,000 |
FOX MATTHEW R |
BLASQUEZ WILBERTO S & ESPERANZA M TRS |
|||||
|
10/21/2016 |
|
Deeds |
$120,000 |
BURNETT MARK A BURNETT DESLY J |
FOX MATTHEW R |
|||||
|
12/30/2011 |
|
Deeds |
$55,000 |
WOLF STEPHEN A JR |
BURNETT MARK A BURNETT DESLY J |
|||||
| Last Mailed Notice of Value (N.O.V.) Information/History | ||||||||
|---|---|---|---|---|---|---|---|---|
| Year | Date | Market Value | Taxable Market Value | Gross Assessed | Exemption | Net Assessed | ||
|
2026 |
02/23/2026 |
195,000 |
159,475 |
17,541 |
0 |
17,541 |
||
|
2025 |
02/14/2025 |
194,000 |
151,881 |
16,706 |
0 |
16,706 |
||
|
2024 |
02/13/2024 |
189,500 |
144,649 |
15,910 |
0 |
15,910 |
||
|
2023 |
03/02/2023 |
178,500 |
137,761 |
15,152 |
0 |
15,152 |
||
|
2022 |
03/15/2022 |
146,000 |
130,725 |
14,379 |
0 |
14,379 |
||
| Property Building Permit History | |||||||||||
|---|---|---|---|---|---|---|---|---|---|---|---|
| Issued | Permit # | Provided by | Bldg # | Description | Est Construction Cost | Status | |||||
| No Building Permit records returned. | |||||||||||
| Click button on building number to access detailed information: | ||||||
|---|---|---|---|---|---|---|
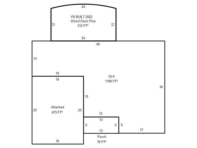
| Bldg # | Vacant/Improved Land | Bldg Description | Year Built | SqFt | # Stories | |
|
1 |
Improved |
Ranch 1 Story |
1955 |
1,189 |
1 Stories |
|