|
|
|
| Larry Stein Oklahoma County Assessor (405) 713-1200 - Public Access System |
|
|
|
|
|
|
| Real Property Display - Screen Produced 3/22/2026 5:20:08 AM | ||||
|---|---|---|---|---|
| Account: R131608317 | Type: Residential | Location: |
1140 NW 80TH ST |
|
| Building Name/Occupant: |
|
OKLAHOMA CITY |
||
| Owner Name 1: | YELVINGTON NICHOLAS & ANNA MARIE |
Parcel PIN#: |
3726-13-160-8317 |
|
| Owner Name 2: | 1/4 section #: |
3726 |
||
| Owner Name 3: | Parent Acct: |
|
||
| Billing Address: | 6638 VALLEY RIDGE DR | Tax District: |
|
|
| City, State, Zip | EDMOND, OK 73034 | School System: |
Oklahoma City #89 |
|
|
Country: (If noted) |
Land Size: |
0.1607 Acres |
||
|
Land Value: 33,600 |
|
|||
|
Sect 32-T13N-R3W Qtr SE |
HIGHLAND VIEW ADD
Block
024
Lot
000
|
|||
| Full Legal Description: HIGHLAND VIEW ADD 024 000 LOTS 47 & 48 |
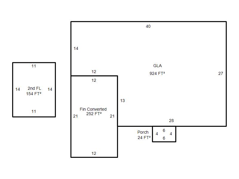
| Photo & Sketch (if available) | Comp Sales (ordered by relevancy) |
|
||||||||||||||||||
|
||||||||||||||||||||
| Value History (*The County Treasurer 405-713-1300 posts & collects actual tax amounts. Contact information HERE) | |||||||||||||
|---|---|---|---|---|---|---|---|---|---|---|---|---|---|
| Year | Market Value | Taxable Mkt Value | Gross Assessed | Exemption | Net Assessed | Millage | Est. Tax | Tax Savings | |||||
|
2025 |
173,000 |
122,522 |
13,476 |
0 |
13,476 |
122.90 |
$1,656 |
$682 |
|||||
|
2024 |
167,000 |
116,688 |
12,835 |
0 |
12,835 |
123.89 |
$1,590 |
$686 |
|||||
|
2023 |
158,000 |
111,132 |
12,224 |
0 |
12,224 |
122.82 |
$1,501 |
$633 |
|||||
|
2022 |
129,500 |
105,840 |
11,642 |
0 |
11,642 |
117.63 |
$1,369 |
$306 |
|||||
|
2021 |
101,000 |
100,800 |
11,088 |
0 |
11,088 |
117.70 |
$1,305 |
$3 |
|||||
| Property Account Status/Adjustments/Exemptions | ||
|---|---|---|
| Account # | Exemption Description | Amount |
|
R131608317 |
5% Capped Account |
0 |
| Property Deed Transaction History (Recorded in the County Clerk's Office) | ||||||||||
|---|---|---|---|---|---|---|---|---|---|---|
| Date | Type | Book | Page | Price | Grantor | Grantee | ||||
|
7/24/2019 |
|
Deeds |
$90,000 |
RANEY BLAKE |
YELVINGTON NICHOLAS & ANNA MARIE |
|||||
|
6/26/2015 |
|
Deeds |
$99,000 |
TPC CONSTRUCTION INC |
RANEY BLAKE |
|||||
|
5/9/2011 |
|
Hmstd Off & |
$0 |
CARTER OVERTON L & CECELIA P |
TPC CONSTRUCTION INC |
|||||
|
12/6/2006 |
|
Deeds |
$83,000 |
MISTY MOUNTAIN PROPERTIES LLC |
CARTER OVERTON L & CECELIA P |
|||||
|
6/19/2006 |
|
Deeds |
$36,000 |
LASALLE BANK TRS |
MISTY MOUNTAIN PROPERTIES LLC |
|||||
| Last Mailed Notice of Value (N.O.V.) Information/History | ||||||||
|---|---|---|---|---|---|---|---|---|
| Year | Date | Market Value | Taxable Market Value | Gross Assessed | Exemption | Net Assessed | ||
|
2026 |
02/23/2026 |
174,000 |
128,648 |
14,150 |
0 |
14,150 |
||
|
2025 |
02/14/2025 |
173,000 |
122,522 |
13,476 |
0 |
13,476 |
||
|
2024 |
02/13/2024 |
167,000 |
116,688 |
12,835 |
0 |
12,835 |
||
|
2023 |
02/14/2023 |
158,000 |
111,132 |
12,224 |
0 |
12,224 |
||
|
2022 |
03/15/2022 |
129,500 |
105,840 |
11,642 |
0 |
11,642 |
||
| Property Building Permit History | ||||||
|---|---|---|---|---|---|---|
| Issued | Permit # | Provided by | Bldg # | Description | Est Construction Cost | Status |
|
6/26/2005 |
10324878 |
OKLAHOMA CITY |
1 |
Remodeled |
0 |
Inactive |
| Click button on building number to access detailed information: | ||||||
|---|---|---|---|---|---|---|
| Bldg # | Vacant/Improved Land | Bldg Description | Year Built | SqFt | # Stories | |
|
1 |
Improved |
1½ Story Fin |
1948 |
1,078 |
1.5 Stories |
|