|
|
|
| Larry Stein Oklahoma County Assessor (405) 713-1200 - Public Access System |
|
|
|
|
|
|
| Real Property Display - Screen Produced 4/3/2026 5:11:54 AM | ||||
|---|---|---|---|---|
| Account: R150110530 | Type: Residential | Location: |
1106 JET DR |
|
| Building Name/Occupant: |
|
MIDWEST CITY |
||
| Owner Name 1: | HEARTLAND HISTORICAL PROPERTIES LLC |
Parcel PIN#: |
1433-15-011-0530 |
|
| Owner Name 2: | 1/4 section #: |
1433 |
||
| Owner Name 3: | Parent Acct: |
|
||
| Billing Address: | 9641 CASTLE RD | Tax District: |
|
|
| City, State, Zip | OKLAHOMA CITY, OK 73162 | School System: |
Mid-Del #52 |
|
|
Country: (If noted) |
UNITED STATES |
Land Size: |
0.1970 Acres |
|
|
Land Value: 20,163 |
|
|||
|
Sect 9-T11N-R2W Qtr NE |
SPECKMAN HEIGHTS 2ND
Block
003
Lot
019
|
|||
| Full Legal Description: SPECKMAN HEIGHTS 2ND 003 019 |
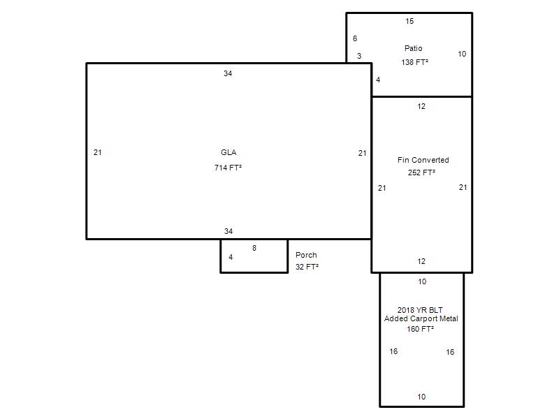
| Photo & Sketch (if available) | Comp Sales (ordered by relevancy) |
|
||||||||||||||||||
|
||||||||||||||||||||
| Value History (*The County Treasurer 405-713-1300 posts & collects actual tax amounts. Contact information HERE) | |||||||||||||
|---|---|---|---|---|---|---|---|---|---|---|---|---|---|
| Year | Market Value | Taxable Mkt Value | Gross Assessed | Exemption | Net Assessed | Millage | Est. Tax | Tax Savings | |||||
|
2026 |
112,000 |
89,784 |
9,875 |
0 |
9,875 |
119.58 |
$1,181 |
$292 |
|||||
|
2025 |
115,500 |
85,509 |
9,405 |
0 |
9,405 |
119.58 |
$1,125 |
$394 |
|||||
|
2024 |
107,500 |
81,438 |
8,957 |
0 |
8,957 |
122.51 |
$1,097 |
$351 |
|||||
|
2023 |
96,500 |
77,560 |
8,531 |
0 |
8,531 |
117.71 |
$1,004 |
$245 |
|||||
|
2022 |
89,000 |
73,867 |
8,124 |
0 |
8,124 |
116.64 |
$948 |
$194 |
|||||
| Property Account Status/Adjustments/Exemptions | ||
|---|---|---|
| Account # | Exemption Description | Amount |
|
R150110530 |
5% Capped Account |
0 |
| Property Deed Transaction History (Recorded in the County Clerk's Office) | |||||||
|---|---|---|---|---|---|---|---|
| Date | Type | Book | Page | Price | Grantor | Grantee | |
|
4/27/2018 |
|
Deeds |
$28,000 |
SAHLI RENTAL PROPERTIES LLC |
HEARTLAND HISTORICAL PROPERTIES LLC |
||
|
10/6/2017 |
|
Deeds |
$20,000 |
GIPSON RANDY A & JUDY L |
SAHLI RENTAL PROPERTIES LLC |
||
|
10/4/1991 |
|
Historical |
$0 |
SECRETARY OF VETERANS AFFAIRS |
GIPSON RANDY A & JUDY L |
||
|
3/20/1991 |
|
Historical |
$30,000 |
SUTTON DONALD E |
SECRETARY OF VETERANS AFFAIRS |
||
|
3/1/1986 |
|
Historical |
$30,000 |
|
SUTTON DONALD E |
||
| Last Mailed Notice of Value (N.O.V.) Information/History | ||||||||
|---|---|---|---|---|---|---|---|---|
| Year | Date | Market Value | Taxable Market Value | Gross Assessed | Exemption | Net Assessed | ||
|
2026 |
02/06/2026 |
112,000 |
89,784 |
9,875 |
0 |
9,875 |
||
|
2025 |
01/31/2025 |
115,500 |
85,509 |
9,405 |
0 |
9,405 |
||
|
2024 |
01/22/2024 |
107,500 |
81,438 |
8,957 |
0 |
8,957 |
||
|
2023 |
01/23/2023 |
96,500 |
77,560 |
8,531 |
0 |
8,531 |
||
|
2022 |
02/22/2022 |
89,000 |
73,867 |
8,124 |
0 |
8,124 |
||
| Property Building Permit History | ||||||
|---|---|---|---|---|---|---|
| Issued | Permit # | Provided by | Bldg # | Description | Est Construction Cost | Status |
|
10/4/2018 |
|
|
1 |
Carport |
3,200 |
Inactive |
|
6/27/2018 |
|
|
1 |
Remodeled |
32,000 |
Inactive |
| Click button on building number to access detailed information: | ||||||
|---|---|---|---|---|---|---|
| Bldg # | Vacant/Improved Land | Bldg Description | Year Built | SqFt | # Stories | |
|
1 |
Improved |
Ranch 1 Story |
1949 |
714 |
1 Stories |
|