|
|
|
| Larry Stein Oklahoma County Assessor (405) 713-1200 - Public Access System |
|
|
|
|
|
|
| Real Property Display - Screen Produced 4/2/2026 2:04:23 AM | ||||
|---|---|---|---|---|
| Account: R169601475 | Type: Residential | Location: |
1620 WESTMINSTER PL |
|
| Building Name/Occupant: |
|
NICHOLS HILLS |
||
| Owner Name 1: | CLARK SHARON M |
Parcel PIN#: |
3727-16-960-1475 |
|
| Owner Name 2: | 1/4 section #: |
3727 |
||
| Owner Name 3: | Parent Acct: |
|
||
| Billing Address: | 1620 WESTMINSTER PL | Tax District: |
|
|
| City, State, Zip | NICHOLS HILLS, OK 73120-1230 | School System: |
Oklahoma City #89 |
|
|
Country: (If noted) |
Land Size: |
0.2847 Acres |
||
|
Land Value: 134,540 |
|
|||
|
Sect 32-T13N-R3W Qtr SW |
WAVERLY SEC NICHOLS HILLS
Block
066
Lot
004
|
|||
| Full Legal Description: WAVERLY SEC NICHOLS HILLS 066 004 |
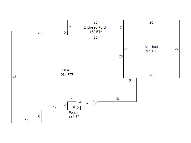
| Photo & Sketch (if available) | Comp Sales (ordered by relevancy) |
|
||||||||||||||||||
|
||||||||||||||||||||
| Value History (*The County Treasurer 405-713-1300 posts & collects actual tax amounts. Contact information HERE) | |||||||||||||
|---|---|---|---|---|---|---|---|---|---|---|---|---|---|
| Year | Market Value | Taxable Mkt Value | Gross Assessed | Exemption | Net Assessed | Millage | Est. Tax | Tax Savings | |||||
|
2026 |
420,000 |
406,494 |
44,714 |
0 |
44,714 |
140.78 |
$6,295 |
$209 |
|||||
|
2025 |
402,500 |
387,138 |
42,584 |
0 |
42,584 |
140.78 |
$5,995 |
$238 |
|||||
|
2024 |
395,500 |
368,703 |
40,557 |
0 |
40,557 |
141.11 |
$5,723 |
$416 |
|||||
|
2023 |
396,500 |
351,146 |
38,625 |
0 |
38,625 |
139.71 |
$5,396 |
$697 |
|||||
|
2022 |
342,000 |
334,425 |
36,786 |
0 |
36,786 |
127.53 |
$4,691 |
$106 |
|||||
| Property Account Status/Adjustments/Exemptions | ||
|---|---|---|
| Account # | Exemption Description | Amount |
|
R169601475 |
5% Capped Account |
0 |
| Property Deed Transaction History (Recorded in the County Clerk's Office) | |||||||
|---|---|---|---|---|---|---|---|
| Date | Type | Book | Page | Price | Grantor | Grantee | |
|
8/18/2025 |
|
Deeds |
$0 |
CLARK CHARLES P & SHARON M |
CLARK SHARON M |
||
|
11/11/2003 |
|
Deeds |
$240,000 |
MACEY SAMMIE LOU |
CLARK CHARLES P & SHARON M |
||
|
5/26/2000 |
|
Deeds |
$170,000 |
BAKER ELLEN M |
MACEY SAMMIE LOU |
||
|
1/11/1993 |
|
Historical |
$141,000 |
CAMERON WILLIAM M |
BAKER ELLEN M |
||
|
7/1/1986 |
|
Historical |
$118,000 |
|
CAMERON WILLIAM M |
||
| Last Mailed Notice of Value (N.O.V.) Information/History | ||||||||
|---|---|---|---|---|---|---|---|---|
| Year | Date | Market Value | Taxable Market Value | Gross Assessed | Exemption | Net Assessed | ||
|
2026 |
02/23/2026 |
420,000 |
406,494 |
44,714 |
0 |
44,714 |
||
|
2025 |
02/14/2025 |
402,500 |
387,138 |
42,584 |
0 |
42,584 |
||
|
2024 |
02/13/2024 |
395,500 |
368,703 |
40,557 |
0 |
40,557 |
||
|
2023 |
02/14/2023 |
396,500 |
351,146 |
38,625 |
0 |
38,625 |
||
|
2022 |
03/15/2022 |
342,000 |
334,425 |
36,786 |
0 |
36,786 |
||
| Property Building Permit History | |||||||||||
|---|---|---|---|---|---|---|---|---|---|---|---|
| Issued | Permit # | Provided by | Bldg # | Description | Est Construction Cost | Status | |||||
| No Building Permit records returned. | |||||||||||
| Click button on building number to access detailed information: | ||||||
|---|---|---|---|---|---|---|
| Bldg # | Vacant/Improved Land | Bldg Description | Year Built | SqFt | # Stories | |
|
1 |
Improved |
Ranch 1 Story |
1954 |
1,934 |
1 Stories |
|