|
|
|
| Larry Stein Oklahoma County Assessor (405) 713-1200 - Public Access System |
|
|
|
|
|
|
| Real Property Display - Screen Produced 4/2/2026 12:25:28 AM | ||||
|---|---|---|---|---|
| Account: R130285790 | Type: Residential | Location: |
212 NW 88TH ST |
|
| Building Name/Occupant: |
|
OKLAHOMA CITY |
||
| Owner Name 1: | MULL PROPERTIES LLC |
Parcel PIN#: |
3729-13-028-5790 |
|
| Owner Name 2: | 1/4 section #: |
3729 |
||
| Owner Name 3: | Parent Acct: |
|
||
| Billing Address: | 7201 N CLASSEN BLVD, Unit 100 | Tax District: |
|
|
| City, State, Zip | OKLAHOMA CITY, OK 73116-7133 | School System: |
Oklahoma City #89 |
|
|
Country: (If noted) |
Land Size: |
0.1607 Acres |
||
|
Land Value: 22,050 |
|
|||
|
Sect 33-T13N-R3W Qtr NE |
ESTES ACRES ADDITION
Block
013
Lot
000
|
|||
| Full Legal Description: ESTES ACRES ADDITION 013 000 LOTS 7 & 8 |
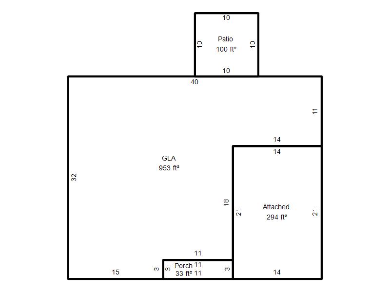
| Photo & Sketch (if available) | Comp Sales (ordered by relevancy) |
|
||||||||||||||||||
|
||||||||||||||||||||
| Value History (*The County Treasurer 405-713-1300 posts & collects actual tax amounts. Contact information HERE) | |||||||||||||
|---|---|---|---|---|---|---|---|---|---|---|---|---|---|
| Year | Market Value | Taxable Mkt Value | Gross Assessed | Exemption | Net Assessed | Millage | Est. Tax | Tax Savings | |||||
|
2026 |
118,500 |
68,945 |
7,583 |
0 |
7,583 |
122.90 |
$932 |
$670 |
|||||
|
2025 |
114,000 |
65,662 |
7,221 |
0 |
7,221 |
122.90 |
$888 |
$653 |
|||||
|
2024 |
108,500 |
62,536 |
6,878 |
0 |
6,878 |
123.89 |
$852 |
$626 |
|||||
|
2023 |
102,500 |
59,559 |
6,550 |
0 |
6,550 |
122.82 |
$805 |
$580 |
|||||
|
2022 |
79,500 |
56,723 |
6,238 |
0 |
6,238 |
117.63 |
$734 |
$295 |
|||||
| Property Account Status/Adjustments/Exemptions | ||
|---|---|---|
| Account # | Exemption Description | Amount |
|
R130285790 |
5% Capped Account |
0 |
| Property Deed Transaction History (Recorded in the County Clerk's Office) | ||||||||||
|---|---|---|---|---|---|---|---|---|---|---|
| Date | Type | Book | Page | Price | Grantor | Grantee | ||||
|
10/14/2009 |
|
Deeds |
$0 |
SMITH WINNIE V |
SMITH WINNIE V TRS |
|||||
|
10/14/2009 |
|
Deeds |
$27,000 |
SMITH WINNIE V TRS SMITH WINNIE V REV LIV TRUST |
MULL PROPERTIES LLC |
|||||
|
2/26/2009 |
|
Deeds |
$0 |
SMITH WINNIE V HALL LAVONNE R |
SMITH WINNIE V TRS |
|||||
|
4/30/1996 |
|
Historical |
$0 |
HALL LAVONNE R |
HALL LAVONNE R |
|||||
|
12/27/1993 |
|
Historical |
$0 |
TRANSAMERICA FINANCIAL |
HALL LAVONNE R |
|||||
| Last Mailed Notice of Value (N.O.V.) Information/History | ||||||||
|---|---|---|---|---|---|---|---|---|
| Year | Date | Market Value | Taxable Market Value | Gross Assessed | Exemption | Net Assessed | ||
|
2026 |
02/23/2026 |
118,500 |
68,945 |
7,583 |
0 |
7,583 |
||
|
2025 |
02/14/2025 |
114,000 |
65,662 |
7,221 |
0 |
7,221 |
||
|
2024 |
02/13/2024 |
108,500 |
62,536 |
6,878 |
0 |
6,878 |
||
|
2023 |
02/14/2023 |
102,500 |
59,559 |
6,550 |
0 |
6,550 |
||
|
2022 |
03/15/2022 |
79,500 |
56,723 |
6,238 |
0 |
6,238 |
||
| Property Building Permit History | |||||||||||
|---|---|---|---|---|---|---|---|---|---|---|---|
| Issued | Permit # | Provided by | Bldg # | Description | Est Construction Cost | Status | |||||
| No Building Permit records returned. | |||||||||||
| Click button on building number to access detailed information: | ||||||
|---|---|---|---|---|---|---|
| Bldg # | Vacant/Improved Land | Bldg Description | Year Built | SqFt | # Stories | |
|
1 |
Improved |
Ranch 1 Story |
1973 |
953 |
1 Stories |
|