|
|
|
| Larry Stein Oklahoma County Assessor (405) 713-1200 - Public Access System |
|
|
|
|
|
|
| Real Property Display - Screen Produced 3/3/2026 12:53:10 PM | ||||
|---|---|---|---|---|
| Account: R130122790 | Type: Residential | Location: |
744 NW 92ND ST |
|
| Building Name/Occupant: |
|
OKLAHOMA CITY |
||
| Owner Name 1: | DIAZ YEYSON ROEL SIGUENZA |
Parcel PIN#: |
3732-13-012-2790 |
|
| Owner Name 2: | 1/4 section #: |
3732 |
||
| Owner Name 3: | Parent Acct: |
|
||
| Billing Address: | 744 NW 92ND ST | Tax District: |
|
|
| City, State, Zip | OKLAHOMA CITY, OK 73114 | School System: |
Oklahoma City #89 |
|
|
Country: (If noted) |
Land Size: |
0.1607 Acres |
||
|
Land Value: 14,350 |
|
|||
|
Sect 33-T13N-R3W Qtr NW |
BRITTON CITY FIRST
Block
011
Lot
000
|
|||
| Full Legal Description: BRITTON CITY FIRST 011 000 LOTS 23 & 24 |
| No comparable sales report available. | ||||||||||||||||||||||
|
||||||||||||||||||||||
| Value History (*The County Treasurer 405-713-1300 posts & collects actual tax amounts. Contact information HERE) | |||||||||||||
|---|---|---|---|---|---|---|---|---|---|---|---|---|---|
| Year | Market Value | Taxable Mkt Value | Gross Assessed | Exemption | Net Assessed | Millage | Est. Tax | Tax Savings | |||||
|
2025 |
115,816 |
111,946 |
12,313 |
0 |
12,313 |
122.90 |
$1,513 |
$52 |
|||||
|
2024 |
106,616 |
106,616 |
11,727 |
0 |
11,727 |
123.89 |
$1,453 |
$0 |
|||||
|
2023 |
86,973 |
52,282 |
5,750 |
0 |
5,750 |
122.82 |
$706 |
$469 |
|||||
|
2022 |
80,602 |
49,793 |
5,476 |
0 |
5,476 |
117.63 |
$644 |
$399 |
|||||
|
2021 |
47,422 |
47,422 |
5,216 |
0 |
5,216 |
117.70 |
$614 |
$0 |
|||||
| Property Account Status/Adjustments/Exemptions | ||
|---|---|---|
| Account # | Exemption Description | Amount |
|
R130122790 |
5% Capped Account |
0 |
| Property Deed Transaction History (Recorded in the County Clerk's Office) | ||||||||||
|---|---|---|---|---|---|---|---|---|---|---|
| Date | Type | Book | Page | Price | Grantor | Grantee | ||||
|
1/6/2023 |
|
Deeds |
$66,000 |
B P & G PROPERTIES LLC |
DIAZ YEYSON ROEL SIGUENZA |
|||||
|
1/15/2015 |
|
Deeds |
$20,000 |
DAVIS JAMIE J |
B P & G PROPERTIES LLC |
|||||
|
12/19/2013 |
|
Hmstd Off & |
$0 |
MILLS EVERETT & LAVANDA CO TRS |
DAVIS JAMIE J |
|||||
|
8/27/1997 |
|
Historical |
$0 |
MILLS EVERETT R & LAVANDA M |
MILLS EVERETT & LAVANDA CO TRS |
|||||
|
5/6/1996 |
|
Historical |
$0 |
PHIFER JOE E |
MILLS EVERETT R & LAVANDA M |
|||||
| Last Mailed Notice of Value (N.O.V.) Information/History | ||||||||
|---|---|---|---|---|---|---|---|---|
| Year | Date | Market Value | Taxable Market Value | Gross Assessed | Exemption | Net Assessed | ||
|
2025 |
02/14/2025 |
115,816 |
111,946 |
12,313 |
0 |
12,313 |
||
|
2024 |
02/13/2024 |
106,616 |
106,616 |
11,727 |
0 |
11,727 |
||
|
2023 |
02/14/2023 |
86,973 |
52,282 |
5,750 |
0 |
5,750 |
||
|
2022 |
03/15/2022 |
80,602 |
49,793 |
5,476 |
0 |
5,476 |
||
|
2020 |
03/10/2020 |
47,422 |
47,422 |
5,216 |
0 |
5,216 |
||
| Property Building Permit History | |||||||||||
|---|---|---|---|---|---|---|---|---|---|---|---|
| Issued | Permit # | Provided by | Bldg # | Description | Est Construction Cost | Status | |||||
| No Building Permit records returned. | |||||||||||
| Click button on building number to access detailed information: | ||||||
|---|---|---|---|---|---|---|
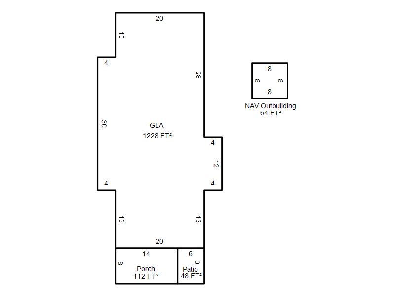
| Bldg # | Vacant/Improved Land | Bldg Description | Year Built | SqFt | # Stories | |
|
1 |
Improved |
Ranch 1 Story |
1920 |
1,228 |
1 Stories |
|
|
2 |
Improved |
Salvage |
1910 |
660 |
1 Stories |
|