|
|
|
| Larry Stein Oklahoma County Assessor (405) 713-1200 - Public Access System |
|
|
|
|
|
|
| Real Property Display - Screen Produced 4/1/2026 1:54:56 AM | ||||
|---|---|---|---|---|
| Account: R146432320 | Type: Residential | Location: |
901 MUSGRAVE BLVD |
|
| Building Name/Occupant: |
|
OKLAHOMA CITY |
||
| Owner Name 1: | CLARK WILLIE J & JETTYE MARIE |
Parcel PIN#: |
3734-14-643-2320 |
|
| Owner Name 2: | 1/4 section #: |
3734 |
||
| Owner Name 3: | Parent Acct: |
|
||
| Billing Address: | 901 MUSGRAVE BLVD | Tax District: |
|
|
| City, State, Zip | OKLAHOMA CITY, OK 73114-4012 | School System: |
Oklahoma City #89 |
|
|
Country: (If noted) |
Land Size: |
0.1910 Acres |
||
|
Land Value: 24,960 |
|
|||
|
Sect 34-T13N-R3W Qtr SE |
MUSGRAVES GOLD MEDAL HILLS
Block
010
Lot
034
|
|||
| Full Legal Description: MUSGRAVES GOLD MEDAL HILLS 010 034 |
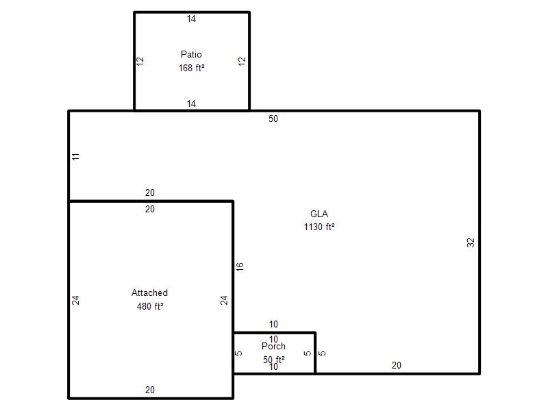
| Photo & Sketch (if available) | Comp Sales (ordered by relevancy) |
|
||||||||||||||||||
|
||||||||||||||||||||
| Value History (*The County Treasurer 405-713-1300 posts & collects actual tax amounts. Contact information HERE) | |||||||||||||
|---|---|---|---|---|---|---|---|---|---|---|---|---|---|
| Year | Market Value | Taxable Mkt Value | Gross Assessed | Exemption | Net Assessed | Millage | Est. Tax | Tax Savings | |||||
|
2026 |
125,000 |
92,470 |
10,171 |
10,171 |
0 |
122.90 |
$0 |
$1,690 |
|||||
|
2025 |
124,000 |
89,777 |
9,874 |
9,874 |
0 |
122.90 |
$0 |
$1,676 |
|||||
|
2024 |
115,000 |
87,163 |
9,587 |
9,587 |
0 |
123.89 |
$0 |
$1,567 |
|||||
|
2023 |
111,000 |
84,625 |
9,308 |
9,308 |
0 |
122.82 |
$0 |
$1,500 |
|||||
|
2022 |
88,500 |
82,161 |
9,036 |
9,036 |
0 |
117.63 |
$0 |
$1,145 |
|||||
| Property Account Status/Adjustments/Exemptions | ||
|---|---|---|
| Account # | Exemption Description | Amount |
|
R146432320 |
100% DAV Exemption |
100 |
|
R146432320 |
3% Cap Homestead |
0 |
|
R146432320 |
DAV Homestead |
0 |
| Property Deed Transaction History (Recorded in the County Clerk's Office) | |||||||
|---|---|---|---|---|---|---|---|
| Date | Type | Book | Page | Price | Grantor | Grantee | |
|
2/17/2017 |
|
Deeds |
$0 |
CLARK WILLIE J |
CLARK WILLIE J & JETTYE MARIE |
||
|
10/1/2003 |
|
Deeds |
$59,500 |
MOORE GLORIA |
CLARK WILLIE J |
||
|
5/1/1979 |
|
Historical |
$0 |
|
MOORE GLORIA |
||
| Last Mailed Notice of Value (N.O.V.) Information/History | ||||||||
|---|---|---|---|---|---|---|---|---|
| Year | Date | Market Value | Taxable Market Value | Gross Assessed | Exemption | Net Assessed | ||
|
2026 |
02/23/2026 |
125,000 |
92,470 |
10,171 |
10,171 |
0 |
||
|
2025 |
02/14/2025 |
124,000 |
89,777 |
9,874 |
9,874 |
0 |
||
|
2024 |
02/13/2024 |
115,000 |
87,163 |
9,587 |
9,587 |
0 |
||
|
2023 |
02/14/2023 |
111,000 |
84,625 |
9,308 |
9,308 |
0 |
||
|
2022 |
03/15/2022 |
88,500 |
82,161 |
9,036 |
9,036 |
0 |
||
| Property Building Permit History | |||||||||||
|---|---|---|---|---|---|---|---|---|---|---|---|
| Issued | Permit # | Provided by | Bldg # | Description | Est Construction Cost | Status | |||||
| No Building Permit records returned. | |||||||||||
| Click button on building number to access detailed information: | ||||||
|---|---|---|---|---|---|---|
| Bldg # | Vacant/Improved Land | Bldg Description | Year Built | SqFt | # Stories | |
|
1 |
Improved |
Ranch 1 Story |
1970 |
1,130 |
1 Stories |
|