|
|
|
| Larry Stein Oklahoma County Assessor (405) 713-1200 - Public Access System |
|
|
|
|
|
|
| Real Property Display - Screen Produced 4/1/2026 1:49:07 AM | ||||
|---|---|---|---|---|
| Account: R146432325 | Type: Residential | Location: |
905 MUSGRAVE BLVD |
|
| Building Name/Occupant: |
|
OKLAHOMA CITY |
||
| Owner Name 1: | STEARNS DANIEL & BEVERLY |
Parcel PIN#: |
3734-14-643-2325 |
|
| Owner Name 2: | 1/4 section #: |
3734 |
||
| Owner Name 3: | Parent Acct: |
|
||
| Billing Address: | 905 MUSGRAVE BLVD | Tax District: |
|
|
| City, State, Zip | OKLAHOMA CITY, OK 73114-4012 | School System: |
Oklahoma City #89 |
|
|
Country: (If noted) |
Land Size: |
0.1895 Acres |
||
|
Land Value: 24,765 |
|
|||
|
Sect 34-T13N-R3W Qtr SE |
MUSGRAVES GOLD MEDAL HILLS
Block
010
Lot
035
|
|||
| Full Legal Description: MUSGRAVES GOLD MEDAL HILLS 010 035 |
| Photo & Sketch (if available) | Comp Sales (ordered by relevancy) |
|
||||||||||||||||||
|
||||||||||||||||||||
| Value History (*The County Treasurer 405-713-1300 posts & collects actual tax amounts. Contact information HERE) | |||||||||||||
|---|---|---|---|---|---|---|---|---|---|---|---|---|---|
| Year | Market Value | Taxable Mkt Value | Gross Assessed | Exemption | Net Assessed | Millage | Est. Tax | Tax Savings | |||||
|
2026 |
135,000 |
100,705 |
11,076 |
1,000 |
10,076 |
122.90 |
$1,239 |
$587 |
|||||
|
2025 |
134,000 |
97,772 |
10,754 |
1,000 |
9,754 |
122.90 |
$1,199 |
$613 |
|||||
|
2024 |
124,000 |
94,925 |
10,441 |
1,000 |
9,441 |
123.89 |
$1,170 |
$520 |
|||||
|
2023 |
119,500 |
92,161 |
10,137 |
1,000 |
9,137 |
122.82 |
$1,122 |
$492 |
|||||
|
2022 |
96,000 |
89,477 |
9,841 |
1,000 |
8,841 |
117.63 |
$1,040 |
$202 |
|||||
| Property Account Status/Adjustments/Exemptions | ||
|---|---|---|
| Account # | Exemption Description | Amount |
|
R146432325 |
3% Cap Homestead |
0 |
|
R146432325 |
Homestead |
1,000 |
| Property Deed Transaction History (Recorded in the County Clerk's Office) | ||||||||||
|---|---|---|---|---|---|---|---|---|---|---|
| Date | Type | Book | Page | Price | Grantor | Grantee | ||||
|
2/25/2014 |
|
Deeds |
$75,000 |
PIERSOL LANCE E |
STEARNS DANIEL & BEVERLY |
|||||
|
12/9/2013 |
|
Deeds |
$0 |
SQUIER LYNNOY |
PIERSOL LANCE E |
|||||
|
4/18/2012 |
|
Deeds |
$74,000 |
PIERSOL LANCE E |
SQUIER LYNNOY |
|||||
|
12/7/2011 |
|
Other |
$0 |
FEDERAL NATIONAL MTG ASSOCIATION |
PIERSOL LANCE E |
|||||
|
7/26/2011 |
|
Hmstd Off & |
$0 |
NATIONSTAR MTG LLC |
FEDERAL NATIONAL MTG ASSOCIATION |
|||||
| Last Mailed Notice of Value (N.O.V.) Information/History | ||||||||
|---|---|---|---|---|---|---|---|---|
| Year | Date | Market Value | Taxable Market Value | Gross Assessed | Exemption | Net Assessed | ||
|
2026 |
02/23/2026 |
135,000 |
100,705 |
11,076 |
1,000 |
10,076 |
||
|
2025 |
02/14/2025 |
134,000 |
97,772 |
10,754 |
1,000 |
9,754 |
||
|
2024 |
02/13/2024 |
124,000 |
94,925 |
10,441 |
1,000 |
9,441 |
||
|
2023 |
02/14/2023 |
119,500 |
92,161 |
10,137 |
1,000 |
9,137 |
||
|
2022 |
03/15/2022 |
96,000 |
89,477 |
9,841 |
1,000 |
8,841 |
||
| Property Building Permit History | |||||||||||
|---|---|---|---|---|---|---|---|---|---|---|---|
| Issued | Permit # | Provided by | Bldg # | Description | Est Construction Cost | Status | |||||
| No Building Permit records returned. | |||||||||||
| Click button on building number to access detailed information: | ||||||
|---|---|---|---|---|---|---|
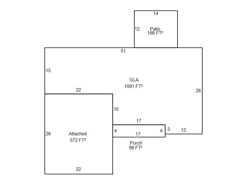
| Bldg # | Vacant/Improved Land | Bldg Description | Year Built | SqFt | # Stories | |
|
1 |
Improved |
Ranch 1 Story |
1970 |
1,091 |
1 Stories |
|