|
|
|
| Larry Stein Oklahoma County Assessor (405) 713-1200 - Public Access System |
|
|
|
|
|
|
| Real Property Display - Screen Produced 3/31/2026 10:12:08 PM | ||||
|---|---|---|---|---|
| Account: R146432915 | Type: Residential | Location: |
901 NE KATHERINE PL |
|
| Building Name/Occupant: |
|
OKLAHOMA CITY |
||
| Owner Name 1: | ANM PROPERTIES LLC |
Parcel PIN#: |
3734-14-643-2915 |
|
| Owner Name 2: | 1/4 section #: |
3734 |
||
| Owner Name 3: | Parent Acct: |
|
||
| Billing Address: | 2717 N KELLEY AVE | Tax District: |
|
|
| City, State, Zip | OKLAHOMA CITY, OK 73111 | School System: |
Oklahoma City #89 |
|
|
Country: (If noted) |
UNITED STATES |
Land Size: |
0.1970 Acres |
|
|
Land Value: 25,740 |
|
|||
|
Sect 34-T13N-R3W Qtr SE |
MUSGRAVES GOLD MEDAL HILLS
Block
014
Lot
021
|
|||
| Full Legal Description: MUSGRAVES GOLD MEDAL HILLS 014 021 |
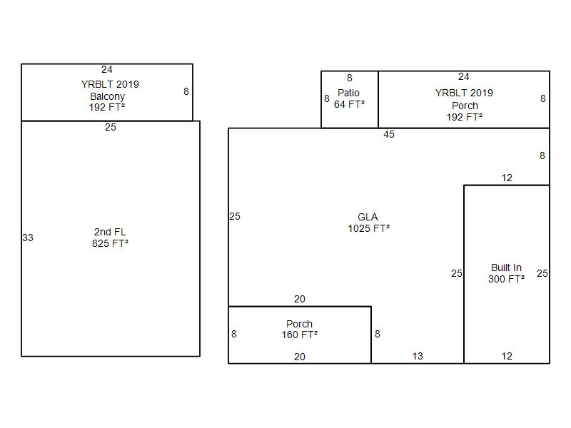
| Photo & Sketch (if available) | Comp Sales (ordered by relevancy) |
|
||||||||||||||||||
|
||||||||||||||||||||
| Value History (*The County Treasurer 405-713-1300 posts & collects actual tax amounts. Contact information HERE) | |||||||||||||
|---|---|---|---|---|---|---|---|---|---|---|---|---|---|
| Year | Market Value | Taxable Mkt Value | Gross Assessed | Exemption | Net Assessed | Millage | Est. Tax | Tax Savings | |||||
|
2026 |
199,500 |
199,500 |
21,945 |
0 |
21,945 |
122.90 |
$2,697 |
$0 |
|||||
|
2025 |
91,500 |
91,500 |
10,065 |
0 |
10,065 |
122.90 |
$1,237 |
$0 |
|||||
|
2024 |
86,500 |
40,122 |
4,413 |
0 |
4,413 |
123.89 |
$547 |
$632 |
|||||
|
2023 |
83,000 |
38,212 |
4,203 |
0 |
4,203 |
122.82 |
$516 |
$605 |
|||||
|
2022 |
64,000 |
36,393 |
4,002 |
0 |
4,002 |
117.63 |
$471 |
$357 |
|||||
| Property Account Status/Adjustments/Exemptions | ||
|---|---|---|
| Account # | Exemption Description | Amount |
|
R146432915 |
5% Capped Account |
0 |
| Property Deed Transaction History (Recorded in the County Clerk's Office) | |||||||
|---|---|---|---|---|---|---|---|
| Date | Type | Book | Page | Price | Grantor | Grantee | |
|
6/18/2024 |
|
Mult Parcel |
$168,000 |
PROPERTY MANAGEMENT SERVICES INC |
ANM PROPERTIES LLC |
||
|
8/26/2004 |
|
Hmstd Off & |
$0 |
PAULDEN CALVIN B & PEARL |
RAMSEY EDNA PER REP OF THE ESTATE OF PAULDEN CALVIN BEVERLY |
||
|
8/26/2004 |
|
Deeds |
$35,000 |
RAMSEY EDNA PER REP OF THE ESTATE OF PAULDEN CALVIN BEVERLY |
PROPERTY MANAGEMENT SERVICES INC |
||
|
11/11/1911 |
|
Historical |
$0 |
|
PAULDEN CALVIN B & PEARL |
||
| Last Mailed Notice of Value (N.O.V.) Information/History | ||||||||
|---|---|---|---|---|---|---|---|---|
| Year | Date | Market Value | Taxable Market Value | Gross Assessed | Exemption | Net Assessed | ||
|
2026 |
03/30/2026 |
199,500 |
199,500 |
21,945 |
0 |
21,945 |
||
|
2025 |
02/14/2025 |
91,500 |
91,500 |
10,065 |
0 |
10,065 |
||
|
2024 |
02/13/2024 |
86,500 |
40,122 |
4,413 |
0 |
4,413 |
||
|
2023 |
02/14/2023 |
83,000 |
38,212 |
4,203 |
0 |
4,203 |
||
|
2022 |
03/15/2022 |
64,000 |
36,393 |
4,002 |
0 |
4,002 |
||
| Property Building Permit History | |||||||||||
|---|---|---|---|---|---|---|---|---|---|---|---|
| Issued | Permit # | Provided by | Bldg # | Description | Est Construction Cost | Status | |||||
| No Building Permit records returned. | |||||||||||
| Click button on building number to access detailed information: | ||||||
|---|---|---|---|---|---|---|
| Bldg # | Vacant/Improved Land | Bldg Description | Year Built | SqFt | # Stories | |
|
1 |
Improved |
2 Story |
1963 |
1,850 |
2 Stories |
|