|
|
|
| Larry Stein Oklahoma County Assessor (405) 713-1200 - Public Access System |
|
|
|
|
|
|
| Real Property Display - Screen Produced 4/2/2026 12:13:54 AM | ||||
|---|---|---|---|---|
| Account: R134975850 | Type: Commercial | Location: |
2000 E BRITTON RD |
|
| Building Name/Occupant: |
W.L. MCNATT & COMPANY |
OKLAHOMA CITY |
||
| Owner Name 1: | ORANGE GATE PROPERTIES LLC |
Parcel PIN#: |
3744-13-497-5850 |
|
| Owner Name 2: | 1/4 section #: |
3744 |
||
| Owner Name 3: | Parent Acct: |
|
||
| Billing Address: | 217 E SHERIDAN | Tax District: |
|
|
| City, State, Zip | OKLAHOMA CITY, OK 73104 | School System: |
Oklahoma City #89 |
|
|
Country: (If noted) |
Land Size: |
1.9950 Acres |
||
|
Land Value: 745,614 |
|
|||
|
Sect 36-T13N-R3W Qtr NW |
UNPLTD PT SEC 36 13N 3W
Block
000
Lot
000
|
|||
| Full Legal Description: UNPLTD PT SEC 36 13N 3W BLK 000 LOT 000 PT NW4 SEC 36 13N 3W BEG NW/C NW4 TH E440FT S247.5FT W440FT N247.5FT TO BEG EX N50FT |
| No comparable sales report available. | ||||||||||||||||||||||
|
||||||||||||||||||||||
| Value History (*The County Treasurer 405-713-1300 posts & collects actual tax amounts. Contact information HERE) | |||||||||||||
|---|---|---|---|---|---|---|---|---|---|---|---|---|---|
| Year | Market Value | Taxable Mkt Value | Gross Assessed | Exemption | Net Assessed | Millage | Est. Tax | Tax Savings | |||||
|
2026 |
1,834,697 |
1,686,480 |
185,511 |
0 |
185,511 |
122.90 |
$22,800 |
$2,004 |
|||||
|
2025 |
1,606,172 |
1,606,172 |
176,678 |
0 |
176,678 |
122.90 |
$21,714 |
$0 |
|||||
|
2024 |
1,606,172 |
1,606,172 |
176,678 |
0 |
176,678 |
123.89 |
$21,889 |
$0 |
|||||
|
2023 |
1,606,172 |
1,606,172 |
176,678 |
0 |
176,678 |
122.82 |
$21,700 |
$0 |
|||||
|
2022 |
1,606,172 |
1,606,172 |
176,678 |
0 |
176,678 |
117.63 |
$20,783 |
$0 |
|||||
| Property Account Status/Adjustments/Exemptions | ||
|---|---|---|
| Account # | Exemption Description | Amount |
|
R134975850 |
5% Capped Account |
0 |
| Property Deed Transaction History (Recorded in the County Clerk's Office) | |||||||
|---|---|---|---|---|---|---|---|
| Date | Type | Book | Page | Price | Grantor | Grantee | |
|
4/22/2019 |
|
Deeds |
$400,000 |
CHAMBERS WESLEY TRS |
ORANGE GATE PROPERTIES LLC |
||
|
1/8/2019 |
|
Deeds |
$0 |
CHAMBERS WESLEY |
CHAMBERS WESLEY TRS |
||
|
8/1/1985 |
|
Historical |
$0 |
|
CHAMBERS WESLEY |
||
| Last Mailed Notice of Value (N.O.V.) Information/History | ||||||
|---|---|---|---|---|---|---|
| Year | Date | Market Value | Taxable Market Value | Gross Assessed | Exemption | Net Assessed |
|
2026 |
03/23/2026 |
1,834,697 |
1,686,480 |
185,511 |
0 |
185,511 |
|
2022 |
03/09/2022 |
1,606,172 |
1,606,172 |
176,678 |
0 |
176,678 |
|
2020 |
03/16/2020 |
404,000 |
404,000 |
44,440 |
0 |
44,440 |
| Property Building Permit History | |||||||||||
|---|---|---|---|---|---|---|---|---|---|---|---|
| Issued | Permit # | Provided by | Bldg # | Description | Est Construction Cost | Status | |||||
| No Building Permit records returned. | |||||||||||
| Click button on building number to access detailed information: | ||||||
|---|---|---|---|---|---|---|
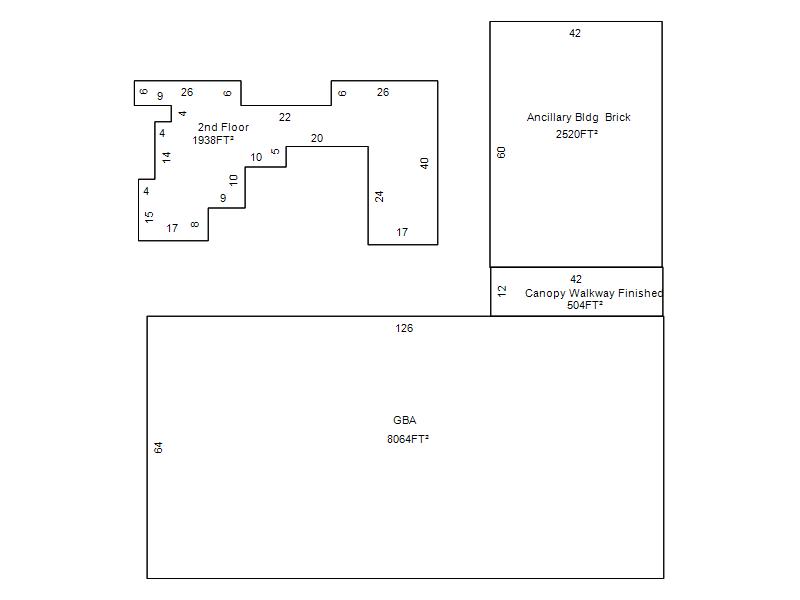
| Bldg # | Vacant/Improved Land | Bldg Description | Year Built | SqFt | # Stories | |
|
1 |
Improved |
Office Style Box C or D |
2020 |
10,002 |
1.5 Stories |
|