|
|
|
| Larry Stein Oklahoma County Assessor (405) 713-1200 - Public Access System |
|
|
|
|
|
|
| Real Property Display - Screen Produced 3/12/2026 11:35:53 AM | ||||
|---|---|---|---|---|
| Account: R267025030 | Type: Residential | Location: |
20585 SE 15TH ST |
|
| Building Name/Occupant: |
|
UNINCORPORATED |
||
| Owner Name 1: | DREW JAKEB D |
Parcel PIN#: |
1006-26-702-5030 |
|
| Owner Name 2: | 1/4 section #: |
1006 |
||
| Owner Name 3: | Parent Acct: |
|
||
| Billing Address: | 20585 SE 15TH ST | Tax District: |
|
|
| City, State, Zip | HARRAH, OK 73045-6417 | School System: |
Harrah #7 |
|
|
Country: (If noted) |
Land Size: |
5.0000 Acres |
||
|
Land Value: 48,775 |
|
|||
|
Sect 2-T11N-R1E Qtr SE |
POTTAWATOMIE TOWNSHIP
Block
000
Lot
000
|
|||
| Full Legal Description: POTTAWATOMIE TOWNSHIP PT SE4 SEC 2 11N 1E BEG 234.70FT E OF SW/C SE4 TH N580FT E350FT SLY240.06FT SELY343.70FT W394.50FT TO BEG SUBJ TO 25FT RD ESMT ON W & 50FT ON S CONT 5ACRS MORE OR LESS AKA TR 12 IN ROLLING HILLS UNREC |
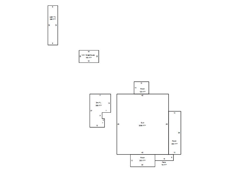
| Photo & Sketch (if available) | Comp Sales (ordered by relevancy) |
|
||||||||||||||||||
|
||||||||||||||||||||
| Value History (*The County Treasurer 405-713-1300 posts & collects actual tax amounts. Contact information HERE) | |||||||||||||
|---|---|---|---|---|---|---|---|---|---|---|---|---|---|
| Year | Market Value | Taxable Mkt Value | Gross Assessed | Exemption | Net Assessed | Millage | Est. Tax | Tax Savings | |||||
|
2025 |
465,000 |
298,398 |
32,823 |
1,000 |
31,823 |
107.54 |
$3,422 |
$2,078 |
|||||
|
2024 |
460,000 |
289,707 |
31,867 |
1,000 |
30,867 |
110.62 |
$3,415 |
$2,183 |
|||||
|
2023 |
417,000 |
281,269 |
30,939 |
1,000 |
29,939 |
97.88 |
$2,930 |
$1,559 |
|||||
|
2022 |
343,500 |
273,077 |
30,037 |
1,000 |
29,037 |
99.50 |
$2,889 |
$870 |
|||||
|
2021 |
282,000 |
265,124 |
29,163 |
1,000 |
28,163 |
99.52 |
$2,803 |
$284 |
|||||
| Property Account Status/Adjustments/Exemptions | ||
|---|---|---|
| Account # | Exemption Description | Amount |
|
R267025030 |
Homestead |
1,000 |
|
R267025030 |
3% Cap Homestead |
0 |
| Property Deed Transaction History (Recorded in the County Clerk's Office) | |||||||
|---|---|---|---|---|---|---|---|
| Date | Type | Book | Page | Price | Grantor | Grantee | |
|
5/31/2009 |
|
Deeds |
$0 |
DREW MARY KATHRYN |
DREW JAKEB D |
||
|
5/31/2007 |
|
Deeds |
$126,000 |
DREW MARY KATHRYN |
DREW JAKEB D |
||
|
10/1/1982 |
|
Historical |
$0 |
|
DREW MARY KATHRYN |
||
| Last Mailed Notice of Value (N.O.V.) Information/History | ||||||||
|---|---|---|---|---|---|---|---|---|
| Year | Date | Market Value | Taxable Market Value | Gross Assessed | Exemption | Net Assessed | ||
|
2026 |
02/06/2026 |
428,500 |
307,349 |
33,807 |
1,000 |
32,807 |
||
|
2025 |
01/31/2025 |
465,000 |
298,398 |
32,823 |
1,000 |
31,823 |
||
|
2024 |
01/22/2024 |
460,000 |
289,707 |
31,867 |
1,000 |
30,867 |
||
|
2023 |
01/23/2023 |
417,000 |
281,269 |
30,939 |
1,000 |
29,939 |
||
|
2022 |
02/22/2022 |
343,500 |
273,077 |
30,037 |
1,000 |
29,037 |
||
| Property Building Permit History | ||||||
|---|---|---|---|---|---|---|
| Issued | Permit # | Provided by | Bldg # | Description | Est Construction Cost | Status |
|
7/14/2010 |
10404626 |
COUNTY |
1 |
Main Dwellin |
40,000 |
Inactive |
|
6/19/2007 |
10340037 |
COUNTY |
1 |
Main Dwellin |
70,000 |
Inactive |
| Click button on building number to access detailed information: | ||||||
|---|---|---|---|---|---|---|
| Bldg # | Vacant/Improved Land | Bldg Description | Year Built | SqFt | # Stories | |
|
1 |
Improved |
1½ Story Fin |
2011 |
2,447 |
1.5 Stories |
|