|
|
|
| Larry Stein Oklahoma County Assessor (405) 713-1200 - Public Access System |
|
|
|
|
|
|
| Real Property Display - Screen Produced 3/21/2026 5:34:44 AM | ||||
|---|---|---|---|---|
| Account: R150463040 | Type: Residential | Location: |
315 E JACOBS DR |
|
| Building Name/Occupant: |
|
MIDWEST CITY |
||
| Owner Name 1: | GUZMAN IRIS RAMIREZ |
Parcel PIN#: |
1437-15-046-3040 |
|
| Owner Name 2: | 1/4 section #: |
1437 |
||
| Owner Name 3: | Parent Acct: |
|
||
| Billing Address: | 315 E JACOBS DR | Tax District: |
|
|
| City, State, Zip | MIDWEST CITY, OK 73110 | School System: |
Mid-Del #52 |
|
|
Country: (If noted) |
Land Size: |
0.1286 Acres |
||
|
Land Value: 17,920 |
|
|||
|
Sect 10-T11N-R2W Qtr NE |
PINE ADDITION
Block
002
Lot
020
|
|||
| Full Legal Description: PINE ADDITION 002 020 |
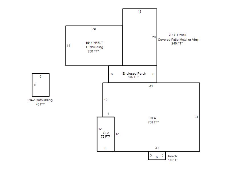
| Photo & Sketch (if available) | Comp Sales (ordered by relevancy) |
|
||||||||||||||||||
|
||||||||||||||||||||
| Value History (*The County Treasurer 405-713-1300 posts & collects actual tax amounts. Contact information HERE) | |||||||||||||
|---|---|---|---|---|---|---|---|---|---|---|---|---|---|
| Year | Market Value | Taxable Mkt Value | Gross Assessed | Exemption | Net Assessed | Millage | Est. Tax | Tax Savings | |||||
|
2025 |
131,000 |
102,532 |
11,278 |
0 |
11,278 |
119.58 |
$1,349 |
$374 |
|||||
|
2024 |
121,500 |
97,650 |
10,741 |
0 |
10,741 |
122.51 |
$1,316 |
$321 |
|||||
|
2023 |
93,000 |
93,000 |
10,230 |
0 |
10,230 |
117.71 |
$1,204 |
$0 |
|||||
|
2022 |
93,000 |
93,000 |
10,230 |
0 |
10,230 |
116.64 |
$1,193 |
$0 |
|||||
|
2021 |
81,000 |
79,275 |
8,720 |
0 |
8,720 |
119.45 |
$1,042 |
$23 |
|||||
| Property Account Status/Adjustments/Exemptions | ||
|---|---|---|
| Account # | Exemption Description | Amount |
|
R150463040 |
5% Capped Account |
0 |
| Property Deed Transaction History (Recorded in the County Clerk's Office) | ||||||||||
|---|---|---|---|---|---|---|---|---|---|---|
| Date | Type | Book | Page | Price | Grantor | Grantee | ||||
|
11/17/2021 |
|
Deeds |
$93,500 |
GARLINGTON JACOBY & LYNNETTE N |
GUZMAN IRIS RAMIREZ |
|||||
|
12/24/2019 |
|
Deeds |
$79,000 |
DEWARNS HALEY C |
GARLINGTON JACOBY & LYNNETTE N |
|||||
|
10/21/2016 |
|
Deeds |
$71,500 |
GOODE DANIEL STEIN KIRSTEN |
DEWARNS HALEY C |
|||||
|
9/28/2009 |
|
Deeds |
$70,000 |
ELGIN DAVE G & CHERYL |
GOODE DANIEL STEIN KIRSTEN |
|||||
|
4/7/2009 |
|
Deeds |
$27,000 |
WACHOVIA BANK |
ELGIN DAVE G & CHERYL |
|||||
| Last Mailed Notice of Value (N.O.V.) Information/History | ||||||||
|---|---|---|---|---|---|---|---|---|
| Year | Date | Market Value | Taxable Market Value | Gross Assessed | Exemption | Net Assessed | ||
|
2026 |
02/06/2026 |
125,000 |
107,658 |
11,841 |
0 |
11,841 |
||
|
2025 |
01/31/2025 |
131,000 |
102,532 |
11,278 |
0 |
11,278 |
||
|
2024 |
01/22/2024 |
121,500 |
97,650 |
10,741 |
0 |
10,741 |
||
|
2022 |
02/22/2022 |
93,000 |
93,000 |
10,230 |
0 |
10,230 |
||
|
2021 |
02/24/2021 |
81,000 |
79,275 |
8,720 |
0 |
8,720 |
||
| Property Building Permit History | |||||||||||
|---|---|---|---|---|---|---|---|---|---|---|---|
| Issued | Permit # | Provided by | Bldg # | Description | Est Construction Cost | Status | |||||
| No Building Permit records returned. | |||||||||||
| Click button on building number to access detailed information: | ||||||
|---|---|---|---|---|---|---|
| Bldg # | Vacant/Improved Land | Bldg Description | Year Built | SqFt | # Stories | |
|
1 |
Improved |
Ranch 1 Story |
1944 |
840 |
1 Stories |
|