|
|
|
| Larry Stein Oklahoma County Assessor (405) 713-1200 - Public Access System |
|
|
|
|
|
|
| Real Property Display - Screen Produced 3/28/2026 8:00:25 AM | ||||
|---|---|---|---|---|
| Account: R205631200 | Type: Residential | Location: |
14816 GAILLARDIA LN |
|
| Building Name/Occupant: |
|
OKLAHOMA CITY |
||
| Owner Name 1: | ABBASI EMAN TRS |
Parcel PIN#: |
3837-20-563-1200 |
|
| Owner Name 2: | LARKI IRREV TRUST | 1/4 section #: |
3837 |
|
| Owner Name 3: | Parent Acct: |
3837-13-502-2000 |
||
| Billing Address: | 14816 GAILLARDIA LN | Tax District: |
|
|
| City, State, Zip | OKLAHOMA CITY, OK 73142 | School System: |
Deer Creek #6 |
|
|
Country: (If noted) |
Land Size: |
0.3857 Acres |
||
|
Land Value: 480,000 |
|
|||
|
Sect 10-T13N-R4W Qtr NE |
GAILLARDIA RES COMMUNITY SEC VII
Block
023
Lot
011
|
|||
| Full Legal Description: GAILLARDIA RES COMMUNITY SEC VII 023 011 |
| Photo & Sketch (if available) | Comp Sales (ordered by relevancy) |
|
||||||||||||||||||
|
||||||||||||||||||||
| Value History (*The County Treasurer 405-713-1300 posts & collects actual tax amounts. Contact information HERE) | |||||||||||||
|---|---|---|---|---|---|---|---|---|---|---|---|---|---|
| Year | Market Value | Taxable Mkt Value | Gross Assessed | Exemption | Net Assessed | Millage | Est. Tax | Tax Savings | |||||
|
2026 |
1,804,000 |
1,804,000 |
198,440 |
0 |
198,440 |
129.51 |
$25,700 |
$0 |
|||||
|
2025 |
1,858,500 |
1,858,500 |
204,435 |
0 |
204,435 |
129.51 |
$26,476 |
$0 |
|||||
|
2024 |
480,000 |
480,000 |
52,800 |
0 |
52,800 |
131.12 |
$6,923 |
$0 |
|||||
|
2023 |
480,000 |
480,000 |
52,800 |
0 |
52,800 |
131.55 |
$6,946 |
$0 |
|||||
|
2022 |
350,000 |
350,000 |
38,500 |
0 |
38,500 |
130.27 |
$5,015 |
$0 |
|||||
| Property Account Status/Adjustments/Exemptions | ||
|---|---|---|
| Account # | Exemption Description | Amount |
|
R205631200 |
5% Capped Account |
0 |
| Property Deed Transaction History (Recorded in the County Clerk's Office) | ||||||||||
|---|---|---|---|---|---|---|---|---|---|---|
| Date | Type | Book | Page | Price | Grantor | Grantee | ||||
|
5/13/2022 |
|
Hmstd Off & |
$0 |
ABASSI EMAN |
ABBASI EMAN TRS |
|||||
|
2/25/2022 |
|
Deeds |
$480,000 |
SAHEB IRREVOCABLE TRUST |
ABASSI EMAN |
|||||
|
12/1/2016 |
|
Other |
$0 |
SAHEB EDWARD F & HAIDEH R |
SAHEB IRREVOCABLE TRUST |
|||||
|
2/5/2013 |
|
Deeds |
$350,000 |
REYNOLDS KERMIT E JR TRS REYNOLDS KERMIT E JR REV TRUST |
SAHEB EDWARD F & HAIDEH R |
|||||
|
1/12/2012 |
|
Deeds |
$0 |
REYNOLDS KERMIT E JR |
REYNOLDS KERMIT E JR TRS REYNOLDS KERMIT E JR REV TRUST |
|||||
| Last Mailed Notice of Value (N.O.V.) Information/History | ||||||
|---|---|---|---|---|---|---|
| Year | Date | Market Value | Taxable Market Value | Gross Assessed | Exemption | Net Assessed |
|
2025 |
03/28/2025 |
1,858,500 |
1,858,500 |
204,435 |
0 |
204,435 |
|
2023 |
02/14/2023 |
480,000 |
480,000 |
52,800 |
0 |
52,800 |
|
2014 |
04/02/2014 |
350,000 |
350,000 |
38,500 |
0 |
38,500 |
| Property Building Permit History | ||||||
|---|---|---|---|---|---|---|
| Issued | Permit # | Provided by | Bldg # | Description | Est Construction Cost | Status |
|
9/22/2023 |
POOL-2023-00248 |
|
1 |
Swimming Pool |
110,000 |
Inactive |
|
9/19/2022 |
BLDR-2022-04271 |
|
|
Main Dwellin |
900,000 |
Inactive |
| Click button on building number to access detailed information: | ||||||
|---|---|---|---|---|---|---|
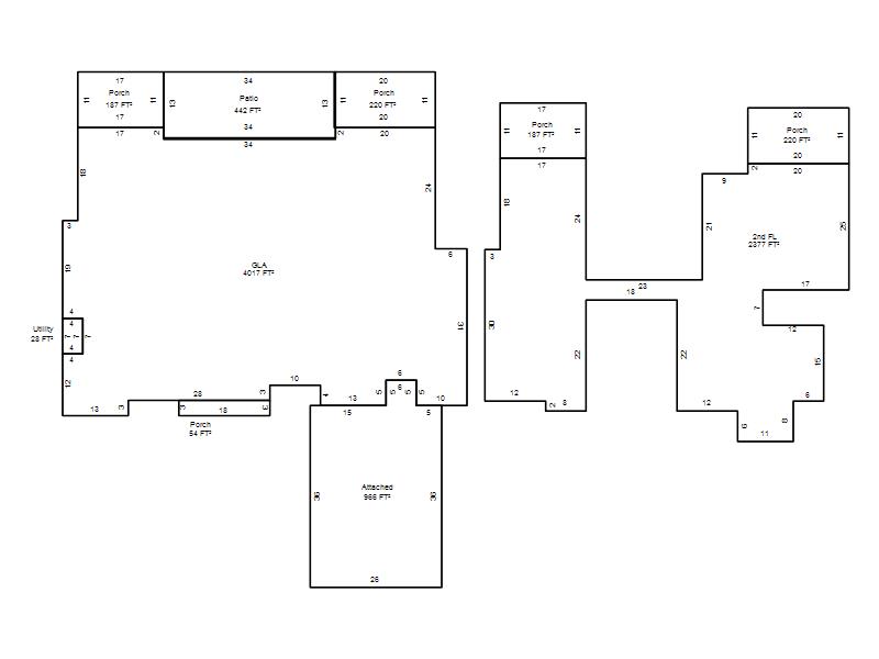
| Bldg # | Vacant/Improved Land | Bldg Description | Year Built | SqFt | # Stories | |
|
1 |
Improved |
1½ Story Fin |
2022 |
6,394 |
1.5 Stories |
|