|
|
|
| Larry Stein Oklahoma County Assessor (405) 713-1200 - Public Access System |
|
|
|
|
|
|
| Real Property Display - Screen Produced 3/30/2026 7:50:44 AM | ||||
|---|---|---|---|---|
| Account: R200571100 | Type: Residential | Location: |
5324 WISTERIA DR |
|
| Building Name/Occupant: |
|
OKLAHOMA CITY |
||
| Owner Name 1: | DOBSON EVERETT R & JEANETTA G |
Parcel PIN#: |
3839-20-057-1100 |
|
| Owner Name 2: | 1/4 section #: |
3839 |
||
| Owner Name 3: | Parent Acct: |
|
||
| Billing Address: | 5324 WISTERIA DR | Tax District: |
|
|
| City, State, Zip | OKLAHOMA CITY, OK 73142-1818 | School System: |
Deer Creek #6 |
|
|
Country: (If noted) |
Land Size: |
0.8399 Acres |
||
|
Land Value: 571,250 |
|
|||
|
Sect 10-T13N-R4W Qtr SW |
GAILLARDIA RES COMMUNITY II
Block
008
Lot
000
|
|||
| Full Legal Description: GAILLARDIA RES COMMUNITY II 008 000 LOT 11 & PT LOT 10 BEG ELY/C OF SD LOT TH SW211.29FT SE28.95FT NE218.47FT TO BEG |
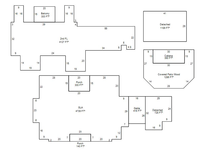
| Photo & Sketch (if available) | Comp Sales (ordered by relevancy) |
|
||||||||||||||||||
|
||||||||||||||||||||
| Value History (*The County Treasurer 405-713-1300 posts & collects actual tax amounts. Contact information HERE) | |||||||||||||
|---|---|---|---|---|---|---|---|---|---|---|---|---|---|
| Year | Market Value | Taxable Mkt Value | Gross Assessed | Exemption | Net Assessed | Millage | Est. Tax | Tax Savings | |||||
|
2026 |
2,706,500 |
2,529,467 |
278,240 |
0 |
278,240 |
129.51 |
$36,035 |
$2,522 |
|||||
|
2025 |
2,603,000 |
2,409,017 |
264,991 |
0 |
264,991 |
129.51 |
$34,319 |
$2,764 |
|||||
|
2024 |
2,487,000 |
2,294,302 |
252,372 |
0 |
252,372 |
131.12 |
$33,091 |
$2,779 |
|||||
|
2023 |
2,756,000 |
2,185,050 |
240,355 |
0 |
240,355 |
131.55 |
$31,619 |
$8,262 |
|||||
|
2022 |
2,081,000 |
2,081,000 |
228,910 |
0 |
228,910 |
130.27 |
$29,820 |
$0 |
|||||
| Property Account Status/Adjustments/Exemptions | ||
|---|---|---|
| Account # | Exemption Description | Amount |
|
R200571100 |
5% Capped Account |
0 |
| Property Deed Transaction History (Recorded in the County Clerk's Office) | ||||||||||
|---|---|---|---|---|---|---|---|---|---|---|
| Date | Type | Book | Page | Price | Grantor | Grantee | ||||
|
12/20/2001 |
|
Other |
$0 |
WISTERIA LIMITED LIABILITY COMPANY |
DOBSON EVERETT R & JEANETTA G |
|||||
|
2/13/2001 |
|
Deeds |
$1,860,000 |
COOPER JOSEPH R & NANCY L |
WINDS WEST HOMES INC |
|||||
|
2/13/2001 |
|
Deeds |
$1,860,000 |
WINDS WEST HOMES INC |
WISTERIA LIMITED LIABILITY COMPANY |
|||||
|
11/18/1999 |
|
Deeds |
$0 |
OPUBCO DEVELOPMENT COMPANY |
COOPER JOSEPH R & NANCY L |
|||||
|
9/15/1998 |
|
Historical |
$250,000 |
OPUBCO DEVELOPMENT COMPANY |
OPUBCO DEVELOPMENT COMPANY |
|||||
| Last Mailed Notice of Value (N.O.V.) Information/History | ||||||||
|---|---|---|---|---|---|---|---|---|
| Year | Date | Market Value | Taxable Market Value | Gross Assessed | Exemption | Net Assessed | ||
|
2026 |
02/23/2026 |
2,706,500 |
2,529,467 |
278,240 |
0 |
278,240 |
||
|
2025 |
02/14/2025 |
2,603,000 |
2,409,017 |
264,991 |
0 |
264,991 |
||
|
2024 |
02/13/2024 |
2,487,000 |
2,294,302 |
252,372 |
0 |
252,372 |
||
|
2023 |
02/14/2023 |
2,756,000 |
2,185,050 |
240,355 |
0 |
240,355 |
||
|
2022 |
03/15/2022 |
2,081,000 |
2,081,000 |
228,910 |
0 |
228,910 |
||
| Property Building Permit History | ||||||
|---|---|---|---|---|---|---|
| Issued | Permit # | Provided by | Bldg # | Description | Est Construction Cost | Status |
|
5/17/2001 |
10266793 |
OKLAHOMA CITY |
1 |
Other |
100,000 |
Inactive |
|
4/18/2001 |
10266795 |
OKLAHOMA CITY |
1 |
Swimming Pool |
80,000 |
Inactive |
|
2/4/1999 |
10266794 |
OKLAHOMA CITY |
1 |
Main Dwellin |
1,500,000 |
Inactive |
| Click button on building number to access detailed information: | ||||||
|---|---|---|---|---|---|---|
| Bldg # | Vacant/Improved Land | Bldg Description | Year Built | SqFt | # Stories | |
|
1 |
Improved |
2 Story |
2000 |
8,866 |
2 Stories |
|