|
|
|
| Larry Stein Oklahoma County Assessor (405) 713-1200 - Public Access System |
|
|
|
|
|
|
| Real Property Display - Screen Produced 4/2/2026 1:04:46 AM | ||||
|---|---|---|---|---|
| Account: R100041940 | Type: Residential | Location: |
4043 SPYGLASS RD |
|
| Building Name/Occupant: |
|
OKLAHOMA CITY |
||
| Owner Name 1: | HARSHA KACY L & MATTHEW J TRS |
Parcel PIN#: |
3853-10-004-1940 |
|
| Owner Name 2: | HARSHA LIV TRUST | 1/4 section #: |
3853 |
|
| Owner Name 3: | Parent Acct: |
|
||
| Billing Address: | 4043 SPYGLASS RD | Tax District: |
|
|
| City, State, Zip | OKLAHOMA CITY, OK 73120 | School System: |
Edmond #12 |
|
|
Country: (If noted) |
Land Size: |
0.2767 Acres |
||
|
Land Value: 55,448 |
|
|||
|
Sect 14-T13N-R4W Qtr NE |
GREEN VALLEY PLAZA
Block
045
Lot
024
|
|||
| Full Legal Description: GREEN VALLEY PLAZA 045 024 |
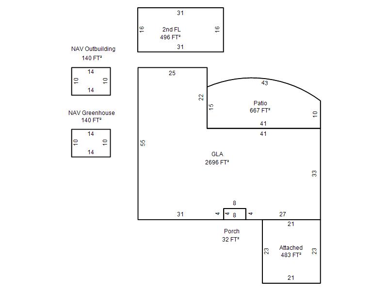
| Photo & Sketch (if available) | Comp Sales (ordered by relevancy) |
|
||||||||||||||||||
|
||||||||||||||||||||
| Value History (*The County Treasurer 405-713-1300 posts & collects actual tax amounts. Contact information HERE) | |||||||||||||
|---|---|---|---|---|---|---|---|---|---|---|---|---|---|
| Year | Market Value | Taxable Mkt Value | Gross Assessed | Exemption | Net Assessed | Millage | Est. Tax | Tax Savings | |||||
|
2026 |
433,500 |
359,953 |
39,594 |
39,594 |
0 |
120.32 |
$0 |
$5,737 |
|||||
|
2025 |
423,500 |
349,469 |
38,441 |
38,441 |
0 |
120.32 |
$0 |
$5,605 |
|||||
|
2024 |
403,000 |
339,291 |
37,321 |
37,321 |
0 |
119.96 |
$0 |
$5,318 |
|||||
|
2023 |
385,000 |
329,409 |
36,234 |
36,234 |
0 |
119.02 |
$0 |
$5,040 |
|||||
|
2022 |
336,000 |
319,815 |
35,179 |
35,179 |
0 |
120.10 |
$0 |
$4,439 |
|||||
| Property Account Status/Adjustments/Exemptions | ||
|---|---|---|
| Account # | Exemption Description | Amount |
|
R100041940 |
100% DAV Exemption |
100 |
|
R100041940 |
DAV Homestead |
0 |
|
R100041940 |
3% Cap Homestead |
0 |
| Property Deed Transaction History (Recorded in the County Clerk's Office) | ||||||||||
|---|---|---|---|---|---|---|---|---|---|---|
| Date | Type | Book | Page | Price | Grantor | Grantee | ||||
|
10/21/2020 |
|
Deeds |
$0 |
HARSHA KACY L & MATTHEW J |
HARSHA KACY L & MATTHEW J TRS |
|||||
|
8/22/2012 |
|
Deeds |
$251,000 |
FOUR LEAF PROPERTIES LLC |
HARSHA KACY L & MATTHEW J |
|||||
|
1/20/2012 |
|
Deeds |
$149,500 |
HANSAR PROPERTIES LLC |
FOUR LEAF PROPERTIES LLC |
|||||
|
11/29/2011 |
|
Deeds |
$108,000 |
HIXON ROBIN L |
HANSAR PROPERTIES LLC |
|||||
|
11/28/2011 |
|
Deeds |
$0 |
HIXON TERRY L & ROBIN L |
HIXON ROBIN L |
|||||
| Last Mailed Notice of Value (N.O.V.) Information/History | ||||||||
|---|---|---|---|---|---|---|---|---|
| Year | Date | Market Value | Taxable Market Value | Gross Assessed | Exemption | Net Assessed | ||
|
2026 |
02/23/2026 |
433,500 |
359,953 |
39,594 |
39,594 |
0 |
||
|
2025 |
02/14/2025 |
423,500 |
349,469 |
38,441 |
38,441 |
0 |
||
|
2024 |
02/13/2024 |
403,000 |
339,291 |
37,321 |
37,321 |
0 |
||
|
2023 |
02/14/2023 |
385,000 |
329,409 |
36,234 |
36,234 |
0 |
||
|
2022 |
03/15/2022 |
336,000 |
319,815 |
35,179 |
35,179 |
0 |
||
| Property Building Permit History | |||||||||||
|---|---|---|---|---|---|---|---|---|---|---|---|
| Issued | Permit # | Provided by | Bldg # | Description | Est Construction Cost | Status | |||||
| No Building Permit records returned. | |||||||||||
| Click button on building number to access detailed information: | ||||||
|---|---|---|---|---|---|---|
| Bldg # | Vacant/Improved Land | Bldg Description | Year Built | SqFt | # Stories | |
|
1 |
Improved |
1½ Story Fin |
1982 |
3,192 |
1.5 Stories |
|