Larry Stein Oklahoma County Assessor (405) 713-1200 - Public Access System
Home Contact Us Guest Book Map Search New Search
Real Property Display - Screen Produced   4/25/2026 6:16:01 PM 
Account: R148091015  Type: Residential

  

Location:

13617 PINEHURST RD

Building Name/Occupant:

 

OKLAHOMA CITY

Owner Name 1:  BEVILL DANIEL A & VALERIE L

Parcel PIN#:

3853-14-809-1015

Owner Name 2:    1/4 section #:

3853

Owner Name 3:    Parent Acct:

 

Billing Address:  13617 PINEHURST RD Tax District:

City, State, Zip  OKLAHOMA CITY, OK  73120-8525 School System:

Edmond #12

Country: (If noted)

  

Land Size:

0.3471  Acres

Personal Property

Land Value: 58,968 

Treasurer:

Sect 14-T13N-R4W Qtr NE

 QUAIL RIDGE TO ROLLING HILLS   Block 001  Lot 000   Subdivision Sales
 Full Legal Description:  QUAIL RIDGE TO ROLLING HILLS 001 000 LOT 2 & S PT OF LOT 1 BEING 33.85FT ON THE W & 30.52FT ON THE E

NOTE:  The following sales may or may not be used to determine Fair Market Value

Photo & Sketch (if available) Sales  Sales Report

 13232 INVERNESS AVE OKLAHOMA CITY, OK

12/05/2025

 $425,000 

 12900 BURLINGAME AVE OKLAHOMA CITY, OK

09/12/2025

 $270,000 

 4044 SPYGLASS RD OKLAHOMA CITY, OK

08/06/2025

 $272,500 

 13309 GREEN VALLEY DR OKLAHOMA CITY, OK

10/28/2025

 $209,500 

 3932 SPYGLASS RD OKLAHOMA CITY, OK

03/27/2025

 $425,000 

 12409 ARROWHEAD TER OKLAHOMA CITY, OK

11/24/2025

 $290,000 

Value History  (*The County Treasurer 405-713-1300 posts & collects actual tax amounts.  Contact information  HERE)
Year Market Value Taxable Mkt Value Gross Assessed Exemption Net Assessed Millage Est. Tax Tax Savings

2026

357,500 

298,989 

32,887 

32,887 

120.32 

$0 

$4,731 

2025

357,000 

290,281 

31,930 

31,930 

120.32 

$0 

$4,725 

2024

349,000 

281,827 

31,000 

31,000 

119.96 

$0 

$4,605 

[1/10]
Property Account Status/Adjustments/Exemptions
Account # Exemption Description Amount

R148091015

100% DAV Exemption

100 

R148091015

DAV Homestead

R148091015

3% Cap Homestead

Property Deed Transaction History   (Recorded in the County Clerk's Office)
Date Type Book Page Price Grantor Grantee

6/5/2020

Deeds

14376

469

 $249,000 

WEBER JAMES B & ELIZABETH L

BEVILL DANIEL A & VALERIE L

6/13/2016

Deeds

13176

451

 $224,000 

CARVER SUSAN A & JOHN

WEBER JAMES B & ELIZABETH L

5/27/2008

Deeds

10817

1426

 $0 

SMITH SUSAN A

CARVER SUSAN A & JOHN

[1/3]
Last Mailed Notice of Value (N.O.V.) Information/History
Year Date Market Value Taxable Market Value Gross Assessed Exemption Net Assessed

2026

02/23/2026

357,500 

298,989 

32,887 

32,887 

2025

02/14/2025

357,000 

290,281 

31,930 

31,930 

2024

02/13/2024

349,000 

281,827 

31,000 

31,000 

[1/5]
Property Building Permit History
Issued Permit # Provided by Bldg # Description Est Construction Cost Status

9/15/2020

BLDR-2020-04024

1

Storage Buil

4,000 

Inactive

10/2/1995

10242785

OKLAHOMA CITY

1

Swimming Pool

22,800 

Inactive

Click button below to access detailed information and additional property photos:
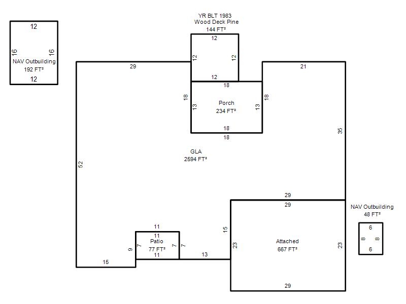
  Bldg # Vacant/Improved Land Bldg Description Year Built SqFt # Stories

Click

1

Improved

Ranch 1 Story

1983

2,594 

1 Stories