Larry Stein Oklahoma County Assessor (405) 713-1200 - Public Access System
Home Contact Us Guest Book Map Search New Search
Real Property Display - Screen Produced   4/25/2026 6:19:10 PM 
Account: R148091055  Type: Residential

  

Location:

13523 PINEHURST RD

Building Name/Occupant:

 

OKLAHOMA CITY

Owner Name 1:  HUGHES PATTI G & JAMES M TRS

Parcel PIN#:

3853-14-809-1055

Owner Name 2:  HUGHES PATTI G LIV TRUST 1/4 section #:

3853

Owner Name 3:    Parent Acct:

 

Billing Address:  13523 PINEHURST RD Tax District:

City, State, Zip  OKLAHOMA CITY, OK  73120-8523 School System:

Edmond #12

Country: (If noted)

  

Land Size:

0.2479  Acres

Personal Property

Land Value: 42,120 

Treasurer:

Sect 14-T13N-R4W Qtr NE

 QUAIL RIDGE TO ROLLING HILLS   Block 001  Lot 006   Subdivision Sales
 Full Legal Description:  QUAIL RIDGE TO ROLLING HILLS 001 006

NOTE:  The following sales may or may not be used to determine Fair Market Value

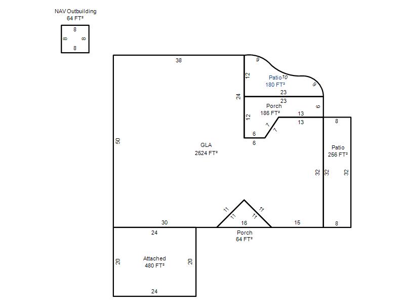
Photo & Sketch (if available) Sales  Sales Report

 13309 GREEN VALLEY DR OKLAHOMA CITY, OK

10/28/2025

 $209,500 

 12409 ARROWHEAD TER OKLAHOMA CITY, OK

11/24/2025

 $290,000 

 4212 CHERRY HILL LN OKLAHOMA CITY, OK

06/25/2024

 $290,000 

 13417 APPLE VALLEY DR OKLAHOMA CITY, OK

02/21/2025

 $385,000 

 13405 GREEN VALLEY DR OKLAHOMA CITY, OK

09/22/2025

 $382,000 

 4055 SPYGLASS RD OKLAHOMA CITY, OK

07/19/2024

 $310,000 

Value History  (*The County Treasurer 405-713-1300 posts & collects actual tax amounts.  Contact information  HERE)
Year Market Value Taxable Mkt Value Gross Assessed Exemption Net Assessed Millage Est. Tax Tax Savings

2026

313,000 

213,500 

23,485 

1,000 

22,485 

120.32 

$2,705 

$1,437 

2025

304,000 

213,500 

23,485 

1,000 

22,485 

120.32 

$2,705 

$1,318 

2024

300,500 

213,500 

23,485 

1,000 

22,485 

119.96 

$2,697 

$1,268 

[1/10]
Property Account Status/Adjustments/Exemptions
Account # Exemption Description Amount

R148091055

Freeze Senior Valuation

R148091055

Homestead

1,000 

R148091055

3% Cap Homestead

Property Deed Transaction History   (Recorded in the County Clerk's Office)
Date Type Book Page Price Grantor Grantee

4/24/2003

Deeds

8843

386

 $0 

HUGHES JAMES M & PATTI G

HUGHES PATTI G

4/24/2003

Deeds

8843

387

 $0 

HUGHES PATTI G

HUGHES PATTI G & JAMES M TRS

11/15/2002

Deeds

8635

226

 $0 

HUGHES JAMES M

HUGHES JAMES M & PATTI G

[1/3]
Last Mailed Notice of Value (N.O.V.) Information/History
Year Date Market Value Taxable Market Value Gross Assessed Exemption Net Assessed

2026

02/23/2026

313,000 

213,500 

23,485 

1,000 

22,485 

2025

02/14/2025

304,000 

213,500 

23,485 

1,000 

22,485 

2024

02/13/2024

300,500 

213,500 

23,485 

1,000 

22,485 

[1/5]
Property Building Permit History
Issued Permit # Provided by Bldg # Description Est Construction Cost Status
No Building Permit records returned.
Click button below to access detailed information and additional property photos:
  Bldg # Vacant/Improved Land Bldg Description Year Built SqFt # Stories

Click

1

Improved

Ranch 1 Story

1982

2,524 

1 Stories