Larry Stein Oklahoma County Assessor (405) 713-1200 - Public Access System
Home Contact Us Guest Book Map Search New Search
Real Property Display - Screen Produced   4/25/2026 6:10:37 PM 
Account: R148091125  Type: Residential

  

Location:

13321 PINEHURST RD

Building Name/Occupant:

 

OKLAHOMA CITY

Owner Name 1:  SANCHEZ LESLIE D & GABRIEL SR

Parcel PIN#:

3853-14-809-1125

Owner Name 2:    1/4 section #:

3853

Owner Name 3:    Parent Acct:

 

Billing Address:  13321 PINEHURST RD Tax District:

City, State, Zip  OKLAHOMA CITY, OK  73120-8519 School System:

Edmond #12

Country: (If noted)

  

Land Size:

0.2479  Acres

Personal Property

Land Value: 42,120 

Treasurer:

Sect 14-T13N-R4W Qtr NE

 QUAIL RIDGE TO ROLLING HILLS   Block 001  Lot 013   Subdivision Sales
 Full Legal Description:  QUAIL RIDGE TO ROLLING HILLS 001 013

NOTE:  The following sales may or may not be used to determine Fair Market Value

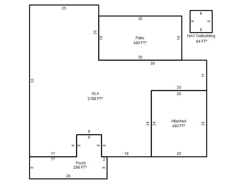
Photo & Sketch (if available) Sales  Sales Report

 13309 GREEN VALLEY DR OKLAHOMA CITY, OK

10/28/2025

 $209,500 

 12712 SAINT ANDREWS TER OKLAHOMA CITY, OK

10/20/2023

 $247,500 

 12409 ARROWHEAD TER OKLAHOMA CITY, OK

11/24/2025

 $290,000 

 4212 CHERRY HILL LN OKLAHOMA CITY, OK

06/25/2024

 $290,000 

 13405 GREEN VALLEY DR OKLAHOMA CITY, OK

09/22/2025

 $382,000 

 4044 SPYGLASS RD OKLAHOMA CITY, OK

08/06/2025

 $272,500 

Value History  (*The County Treasurer 405-713-1300 posts & collects actual tax amounts.  Contact information  HERE)
Year Market Value Taxable Mkt Value Gross Assessed Exemption Net Assessed Millage Est. Tax Tax Savings

2026

254,000 

202,311 

22,254 

1,000 

21,254 

120.32 

$2,557 

$804 

2025

246,500 

196,419 

21,605 

1,000 

20,605 

120.32 

$2,479 

$783 

2024

245,500 

190,699 

20,975 

1,000 

19,975 

119.96 

$2,396 

$843 

[1/10]
Property Account Status/Adjustments/Exemptions
Account # Exemption Description Amount

R148091125

3% Cap Homestead

R148091125

Homestead

1,000 

Property Deed Transaction History   (Recorded in the County Clerk's Office)
Date Type Book Page Price Grantor Grantee

6/25/2012

Deeds

11958

929

 $170,000 

JARVIS LEWIS & DAVON R

SANCHEZ LESLIE D & GABRIEL SR

3/1/2004

Deeds

9227

649

 $157,000 

TRAUTMAN DAVID P & AMIE E

JARVIS DAVON R

3/1/2004

Deeds

9243

1968

 $0 

JARVIS DAVON R

JARVIS LEWIS & DAVON R

[1/2]
Last Mailed Notice of Value (N.O.V.) Information/History
Year Date Market Value Taxable Market Value Gross Assessed Exemption Net Assessed

2026

02/23/2026

254,000 

202,311 

22,254 

1,000 

21,254 

2025

02/14/2025

246,500 

196,419 

21,605 

1,000 

20,605 

2024

02/13/2024

245,500 

190,699 

20,975 

1,000 

19,975 

[1/4]
Property Building Permit History
Issued Permit # Provided by Bldg # Description Est Construction Cost Status
No Building Permit records returned.
Click button below to access detailed information and additional property photos:
  Bldg # Vacant/Improved Land Bldg Description Year Built SqFt # Stories

Click

1

Improved

Ranch 1 Story

1962

2,188 

1 Stories