|
|
|
| Larry Stein Oklahoma County Assessor (405) 713-1200 - Public Access System |
|
|
|
|
|
|
| Real Property Display - Screen Produced 4/4/2026 7:19:00 AM | ||||
|---|---|---|---|---|
| Account: R204191320 | Type: Residential | Location: |
12700 DOWNSVIEW LN |
|
| Building Name/Occupant: |
|
OKLAHOMA CITY |
||
| Owner Name 1: | HACHIM JALALUDIN & AZIZEH |
Parcel PIN#: |
3859-20-419-1320 |
|
| Owner Name 2: | 1/4 section #: |
3859 |
||
| Owner Name 3: | Parent Acct: |
3859-16-868-2325 |
||
| Billing Address: | 12700 DOWNSVIEW LN | Tax District: |
|
|
| City, State, Zip | OKLAHOMA CITY, OK 73142-5175 | School System: |
Putnam City #1 |
|
|
Country: (If noted) |
Land Size: |
0.3969 Acres |
||
|
Land Value: 122,759 |
|
|||
|
Sect 15-T13N-R4W Qtr SW |
HIDDEN CREEK SEC 1
Block
002
Lot
019
|
|||
| Full Legal Description: HIDDEN CREEK SEC 1 002 019 |
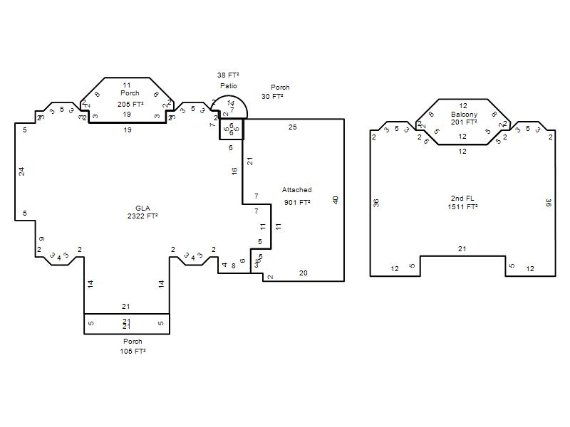
| Photo & Sketch (if available) | Comp Sales (ordered by relevancy) |
|
||||||||||||||||||
|
||||||||||||||||||||
| Value History (*The County Treasurer 405-713-1300 posts & collects actual tax amounts. Contact information HERE) | |||||||||||||
|---|---|---|---|---|---|---|---|---|---|---|---|---|---|
| Year | Market Value | Taxable Mkt Value | Gross Assessed | Exemption | Net Assessed | Millage | Est. Tax | Tax Savings | |||||
|
2026 |
748,000 |
613,254 |
67,457 |
1,000 |
66,457 |
123.17 |
$8,186 |
$1,949 |
|||||
|
2025 |
751,000 |
595,393 |
65,492 |
1,000 |
64,492 |
123.17 |
$7,944 |
$2,231 |
|||||
|
2024 |
730,500 |
578,052 |
63,584 |
1,000 |
62,584 |
122.30 |
$7,654 |
$2,173 |
|||||
|
2023 |
651,000 |
561,216 |
61,733 |
1,000 |
60,733 |
121.91 |
$7,404 |
$1,326 |
|||||
|
2022 |
609,000 |
544,870 |
59,935 |
1,000 |
58,935 |
123.41 |
$7,273 |
$994 |
|||||
| Property Account Status/Adjustments/Exemptions | ||
|---|---|---|
| Account # | Exemption Description | Amount |
|
R204191320 |
Homestead |
1,000 |
|
R204191320 |
3% Cap Homestead |
0 |
| Property Deed Transaction History (Recorded in the County Clerk's Office) | |||||||
|---|---|---|---|---|---|---|---|
| Date | Type | Book | Page | Price | Grantor | Grantee | |
|
10/22/2014 |
|
Deeds |
$0 |
HACHIM AZIZEH J |
HACHIM JALALUDIN & AZIZEH |
||
|
11/18/2010 |
|
Deeds |
$0 |
HACHIM JALALUDIN & AZIZEH J |
HACHIM AZIZEH J |
||
|
11/17/2010 |
|
Deeds |
$0 |
HACHIM AZIZEH J |
HACHIM JALALUDIN & AZIZEH J |
||
|
8/29/2005 |
|
Hmstd Off & |
$0 |
HACHIM JALALUDIN & AZIZEH J |
HACHIM AZIZEH J |
||
|
10/9/2003 |
|
Deeds |
$65,000 |
74TH STREET STORAGE LLC |
HACHIM JALALUDIN & AZIZEH J |
||
| Last Mailed Notice of Value (N.O.V.) Information/History | ||||||||
|---|---|---|---|---|---|---|---|---|
| Year | Date | Market Value | Taxable Market Value | Gross Assessed | Exemption | Net Assessed | ||
|
2026 |
02/23/2026 |
748,000 |
613,254 |
67,457 |
1,000 |
66,457 |
||
|
2025 |
02/14/2025 |
751,000 |
595,393 |
65,492 |
1,000 |
64,492 |
||
|
2024 |
02/13/2024 |
730,500 |
578,052 |
63,584 |
1,000 |
62,584 |
||
|
2023 |
02/14/2023 |
651,000 |
561,216 |
61,733 |
1,000 |
60,733 |
||
|
2022 |
03/15/2022 |
609,000 |
544,870 |
59,935 |
1,000 |
58,935 |
||
| Property Building Permit History | ||||||
|---|---|---|---|---|---|---|
| Issued | Permit # | Provided by | Bldg # | Description | Est Construction Cost | Status |
|
10/3/2003 |
10283566 |
OKLAHOMA CITY |
1 |
Main Dwellin |
260,000 |
Inactive |
| Click button on building number to access detailed information: | ||||||
|---|---|---|---|---|---|---|
| Bldg # | Vacant/Improved Land | Bldg Description | Year Built | SqFt | # Stories | |
|
1 |
Improved |
1½ Story Fin |
2004 |
3,833 |
1.5 Stories |
|