|
|
|
| Larry Stein Oklahoma County Assessor (405) 713-1200 - Public Access System |
|
|
|
|
|
|
| Real Property Display - Screen Produced 3/20/2026 5:05:04 AM | ||||
|---|---|---|---|---|
| Account: R122351410 | Type: Residential | Location: |
12921 BRANDON PL |
|
| Building Name/Occupant: |
|
OKLAHOMA CITY |
||
| Owner Name 1: | GARRETT BARBARA L TRS |
Parcel PIN#: |
3861-12-235-1410 |
|
| Owner Name 2: | THE GARRETTS & THE SMITH TRUST | 1/4 section #: |
3861 |
|
| Owner Name 3: | Parent Acct: |
|
||
| Billing Address: | 12921 BRANDON PL | Tax District: |
|
|
| City, State, Zip | OKLAHOMA CITY, OK 73142 | School System: |
Putnam City #1 |
|
|
Country: (If noted) |
Land Size: |
0.2185 Acres |
||
|
Land Value: 36,572 |
|
|||
|
Sect 16-T13N-R4W Qtr NE |
WESTLAKE
Block
003
Lot
004
|
|||
| Full Legal Description: WESTLAKE 003 004 |
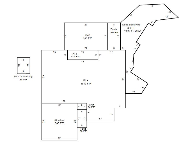
| Photo & Sketch (if available) | Comp Sales (ordered by relevancy) |
|
||||||||||||||||||
|
||||||||||||||||||||
| Value History (*The County Treasurer 405-713-1300 posts & collects actual tax amounts. Contact information HERE) | |||||||||||||
|---|---|---|---|---|---|---|---|---|---|---|---|---|---|
| Year | Market Value | Taxable Mkt Value | Gross Assessed | Exemption | Net Assessed | Millage | Est. Tax | Tax Savings | |||||
|
2025 |
296,000 |
231,854 |
25,503 |
1,000 |
24,503 |
123.17 |
$3,018 |
$992 |
|||||
|
2024 |
292,000 |
225,101 |
24,760 |
1,000 |
23,760 |
122.30 |
$2,906 |
$1,022 |
|||||
|
2023 |
274,000 |
218,545 |
24,039 |
1,000 |
23,039 |
121.91 |
$2,809 |
$866 |
|||||
|
2022 |
241,000 |
212,180 |
23,339 |
1,000 |
22,339 |
123.41 |
$2,757 |
$515 |
|||||
|
2021 |
209,500 |
206,000 |
22,660 |
1,000 |
21,660 |
122.23 |
$2,648 |
$169 |
|||||
| Property Account Status/Adjustments/Exemptions | ||
|---|---|---|
| Account # | Exemption Description | Amount |
|
R122351410 |
Homestead |
1,000 |
|
R122351410 |
3% Cap Homestead |
0 |
| Property Deed Transaction History (Recorded in the County Clerk's Office) | |||||||
|---|---|---|---|---|---|---|---|
| Date | Type | Book | Page | Price | Grantor | Grantee | |
|
2/8/2024 |
|
Deeds |
$0 |
GARRETT JOSEPH III & BARBARA L |
GARRETT BARBARA L |
||
|
2/8/2024 |
|
Deeds |
$0 |
GARRETT BARBARA L |
GARRETT BARBARA L TRS |
||
|
6/28/2013 |
|
Deeds |
$0 |
GARRETT JOSEPH GARLAND III |
GARRETT JOSEPH III & BARBARA L |
||
|
10/1/1986 |
|
Historical |
$75,000 |
MEYER JOHN T |
GARRETT JOSEPH GARLAND III |
||
|
10/1/1985 |
|
Historical |
$79,000 |
|
MEYER JOHN T |
||
| Last Mailed Notice of Value (N.O.V.) Information/History | ||||||||
|---|---|---|---|---|---|---|---|---|
| Year | Date | Market Value | Taxable Market Value | Gross Assessed | Exemption | Net Assessed | ||
|
2026 |
02/23/2026 |
302,500 |
238,809 |
26,268 |
1,000 |
25,268 |
||
|
2025 |
02/14/2025 |
296,000 |
231,854 |
25,503 |
1,000 |
24,503 |
||
|
2024 |
02/13/2024 |
292,000 |
225,101 |
24,760 |
1,000 |
23,760 |
||
|
2024 |
03/01/2024 |
292,000 |
225,101 |
24,760 |
1,000 |
23,760 |
||
|
2023 |
02/14/2023 |
274,000 |
218,545 |
24,039 |
1,000 |
23,039 |
||
| Property Building Permit History | |||||||||||
|---|---|---|---|---|---|---|---|---|---|---|---|
| Issued | Permit # | Provided by | Bldg # | Description | Est Construction Cost | Status | |||||
| No Building Permit records returned. | |||||||||||
| Click button on building number to access detailed information: | ||||||
|---|---|---|---|---|---|---|
| Bldg # | Vacant/Improved Land | Bldg Description | Year Built | SqFt | # Stories | |
|
1 |
Improved |
Ranch 1 Story |
1985 |
2,383 |
1 Stories |
|