|
|
|
| Larry Stein Oklahoma County Assessor (405) 713-1200 - Public Access System |
|
|
|
|
|
|
| Real Property Display - Screen Produced 3/25/2026 6:40:14 AM | ||||
|---|---|---|---|---|
| Account: R126761360 | Type: Residential | Location: |
13139 WESTPARK PL |
|
| Building Name/Occupant: |
|
OKLAHOMA CITY |
||
| Owner Name 1: | REESE SUNNY |
Parcel PIN#: |
3861-12-676-1360 |
|
| Owner Name 2: | 1/4 section #: |
3861 |
||
| Owner Name 3: | Parent Acct: |
|
||
| Billing Address: | 13139 WESTPARK PL | Tax District: |
|
|
| City, State, Zip | OKLAHOMA CITY, OK 73142-4462 | School System: |
Deer Creek #6 |
|
|
Country: (If noted) |
Land Size: |
0.1085 Acres |
||
|
Land Value: 22,916 |
|
|||
|
Sect 16-T13N-R4W Qtr NE |
WESTLAKE TR 5-C SEC 2
Block
005
Lot
000
|
|||
| Full Legal Description: WESTLAKE TR 5-C SEC 2 005 000 PT OF LOTS 17 & 18 DESCRIBED AS: BEG AT NE/C LT 18 TH SE28.34FT SW107.13FT NW45.22FT NE104.13FT SE16.78FT TO BEG |
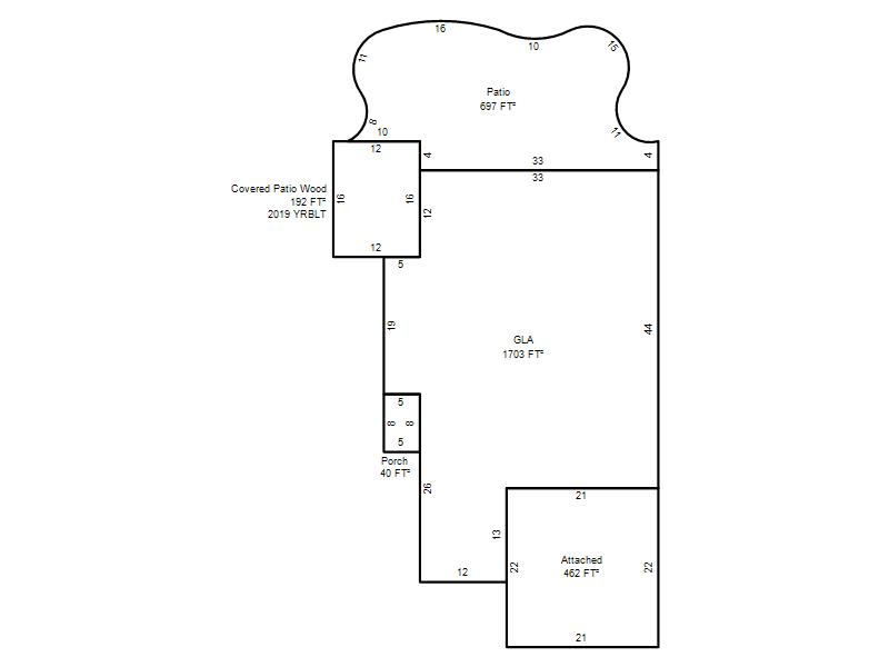
| Photo & Sketch (if available) | Comp Sales (ordered by relevancy) |
|
||||||||||||||||||
|
||||||||||||||||||||
| Value History (*The County Treasurer 405-713-1300 posts & collects actual tax amounts. Contact information HERE) | |||||||||||||
|---|---|---|---|---|---|---|---|---|---|---|---|---|---|
| Year | Market Value | Taxable Mkt Value | Gross Assessed | Exemption | Net Assessed | Millage | Est. Tax | Tax Savings | |||||
|
2025 |
226,500 |
222,258 |
24,448 |
1,000 |
23,448 |
129.51 |
$3,037 |
$190 |
|||||
|
2024 |
224,500 |
215,785 |
23,736 |
1,000 |
22,736 |
131.12 |
$2,981 |
$257 |
|||||
|
2023 |
209,500 |
209,500 |
23,045 |
0 |
23,045 |
131.55 |
$3,032 |
$0 |
|||||
|
2022 |
173,500 |
160,195 |
17,621 |
1,000 |
16,621 |
130.27 |
$2,165 |
$321 |
|||||
|
2021 |
157,500 |
155,530 |
17,108 |
1,000 |
16,108 |
127.63 |
$2,056 |
$155 |
|||||
| Property Account Status/Adjustments/Exemptions | ||
|---|---|---|
| Account # | Exemption Description | Amount |
|
R126761360 |
3% Cap Homestead |
0 |
|
R126761360 |
Homestead |
1,000 |
| Property Deed Transaction History (Recorded in the County Clerk's Office) | ||||||||||
|---|---|---|---|---|---|---|---|---|---|---|
| Date | Type | Book | Page | Price | Grantor | Grantee | ||||
|
11/22/2024 |
|
Deeds |
$0 |
REESE SUNNY |
REESE SUNNY |
|||||
|
1/27/2022 |
|
Deeds |
$208,000 |
HAYES PAMELA J |
REESE SUNNY |
|||||
|
4/2/2018 |
|
Deeds |
$158,500 |
MARTINEZ LARISA |
HAYES PAMELA J |
|||||
|
5/6/2014 |
|
Deeds |
$131,000 |
ROSE CHRISTOPHER L |
MARTINEZ LARISA |
|||||
|
9/20/2007 |
|
Deeds |
$141,000 |
HEMBREE BETTY G TRS HEMBREE BETTY TRUST |
ROSE CHRISTOPHER L |
|||||
| Last Mailed Notice of Value (N.O.V.) Information/History | ||||||||
|---|---|---|---|---|---|---|---|---|
| Year | Date | Market Value | Taxable Market Value | Gross Assessed | Exemption | Net Assessed | ||
|
2026 |
02/23/2026 |
238,000 |
228,925 |
25,181 |
1,000 |
24,181 |
||
|
2025 |
02/14/2025 |
226,500 |
222,258 |
24,448 |
1,000 |
23,448 |
||
|
2024 |
02/13/2024 |
224,500 |
215,785 |
23,736 |
1,000 |
22,736 |
||
|
2023 |
02/14/2023 |
209,500 |
209,500 |
23,045 |
0 |
23,045 |
||
|
2022 |
03/15/2022 |
173,500 |
160,195 |
17,621 |
1,000 |
16,621 |
||
| Property Building Permit History | ||||||
|---|---|---|---|---|---|---|
| Issued | Permit # | Provided by | Bldg # | Description | Est Construction Cost | Status |
|
5/11/1995 |
10216071 |
OKLAHOMA CITY |
1 |
Main Dwellin |
135,000 |
Inactive |
| Click button on building number to access detailed information: | ||||||
|---|---|---|---|---|---|---|
| Bldg # | Vacant/Improved Land | Bldg Description | Year Built | SqFt | # Stories | |
|
1 |
Improved |
Duplex One Story |
1995 |
1,703 |
1 Stories |
|