|
|
|
| Larry Stein Oklahoma County Assessor (405) 713-1200 - Public Access System |
|
|
|
|
|
|
| Real Property Display - Screen Produced 3/25/2026 6:40:14 AM | ||||
|---|---|---|---|---|
| Account: R126761470 | Type: Residential | Location: |
13150 WESTPARK PL |
|
| Building Name/Occupant: |
|
OKLAHOMA CITY |
||
| Owner Name 1: | ROSS DALE |
Parcel PIN#: |
3861-12-676-1470 |
|
| Owner Name 2: | 1/4 section #: |
3861 |
||
| Owner Name 3: | Parent Acct: |
|
||
| Billing Address: | 13150 WESTPARK PL | Tax District: |
|
|
| City, State, Zip | OKLAHOMA CITY, OK 73142-4462 | School System: |
Deer Creek #6 |
|
|
Country: (If noted) |
Land Size: |
0.1715 Acres |
||
|
Land Value: 23,807 |
|
|||
|
Sect 16-T13N-R4W Qtr NE |
WESTLAKE TR 5-C SEC 2
Block
006
Lot
000
|
|||
| Full Legal Description: WESTLAKE TR 5-C SEC 2 006 000 PT OF LOT 8 & 9 DESC AS BEG SLY/C OF LOT 9 TH NW17.21FT NE113.46FT NE36.86FT SE37.72FT SW29.93FT SW113.29FT NW24.95FT TOBEG |
| Photo & Sketch (if available) | Comp Sales (ordered by relevancy) |
|
||||||||||||||||||
|
||||||||||||||||||||
| Value History (*The County Treasurer 405-713-1300 posts & collects actual tax amounts. Contact information HERE) | |||||||||||||
|---|---|---|---|---|---|---|---|---|---|---|---|---|---|
| Year | Market Value | Taxable Mkt Value | Gross Assessed | Exemption | Net Assessed | Millage | Est. Tax | Tax Savings | |||||
|
2025 |
209,000 |
209,000 |
22,990 |
1,000 |
21,990 |
129.51 |
$2,848 |
$130 |
|||||
|
2024 |
202,000 |
117,293 |
12,902 |
1,000 |
11,902 |
131.12 |
$1,561 |
$1,353 |
|||||
|
2023 |
194,500 |
117,293 |
12,902 |
1,000 |
11,902 |
131.55 |
$1,566 |
$1,249 |
|||||
|
2022 |
162,000 |
117,293 |
12,902 |
1,000 |
11,902 |
130.27 |
$1,551 |
$771 |
|||||
|
2021 |
148,500 |
117,293 |
12,902 |
1,000 |
11,902 |
127.63 |
$1,519 |
$566 |
|||||
| Property Account Status/Adjustments/Exemptions | ||
|---|---|---|
| Account # | Exemption Description | Amount |
|
R126761470 |
3% Cap Homestead |
0 |
|
R126761470 |
Homestead |
1,000 |
| Property Deed Transaction History (Recorded in the County Clerk's Office) | ||||||||||
|---|---|---|---|---|---|---|---|---|---|---|
| Date | Type | Book | Page | Price | Grantor | Grantee | ||||
|
7/22/2024 |
|
Deeds |
$195,000 |
ROBERTSON JOANN TRS |
ROSS DALE |
|||||
|
5/3/2017 |
|
Deeds |
$0 |
ROBERTSON JO ANN |
ROBERTSON JOANN TRS |
|||||
|
10/26/2015 |
|
Deeds |
$0 |
ROBERTSON JIM M & JO ANN |
ROBERTSON JO ANN |
|||||
|
2/10/2009 |
|
Deeds |
$122,000 |
DOWNES PATRICK J TRS LEEHAN MAXINE REV TRUST |
ROBERTSON JIM M & JO ANN |
|||||
|
8/27/2008 |
|
Deeds |
$0 |
LEEHAN MARY MAXINE |
DOWNES PATRICK J TRS LEEHAN MAXINE REV TRUST |
|||||
| Last Mailed Notice of Value (N.O.V.) Information/History | ||||||||
|---|---|---|---|---|---|---|---|---|
| Year | Date | Market Value | Taxable Market Value | Gross Assessed | Exemption | Net Assessed | ||
|
2025 |
02/14/2025 |
209,000 |
209,000 |
22,990 |
1,000 |
21,990 |
||
|
2024 |
02/13/2024 |
202,000 |
117,293 |
12,902 |
1,000 |
11,902 |
||
|
2023 |
02/14/2023 |
194,500 |
117,293 |
12,902 |
1,000 |
11,902 |
||
|
2022 |
03/15/2022 |
162,000 |
117,293 |
12,902 |
1,000 |
11,902 |
||
|
2021 |
03/19/2021 |
148,500 |
117,293 |
12,902 |
1,000 |
11,902 |
||
| Property Building Permit History | |||||||||||
|---|---|---|---|---|---|---|---|---|---|---|---|
| Issued | Permit # | Provided by | Bldg # | Description | Est Construction Cost | Status | |||||
| No Building Permit records returned. | |||||||||||
| Click button on building number to access detailed information: | ||||||
|---|---|---|---|---|---|---|
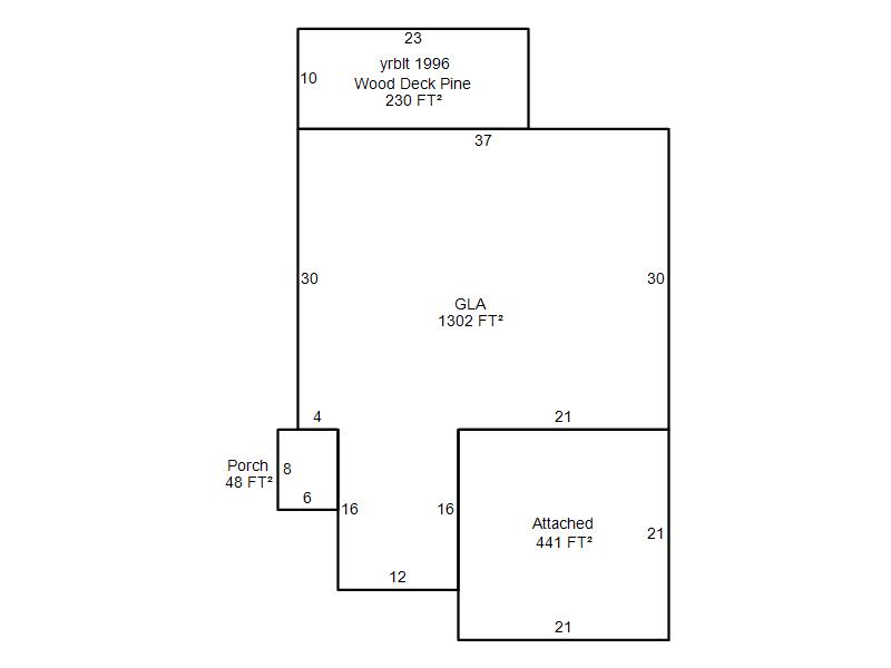
| Bldg # | Vacant/Improved Land | Bldg Description | Year Built | SqFt | # Stories | |
|
1 |
Improved |
Duplex One Story |
1995 |
1,302 |
1 Stories |
|