|
|
|
| Larry Stein Oklahoma County Assessor (405) 713-1200 - Public Access System |
|
|
|
|
|
|
| Real Property Display - Screen Produced 4/9/2026 8:00:40 AM | ||||
|---|---|---|---|---|
| Account: R200221200 | Type: Residential | Location: |
13241 SIGNATURE BLVD |
|
| Building Name/Occupant: |
|
OKLAHOMA CITY |
||
| Owner Name 1: | FULCO GEORGE J & MICHAEL LIVING TRUST |
Parcel PIN#: |
3861-20-022-1200 |
|
| Owner Name 2: | 1/4 section #: |
3861 |
||
| Owner Name 3: | Parent Acct: |
|
||
| Billing Address: | 13241 SIGNATURE BLVD | Tax District: |
|
|
| City, State, Zip | OKLAHOMA CITY , OK 73142 | School System: |
Deer Creek #6 |
|
|
Country: (If noted) |
Land Size: |
0.0781 Acres |
||
|
Land Value: 21,930 |
|
|||
|
Sect 16-T13N-R4W Qtr NE |
SIGNATURE VILLAS REVISED
Block
001
Lot
11A
|
|||
| Full Legal Description: SIGNATURE VILLAS REVISED 001 11A |
| Photo & Sketch (if available) | Comp Sales (ordered by relevancy) |
|
||||||||||||||||||
|
||||||||||||||||||||
| Value History (*The County Treasurer 405-713-1300 posts & collects actual tax amounts. Contact information HERE) | |||||||||||||
|---|---|---|---|---|---|---|---|---|---|---|---|---|---|
| Year | Market Value | Taxable Mkt Value | Gross Assessed | Exemption | Net Assessed | Millage | Est. Tax | Tax Savings | |||||
|
2026 |
256,500 |
212,500 |
23,374 |
0 |
23,374 |
129.51 |
$3,027 |
$627 |
|||||
|
2025 |
247,500 |
202,381 |
22,261 |
0 |
22,261 |
129.51 |
$2,883 |
$643 |
|||||
|
2024 |
239,500 |
192,744 |
21,201 |
0 |
21,201 |
131.12 |
$2,780 |
$674 |
|||||
|
2023 |
221,000 |
183,566 |
20,191 |
0 |
20,191 |
131.55 |
$2,656 |
$542 |
|||||
|
2022 |
185,000 |
174,825 |
19,230 |
0 |
19,230 |
130.27 |
$2,505 |
$146 |
|||||
| Property Account Status/Adjustments/Exemptions | ||
|---|---|---|
| Account # | Exemption Description | Amount |
|
R200221200 |
5% Capped Account |
0 |
| Property Deed Transaction History (Recorded in the County Clerk's Office) | |||||||
|---|---|---|---|---|---|---|---|
| Date | Type | Book | Page | Price | Grantor | Grantee | |
|
12/15/2017 |
|
Deeds |
$165,000 |
STAR INVESTMENTS LLC |
FULCO GEORGE J & MICHAEL LIVING TRUST |
||
|
7/22/2004 |
|
Deeds |
$137,000 |
EALES DONNA LOUISE |
STAR INVESTMENTS LLC |
||
|
7/24/2000 |
|
Deeds |
$129,000 |
SIGNATURE VILLAS LLC C/O W J ROBINSON |
EALES DONNA LOUISE |
||
|
6/24/1997 |
|
Historical |
$0 |
|
SIGNATURE VILLAS LLC |
||
| Last Mailed Notice of Value (N.O.V.) Information/History | ||||||||
|---|---|---|---|---|---|---|---|---|
| Year | Date | Market Value | Taxable Market Value | Gross Assessed | Exemption | Net Assessed | ||
|
2026 |
02/23/2026 |
256,500 |
212,500 |
23,374 |
0 |
23,374 |
||
|
2025 |
02/14/2025 |
247,500 |
202,381 |
22,261 |
0 |
22,261 |
||
|
2024 |
02/13/2024 |
239,500 |
192,744 |
21,201 |
0 |
21,201 |
||
|
2023 |
02/14/2023 |
221,000 |
183,566 |
20,191 |
0 |
20,191 |
||
|
2022 |
03/15/2022 |
185,000 |
174,825 |
19,230 |
0 |
19,230 |
||
| Property Building Permit History | ||||||
|---|---|---|---|---|---|---|
| Issued | Permit # | Provided by | Bldg # | Description | Est Construction Cost | Status |
|
4/28/1999 |
10265282 |
OKLAHOMA CITY |
1 |
Main Dwellin |
90,000 |
Inactive |
| Click button on building number to access detailed information: | ||||||
|---|---|---|---|---|---|---|
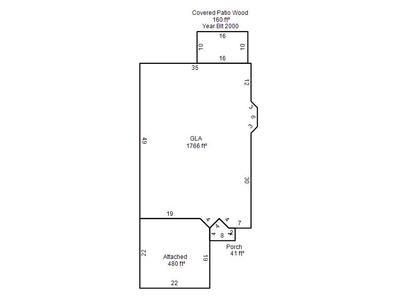
| Bldg # | Vacant/Improved Land | Bldg Description | Year Built | SqFt | # Stories | |
|
1 |
Improved |
Duplex One Story |
2000 |
1,766 |
1 Stories |
|