|
|
|
| Larry Stein Oklahoma County Assessor (405) 713-1200 - Public Access System |
|
|
|
|
|
|
| Real Property Display - Screen Produced 3/20/2026 5:53:52 AM | ||||
|---|---|---|---|---|
| Account: R100321290 | Type: Residential | Location: |
12410 ABBOTTS WAY |
|
| Building Name/Occupant: |
|
OKLAHOMA CITY |
||
| Owner Name 1: | BRASIEL RICHARD J & MARY L TRS |
Parcel PIN#: |
3862-10-032-1290 |
|
| Owner Name 2: | BRASIEL RICHARD J & MARY L REV LIV TRUST | 1/4 section #: |
3862 |
|
| Owner Name 3: | Parent Acct: |
|
||
| Billing Address: | 9104 NW 99TH ST | Tax District: |
|
|
| City, State, Zip | YUKON, OK 73099-8336 | School System: |
Putnam City #1 |
|
|
Country: (If noted) |
Land Size: |
0.2009 Acres |
||
|
Land Value: 31,500 |
|
|||
|
Sect 16-T13N-R4W Qtr SE |
FOX RUN REPLAT
Block
002
Lot
030
|
|||
| Full Legal Description: FOX RUN REPLAT 002 030 |
| Photo & Sketch (if available) | Comp Sales (ordered by relevancy) |
|
||||||||||||||||||
|
||||||||||||||||||||
| Value History (*The County Treasurer 405-713-1300 posts & collects actual tax amounts. Contact information HERE) | |||||||||||||
|---|---|---|---|---|---|---|---|---|---|---|---|---|---|
| Year | Market Value | Taxable Mkt Value | Gross Assessed | Exemption | Net Assessed | Millage | Est. Tax | Tax Savings | |||||
|
2025 |
289,500 |
232,768 |
25,604 |
0 |
25,604 |
123.17 |
$3,154 |
$769 |
|||||
|
2024 |
280,000 |
221,684 |
24,385 |
0 |
24,385 |
122.30 |
$2,982 |
$785 |
|||||
|
2023 |
266,000 |
211,128 |
23,223 |
0 |
23,223 |
121.91 |
$2,831 |
$736 |
|||||
|
2022 |
232,000 |
201,075 |
22,118 |
0 |
22,118 |
123.41 |
$2,730 |
$420 |
|||||
|
2021 |
191,500 |
191,500 |
21,065 |
0 |
21,065 |
122.23 |
$2,575 |
$0 |
|||||
| Property Account Status/Adjustments/Exemptions | ||
|---|---|---|
| Account # | Exemption Description | Amount |
|
R100321290 |
5% Capped Account |
0 |
| Property Deed Transaction History (Recorded in the County Clerk's Office) | ||||||||||
|---|---|---|---|---|---|---|---|---|---|---|
| Date | Type | Book | Page | Price | Grantor | Grantee | ||||
|
12/23/2019 |
|
Deeds |
$0 |
BRASIEL RICHARD J |
BRASIEL RICHARD J & MARY L TRS |
|||||
|
6/28/2007 |
|
Deeds |
$170,000 |
MCILVAINE DONALD W JR |
BRASIEL RICHARD J |
|||||
|
1/25/2005 |
|
Deeds |
$162,000 |
TUCKER WAYMON |
MCILVAINE DONALD W JR |
|||||
|
1/7/2005 |
|
Deeds |
$0 |
TUCKER WAYMON W PALMER JAMES H |
TUCKER WAYMON |
|||||
|
11/13/2003 |
|
Deeds |
$0 |
ANITPORDA ELIZABETH D |
TUCKER WAYMON W PALMER JAMES H |
|||||
| Last Mailed Notice of Value (N.O.V.) Information/History | ||||||||
|---|---|---|---|---|---|---|---|---|
| Year | Date | Market Value | Taxable Market Value | Gross Assessed | Exemption | Net Assessed | ||
|
2026 |
02/23/2026 |
285,500 |
244,406 |
26,884 |
0 |
26,884 |
||
|
2025 |
02/14/2025 |
289,500 |
232,768 |
25,604 |
0 |
25,604 |
||
|
2024 |
02/13/2024 |
280,000 |
221,684 |
24,385 |
0 |
24,385 |
||
|
2023 |
02/14/2023 |
266,000 |
211,128 |
23,223 |
0 |
23,223 |
||
|
2022 |
03/15/2022 |
232,000 |
201,075 |
22,118 |
0 |
22,118 |
||
| Property Building Permit History | |||||||||||
|---|---|---|---|---|---|---|---|---|---|---|---|
| Issued | Permit # | Provided by | Bldg # | Description | Est Construction Cost | Status | |||||
| No Building Permit records returned. | |||||||||||
| Click button on building number to access detailed information: | ||||||
|---|---|---|---|---|---|---|
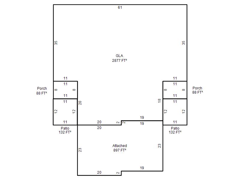
| Bldg # | Vacant/Improved Land | Bldg Description | Year Built | SqFt | # Stories | |
|
1 |
Improved |
Duplex One Story |
1981 |
2,877 |
1 Stories |
|