|
|
|
| Larry Stein Oklahoma County Assessor (405) 713-1200 - Public Access System |
|
|
|
|
|
|
| Real Property Display - Screen Produced 3/16/2026 7:41:44 AM | ||||
|---|---|---|---|---|
| Account: R100322270 | Type: Residential | Location: |
12409 CLARENCE CT |
|
| Building Name/Occupant: |
|
OKLAHOMA CITY |
||
| Owner Name 1: | HOBART CHRISTOPHER W |
Parcel PIN#: |
3862-10-032-2270 |
|
| Owner Name 2: | 1/4 section #: |
3862 |
||
| Owner Name 3: | Parent Acct: |
|
||
| Billing Address: | 12409 CLARENCE CT | Tax District: |
|
|
| City, State, Zip | OKLAHOMA CITY, OK 73142-4520 | School System: |
Putnam City #1 |
|
|
Country: (If noted) |
Land Size: |
0.1433 Acres |
||
|
Land Value: 23,712 |
|
|||
|
Sect 16-T13N-R4W Qtr SE |
FOX RUN REPLAT
Block
006
Lot
011
|
|||
| Full Legal Description: FOX RUN REPLAT 006 011 |
| Photo & Sketch (if available) | Comp Sales (ordered by relevancy) |
|
||||||||||||||||||
|
||||||||||||||||||||
| Value History (*The County Treasurer 405-713-1300 posts & collects actual tax amounts. Contact information HERE) | |||||||||||||
|---|---|---|---|---|---|---|---|---|---|---|---|---|---|
| Year | Market Value | Taxable Mkt Value | Gross Assessed | Exemption | Net Assessed | Millage | Est. Tax | Tax Savings | |||||
|
2025 |
194,000 |
167,130 |
18,383 |
0 |
18,383 |
123.17 |
$2,264 |
$364 |
|||||
|
2024 |
190,500 |
159,172 |
17,508 |
0 |
17,508 |
122.30 |
$2,141 |
$421 |
|||||
|
2023 |
174,000 |
151,593 |
16,675 |
0 |
16,675 |
121.91 |
$2,033 |
$300 |
|||||
|
2022 |
153,000 |
144,375 |
15,881 |
0 |
15,881 |
123.41 |
$1,960 |
$117 |
|||||
|
2021 |
137,500 |
137,500 |
15,125 |
0 |
15,125 |
122.23 |
$1,849 |
$0 |
|||||
| Property Account Status/Adjustments/Exemptions | ||
|---|---|---|
| Account # | Exemption Description | Amount |
|
R100322270 |
5% Capped Account |
0 |
| Property Deed Transaction History (Recorded in the County Clerk's Office) | ||||||||||
|---|---|---|---|---|---|---|---|---|---|---|
| Date | Type | Book | Page | Price | Grantor | Grantee | ||||
|
3/8/2018 |
|
Deeds |
$126,000 |
JARMAN ANDREA MAYCEE |
HOBART CHRISTOPHER W |
|||||
|
5/24/2011 |
|
Hmstd Off & |
$0 |
JARMAN RONNIE L JARMAN SANDRA K |
JARMAN ANDREA MAYCEE |
|||||
|
9/14/2008 |
|
Deeds |
$100,000 |
VOYLES PAUL WILLIAM JR |
JARMAN RONNIE L JARMAN SANDRA K |
|||||
|
5/3/2004 |
|
Deeds |
$0 |
VOYLES DAYNA LEA |
VOYLES PAUL WILLIAM JR |
|||||
|
3/22/2004 |
|
Deeds |
$0 |
VOYLES PAUL W & DAYNA L |
VOYLES PAUL WILLIAM JR |
|||||
| Last Mailed Notice of Value (N.O.V.) Information/History | ||||||||
|---|---|---|---|---|---|---|---|---|
| Year | Date | Market Value | Taxable Market Value | Gross Assessed | Exemption | Net Assessed | ||
|
2026 |
02/23/2026 |
202,500 |
175,486 |
19,303 |
0 |
19,303 |
||
|
2025 |
02/14/2025 |
194,000 |
167,130 |
18,383 |
0 |
18,383 |
||
|
2024 |
02/13/2024 |
190,500 |
159,172 |
17,508 |
0 |
17,508 |
||
|
2023 |
02/14/2023 |
174,000 |
151,593 |
16,675 |
0 |
16,675 |
||
|
2022 |
03/15/2022 |
153,000 |
144,375 |
15,881 |
0 |
15,881 |
||
| Property Building Permit History | ||||||
|---|---|---|---|---|---|---|
| Issued | Permit # | Provided by | Bldg # | Description | Est Construction Cost | Status |
|
10/24/1995 |
10201345 |
OKLAHOMA CITY |
1 |
Add On |
2,000 |
Inactive |
| Click button on building number to access detailed information: | ||||||
|---|---|---|---|---|---|---|
| Bldg # | Vacant/Improved Land | Bldg Description | Year Built | SqFt | # Stories | |
|
1 |
Improved |
Ranch 1 Story |
1982 |
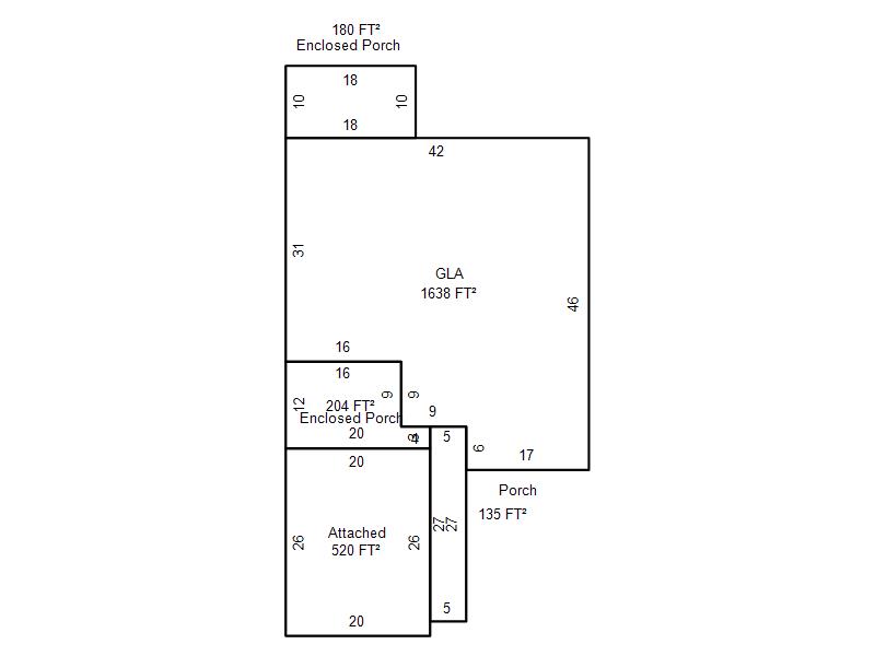
1,638 |
1 Stories |
|