|
|
|
| Larry Stein Oklahoma County Assessor (405) 713-1200 - Public Access System |
|
|
|
|
|
|
| Real Property Display - Screen Produced 3/18/2026 3:57:06 AM | ||||
|---|---|---|---|---|
| Account: R100322430 | Type: Residential | Location: |
12517 DOONS DR |
|
| Building Name/Occupant: |
|
OKLAHOMA CITY |
||
| Owner Name 1: | LEMMERMAN DEBRA L |
Parcel PIN#: |
3862-10-032-2430 |
|
| Owner Name 2: | 1/4 section #: |
3862 |
||
| Owner Name 3: | Parent Acct: |
|
||
| Billing Address: | 12517 DOONS DR | Tax District: |
|
|
| City, State, Zip | OKLAHOMA CITY, OK 73142-4526 | School System: |
Putnam City #1 |
|
|
Country: (If noted) |
Land Size: |
0.2066 Acres |
||
|
Land Value: 34,200 |
|
|||
|
Sect 16-T13N-R4W Qtr SE |
FOX RUN REPLAT
Block
007
Lot
002
|
|||
| Full Legal Description: FOX RUN REPLAT 007 002 |
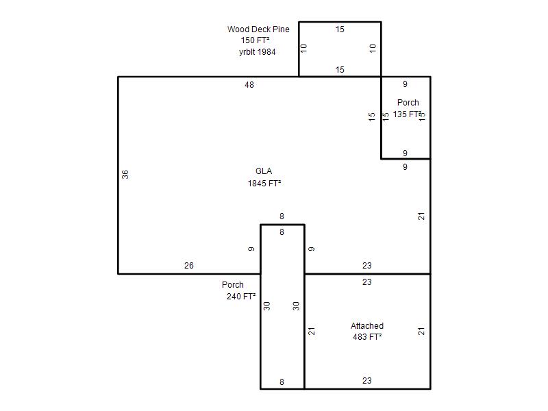
| Photo & Sketch (if available) | Comp Sales (ordered by relevancy) |
|
||||||||||||||||||
|
||||||||||||||||||||
| Value History (*The County Treasurer 405-713-1300 posts & collects actual tax amounts. Contact information HERE) | |||||||||||||
|---|---|---|---|---|---|---|---|---|---|---|---|---|---|
| Year | Market Value | Taxable Mkt Value | Gross Assessed | Exemption | Net Assessed | Millage | Est. Tax | Tax Savings | |||||
| No PropertyValuation records returned. | |||||||||||||
| Property Account Status/Adjustments/Exemptions | ||
|---|---|---|
| Account # | Exemption Description | Amount |
|
R100322430 |
3% Cap Homestead |
0 |
|
R100322430 |
Homestead |
1,000 |
| Property Deed Transaction History (Recorded in the County Clerk's Office) | |||||||
|---|---|---|---|---|---|---|---|
| Date | Type | Book | Page | Price | Grantor | Grantee | |
|
5/16/2008 |
|
Deeds |
$0 |
LEMMERMAN HARRY G & DEBRA L |
LEMMERMAN DEBRA L |
||
|
3/15/1999 |
|
Deeds |
$82,500 |
KENWORTHY LAURA B |
LEMMERMAN HARRY G & DEBRA L |
||
|
8/13/1997 |
|
Historical |
$0 |
GALBRAITH LAURA B |
KENWORTHY LAURA B |
||
|
10/1/1986 |
|
Historical |
$0 |
RODWELL DOUGLAS W JR & ROBIN A |
GALBRAITH LAURA B |
||
|
5/1/1983 |
|
Historical |
$0 |
|
RODWELL DOUGLAS W JR & ROBIN A |
||
| Last Mailed Notice of Value (N.O.V.) Information/History | ||||||||
|---|---|---|---|---|---|---|---|---|
| Year | Date | Market Value | Taxable Market Value | Gross Assessed | Exemption | Net Assessed | ||
| No Notice of Value N.O.V. records returned. | ||||||||
| Property Building Permit History | |||||||||||
|---|---|---|---|---|---|---|---|---|---|---|---|
| Issued | Permit # | Provided by | Bldg # | Description | Est Construction Cost | Status | |||||
| No Building Permit records returned. | |||||||||||
| Click button on building number to access detailed information: | ||||||
|---|---|---|---|---|---|---|
| Bldg # | Vacant/Improved Land | Bldg Description | Year Built | SqFt | # Stories | |
|
1 |
Improved |
Ranch 1 Story |
1981 |
1,845 |
1 Stories |
|