|
|
|
| Larry Stein Oklahoma County Assessor (405) 713-1200 - Public Access System |
|
|
|
|
|
|
| Real Property Display - Screen Produced 3/20/2026 5:53:53 AM | ||||
|---|---|---|---|---|
| Account: R100322710 | Type: Residential | Location: |
6508 NW 123RD ST |
|
| Building Name/Occupant: |
|
OKLAHOMA CITY |
||
| Owner Name 1: | BEAHAN BRIAN T |
Parcel PIN#: |
3862-10-032-2710 |
|
| Owner Name 2: | 1/4 section #: |
3862 |
||
| Owner Name 3: | Parent Acct: |
|
||
| Billing Address: | 6508 NW 123RD ST | Tax District: |
|
|
| City, State, Zip | OKLAHOMA CITY, OK 73142 | School System: |
Putnam City #1 |
|
|
Country: (If noted) |
Land Size: |
0.2287 Acres |
||
|
Land Value: 37,848 |
|
|||
|
Sect 16-T13N-R4W Qtr SE |
FOX RUN REPLAT
Block
008
Lot
006
|
|||
| Full Legal Description: FOX RUN REPLAT 008 006 |
| Photo & Sketch (if available) | Comp Sales (ordered by relevancy) |
|
||||||||||||||||||
|
||||||||||||||||||||
| Value History (*The County Treasurer 405-713-1300 posts & collects actual tax amounts. Contact information HERE) | |||||||||||||
|---|---|---|---|---|---|---|---|---|---|---|---|---|---|
| Year | Market Value | Taxable Mkt Value | Gross Assessed | Exemption | Net Assessed | Millage | Est. Tax | Tax Savings | |||||
|
2025 |
187,000 |
111,006 |
12,210 |
1,000 |
11,210 |
123.17 |
$1,381 |
$1,153 |
|||||
|
2024 |
184,500 |
107,773 |
11,854 |
1,000 |
10,854 |
122.30 |
$1,328 |
$1,155 |
|||||
|
2023 |
170,500 |
104,634 |
11,509 |
1,000 |
10,509 |
121.91 |
$1,281 |
$1,005 |
|||||
|
2022 |
148,500 |
101,587 |
11,173 |
1,000 |
10,173 |
123.41 |
$1,256 |
$760 |
|||||
|
2021 |
135,500 |
98,629 |
10,848 |
0 |
10,848 |
122.23 |
$1,326 |
$496 |
|||||
| Property Account Status/Adjustments/Exemptions | ||
|---|---|---|
| Account # | Exemption Description | Amount |
|
R100322710 |
Homestead |
1,000 |
|
R100322710 |
3% Cap Homestead |
0 |
| Property Deed Transaction History (Recorded in the County Clerk's Office) | ||||||||||
|---|---|---|---|---|---|---|---|---|---|---|
| Date | Type | Book | Page | Price | Grantor | Grantee | ||||
|
3/2/2022 |
|
Deeds |
$0 |
GROSS COLLEEN L |
BEAHAN BRIAN T |
|||||
|
2/25/2020 |
|
Hmstd Off & |
$0 |
BEAHAN CATHERINE L |
GROSS COLLEEN L |
|||||
|
11/9/1999 |
|
Deeds |
$0 |
BEAHAN THOMAS N & CATHERINE L |
BEAHAN CATHERINE L |
|||||
|
11/19/1990 |
|
Historical |
$64,000 |
SECRETARY OF VETERANS AFFAIRS |
BEAHAN THOMAS N & CATHERINE L |
|||||
|
8/14/1990 |
|
Historical |
$0 |
CLARK THOMAS M & NANCY K |
SECRETARY OF VETERANS AFFAIRS |
|||||
| Last Mailed Notice of Value (N.O.V.) Information/History | ||||||||
|---|---|---|---|---|---|---|---|---|
| Year | Date | Market Value | Taxable Market Value | Gross Assessed | Exemption | Net Assessed | ||
|
2026 |
02/23/2026 |
196,000 |
114,336 |
12,576 |
1,000 |
11,576 |
||
|
2025 |
02/14/2025 |
187,000 |
111,006 |
12,210 |
1,000 |
11,210 |
||
|
2024 |
02/13/2024 |
184,500 |
107,773 |
11,854 |
1,000 |
10,854 |
||
|
2023 |
02/14/2023 |
170,500 |
104,634 |
11,509 |
1,000 |
10,509 |
||
|
2022 |
03/15/2022 |
148,500 |
103,560 |
11,390 |
0 |
11,390 |
||
| Property Building Permit History | |||||||||||
|---|---|---|---|---|---|---|---|---|---|---|---|
| Issued | Permit # | Provided by | Bldg # | Description | Est Construction Cost | Status | |||||
| No Building Permit records returned. | |||||||||||
| Click button on building number to access detailed information: | ||||||
|---|---|---|---|---|---|---|
| Bldg # | Vacant/Improved Land | Bldg Description | Year Built | SqFt | # Stories | |
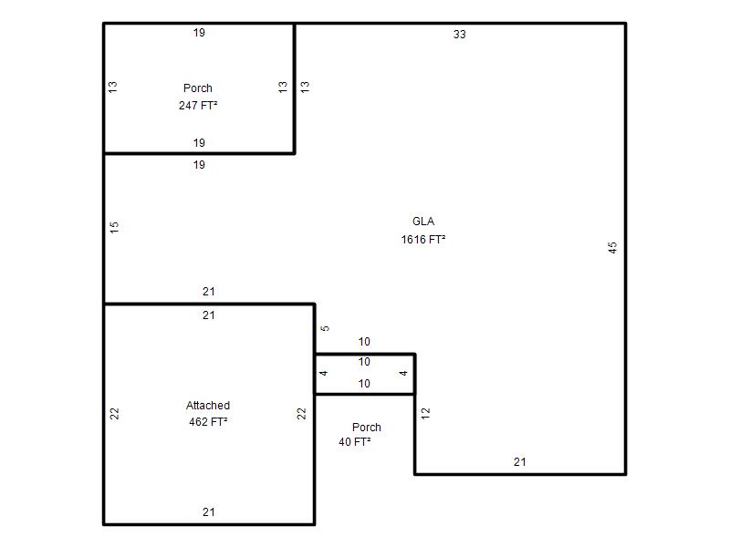
|
1 |
Improved |
Ranch 1 Story |
1982 |
1,616 |
1 Stories |
|