|
|
|
| Larry Stein Oklahoma County Assessor (405) 713-1200 - Public Access System |
|
|
|
|
|
|
| Real Property Display - Screen Produced 3/20/2026 5:05:04 AM | ||||
|---|---|---|---|---|
| Account: R122351830 | Type: Residential | Location: |
12812 BRANDON PL |
|
| Building Name/Occupant: |
|
OKLAHOMA CITY |
||
| Owner Name 1: | GALAWAY DAVID TRUST |
Parcel PIN#: |
3862-12-235-1830 |
|
| Owner Name 2: | 1/4 section #: |
3862 |
||
| Owner Name 3: | Parent Acct: |
|
||
| Billing Address: | 12812 BRANDON PL | Tax District: |
|
|
| City, State, Zip | OKLAHOMA CITY, OK 73142-4456 | School System: |
Putnam City #1 |
|
|
Country: (If noted) |
Land Size: |
0.1389 Acres |
||
|
Land Value: 31,460 |
|
|||
|
Sect 16-T13N-R4W Qtr SE |
WESTLAKE
Block
004
Lot
018
|
|||
| Full Legal Description: WESTLAKE 004 018 |
| Photo & Sketch (if available) | Comp Sales (ordered by relevancy) |
|
||||||||||||||||||
|
||||||||||||||||||||
| Value History (*The County Treasurer 405-713-1300 posts & collects actual tax amounts. Contact information HERE) | |||||||||||||
|---|---|---|---|---|---|---|---|---|---|---|---|---|---|
| Year | Market Value | Taxable Mkt Value | Gross Assessed | Exemption | Net Assessed | Millage | Est. Tax | Tax Savings | |||||
|
2025 |
198,500 |
144,239 |
15,866 |
1,000 |
14,866 |
123.17 |
$1,831 |
$858 |
|||||
|
2024 |
192,500 |
144,239 |
15,866 |
1,000 |
14,866 |
122.30 |
$1,818 |
$772 |
|||||
|
2023 |
182,000 |
144,239 |
15,866 |
1,000 |
14,866 |
121.91 |
$1,812 |
$628 |
|||||
|
2022 |
159,500 |
140,038 |
15,403 |
1,000 |
14,403 |
123.41 |
$1,778 |
$388 |
|||||
|
2021 |
139,000 |
135,960 |
14,955 |
1,000 |
13,955 |
122.23 |
$1,706 |
$163 |
|||||
| Property Account Status/Adjustments/Exemptions | ||
|---|---|---|
| Account # | Exemption Description | Amount |
|
R122351830 |
Freeze Senior Valuation |
0 |
|
R122351830 |
Homestead |
1,000 |
|
R122351830 |
3% Cap Homestead |
0 |
| Property Deed Transaction History (Recorded in the County Clerk's Office) | ||||||||||
|---|---|---|---|---|---|---|---|---|---|---|
| Date | Type | Book | Page | Price | Grantor | Grantee | ||||
|
8/21/2020 |
|
Deeds |
$0 |
GALAWAY DAVID |
GALAWAY DAVID TRUST |
|||||
|
6/30/2011 |
|
Deeds |
$0 |
GALAWAY DAVID |
GALAWAY DAVID |
|||||
|
2/3/2005 |
|
Deeds |
$0 |
GALAWAY DAVID & KERI INEZ |
GALAWAY DAVID |
|||||
|
3/5/2001 |
|
Deeds |
$0 |
GALAWAY DAVID |
GALAWAY DAVID & KERI INEZ |
|||||
|
3/3/1999 |
|
Historical |
$0 |
GALAWAY DAVID B |
GALAWAY DAVID |
|||||
| Last Mailed Notice of Value (N.O.V.) Information/History | ||||||||
|---|---|---|---|---|---|---|---|---|
| Year | Date | Market Value | Taxable Market Value | Gross Assessed | Exemption | Net Assessed | ||
|
2026 |
02/23/2026 |
199,500 |
144,239 |
15,866 |
1,000 |
14,866 |
||
|
2025 |
02/14/2025 |
198,500 |
144,239 |
15,866 |
1,000 |
14,866 |
||
|
2024 |
02/13/2024 |
192,500 |
144,239 |
15,866 |
1,000 |
14,866 |
||
|
2023 |
02/14/2023 |
182,000 |
144,239 |
15,866 |
1,000 |
14,866 |
||
|
2022 |
03/15/2022 |
159,500 |
140,038 |
15,403 |
1,000 |
14,403 |
||
| Property Building Permit History | |||||||||||
|---|---|---|---|---|---|---|---|---|---|---|---|
| Issued | Permit # | Provided by | Bldg # | Description | Est Construction Cost | Status | |||||
| No Building Permit records returned. | |||||||||||
| Click button on building number to access detailed information: | ||||||
|---|---|---|---|---|---|---|
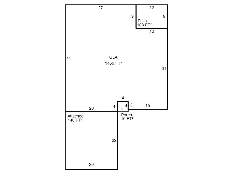
| Bldg # | Vacant/Improved Land | Bldg Description | Year Built | SqFt | # Stories | |
|
1 |
Improved |
Ranch 1 Story |
1984 |
1,460 |
1 Stories |
|