|
|
|
| Larry Stein Oklahoma County Assessor (405) 713-1200 - Public Access System |
|
|
|
|
|
|
| Real Property Display - Screen Produced 3/24/2026 9:42:51 AM | ||||
|---|---|---|---|---|
| Account: R123451070 | Type: Residential | Location: |
6512 NW 130TH ST |
|
| Building Name/Occupant: |
|
OKLAHOMA CITY |
||
| Owner Name 1: | FIRTH ASHLEY |
Parcel PIN#: |
3864-12-345-1070 |
|
| Owner Name 2: | FIRTH MONTANA | 1/4 section #: |
3864 |
|
| Owner Name 3: | Parent Acct: |
|
||
| Billing Address: | 2204 NW 49TH ST | Tax District: |
|
|
| City, State, Zip | OKLAHOMA CITY, OK 73112-8852 | School System: |
Deer Creek #6 |
|
|
Country: (If noted) |
Land Size: |
0.1584 Acres |
||
|
Land Value: 35,535 |
|
|||
|
Sect 16-T13N-R4W Qtr NW |
WESTLAKE BLKS 8-10
Block
008
Lot
008
|
|||
| Full Legal Description: WESTLAKE BLKS 8-10 008 008 |
| Photo & Sketch (if available) | Comp Sales (ordered by relevancy) |
|
||||||||||||||||||
|
||||||||||||||||||||
| Value History (*The County Treasurer 405-713-1300 posts & collects actual tax amounts. Contact information HERE) | |||||||||||||
|---|---|---|---|---|---|---|---|---|---|---|---|---|---|
| Year | Market Value | Taxable Mkt Value | Gross Assessed | Exemption | Net Assessed | Millage | Est. Tax | Tax Savings | |||||
|
2025 |
195,500 |
165,915 |
18,250 |
0 |
18,250 |
129.51 |
$2,364 |
$421 |
|||||
|
2024 |
189,500 |
158,015 |
17,381 |
0 |
17,381 |
131.12 |
$2,279 |
$454 |
|||||
|
2023 |
179,500 |
150,491 |
16,553 |
0 |
16,553 |
131.55 |
$2,178 |
$420 |
|||||
|
2022 |
157,000 |
143,325 |
15,765 |
0 |
15,765 |
130.27 |
$2,054 |
$196 |
|||||
|
2021 |
137,000 |
136,500 |
15,015 |
0 |
15,015 |
127.63 |
$1,916 |
$7 |
|||||
| Property Account Status/Adjustments/Exemptions | ||
|---|---|---|
| Account # | Exemption Description | Amount |
|
R123451070 |
5% Capped Account |
0 |
| Property Deed Transaction History (Recorded in the County Clerk's Office) | ||||||||||
|---|---|---|---|---|---|---|---|---|---|---|
| Date | Type | Book | Page | Price | Grantor | Grantee | ||||
|
6/9/2025 |
|
Hmstd Off & |
$0 |
DOOLEY DELLA P TRS |
FIRTH ASHLEY |
|||||
|
6/1/2018 |
|
Deeds |
$0 |
DOOLEY DELLA P PERS REP |
DOOLEY DELLA P TRS |
|||||
|
1/21/2013 |
|
Hmstd Off & |
$0 |
DOOLEY HUGH A & DELLA P |
DOOLEY DELLA P PERS REP |
|||||
|
12/17/2002 |
|
Deeds |
$0 |
FIRTH LESLIE A DOOLEY HUGH A & DELLA P |
DOOLEY HUGH A & DELLA P |
|||||
|
11/13/2002 |
|
Deeds |
$65,000 |
ROWE ENTERPRISES INC |
FIRTH LESLIE A DOOLEY HUGH A & DELLA P |
|||||
| Last Mailed Notice of Value (N.O.V.) Information/History | ||||||||
|---|---|---|---|---|---|---|---|---|
| Year | Date | Market Value | Taxable Market Value | Gross Assessed | Exemption | Net Assessed | ||
|
2026 |
02/23/2026 |
196,500 |
174,210 |
19,162 |
0 |
19,162 |
||
|
2025 |
02/14/2025 |
195,500 |
165,915 |
18,250 |
0 |
18,250 |
||
|
2024 |
02/13/2024 |
189,500 |
158,015 |
17,381 |
0 |
17,381 |
||
|
2023 |
02/14/2023 |
179,500 |
150,491 |
16,553 |
0 |
16,553 |
||
|
2022 |
03/15/2022 |
157,000 |
143,325 |
15,765 |
0 |
15,765 |
||
| Property Building Permit History | |||||||||||
|---|---|---|---|---|---|---|---|---|---|---|---|
| Issued | Permit # | Provided by | Bldg # | Description | Est Construction Cost | Status | |||||
| No Building Permit records returned. | |||||||||||
| Click button on building number to access detailed information: | ||||||
|---|---|---|---|---|---|---|
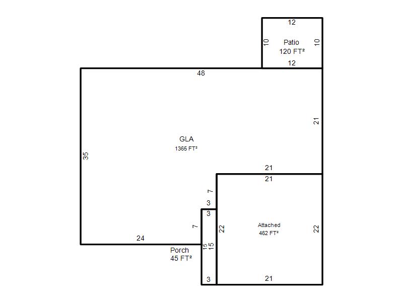
| Bldg # | Vacant/Improved Land | Bldg Description | Year Built | SqFt | # Stories | |
|
1 |
Improved |
Ranch 1 Story |
1985 |
1,365 |
1 Stories |
|