|
|
|
| Larry Stein Oklahoma County Assessor (405) 713-1200 - Public Access System |
|
|
|
|
|
|
| Real Property Display - Screen Produced 3/24/2026 9:43:19 AM | ||||
|---|---|---|---|---|
| Account: R123451710 | Type: Residential | Location: |
6825 NW 130TH ST |
|
| Building Name/Occupant: |
|
OKLAHOMA CITY |
||
| Owner Name 1: | GORDON SETH D & CAROL A |
Parcel PIN#: |
3864-12-345-1710 |
|
| Owner Name 2: | 1/4 section #: |
3864 |
||
| Owner Name 3: | Parent Acct: |
|
||
| Billing Address: | 6825 NW 130TH ST | Tax District: |
|
|
| City, State, Zip | OKLAHOMA CITY, OK 73142-6011 | School System: |
Deer Creek #6 |
|
|
Country: (If noted) |
Land Size: |
0.1515 Acres |
||
|
Land Value: 33,990 |
|
|||
|
Sect 16-T13N-R4W Qtr NW |
WESTLAKE BLKS 8-10
Block
009
Lot
029
|
|||
| Full Legal Description: WESTLAKE BLKS 8-10 009 029 |
| Photo & Sketch (if available) | Comp Sales (ordered by relevancy) |
|
||||||||||||||||||
|
||||||||||||||||||||
| Value History (*The County Treasurer 405-713-1300 posts & collects actual tax amounts. Contact information HERE) | |||||||||||||
|---|---|---|---|---|---|---|---|---|---|---|---|---|---|
| Year | Market Value | Taxable Mkt Value | Gross Assessed | Exemption | Net Assessed | Millage | Est. Tax | Tax Savings | |||||
|
2025 |
220,000 |
171,571 |
18,872 |
1,000 |
17,872 |
129.51 |
$2,315 |
$819 |
|||||
|
2024 |
215,000 |
166,574 |
18,322 |
1,000 |
17,322 |
131.12 |
$2,271 |
$830 |
|||||
|
2023 |
203,000 |
161,723 |
17,789 |
1,000 |
16,789 |
131.55 |
$2,209 |
$729 |
|||||
|
2022 |
178,000 |
157,013 |
17,271 |
1,000 |
16,271 |
130.27 |
$2,120 |
$431 |
|||||
|
2021 |
155,500 |
152,440 |
16,768 |
1,000 |
15,768 |
127.63 |
$2,013 |
$171 |
|||||
| Property Account Status/Adjustments/Exemptions | ||
|---|---|---|
| Account # | Exemption Description | Amount |
|
R123451710 |
3% Cap Homestead |
0 |
|
R123451710 |
Homestead |
1,000 |
| Property Deed Transaction History (Recorded in the County Clerk's Office) | ||||||||||
|---|---|---|---|---|---|---|---|---|---|---|
| Date | Type | Book | Page | Price | Grantor | Grantee | ||||
|
3/12/2009 |
|
Deeds |
$131,000 |
GILLESPIE PAULA H |
GORDON SETH D & CAROL A |
|||||
|
11/3/2008 |
|
Deeds |
$0 |
GILLESPIE CAMPBELL M & PAULA H |
GILLESPIE PAULA H |
|||||
|
6/7/2004 |
|
Deeds |
$118,000 |
GREENE JEFFREY C & DEBORAH S |
GILLESPIE CAMPBELL M & PAULA H |
|||||
|
7/24/2002 |
|
Deeds |
$107,500 |
FAST BRAD LEE FAST CYNTHIA NADINE |
GREENE JEFFREY C & DEBORAH S |
|||||
|
3/22/1991 |
|
Historical |
$0 |
HEARTLAND HOMES |
FAST BRAD LEE |
|||||
| Last Mailed Notice of Value (N.O.V.) Information/History | ||||||||
|---|---|---|---|---|---|---|---|---|
| Year | Date | Market Value | Taxable Market Value | Gross Assessed | Exemption | Net Assessed | ||
|
2026 |
02/23/2026 |
221,500 |
176,718 |
19,438 |
1,000 |
18,438 |
||
|
2025 |
02/14/2025 |
220,000 |
171,571 |
18,872 |
1,000 |
17,872 |
||
|
2024 |
02/13/2024 |
215,000 |
166,574 |
18,322 |
1,000 |
17,322 |
||
|
2023 |
02/14/2023 |
203,000 |
161,723 |
17,789 |
1,000 |
16,789 |
||
|
2022 |
03/15/2022 |
178,000 |
157,013 |
17,271 |
1,000 |
16,271 |
||
| Property Building Permit History | |||||||||||
|---|---|---|---|---|---|---|---|---|---|---|---|
| Issued | Permit # | Provided by | Bldg # | Description | Est Construction Cost | Status | |||||
| No Building Permit records returned. | |||||||||||
| Click button on building number to access detailed information: | ||||||
|---|---|---|---|---|---|---|
| Bldg # | Vacant/Improved Land | Bldg Description | Year Built | SqFt | # Stories | |
|
1 |
Improved |
Ranch 1 Story |
1991 |
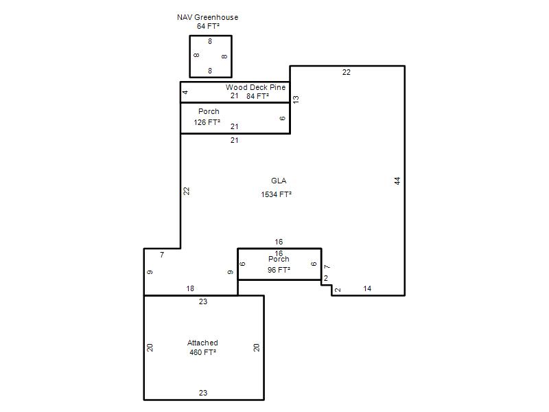
1,534 |
1 Stories |
|