|
|
|
| Larry Stein Oklahoma County Assessor (405) 713-1200 - Public Access System |
|
|
|
|
|
|
| Real Property Display - Screen Produced 3/25/2026 6:40:14 AM | ||||
|---|---|---|---|---|
| Account: R200351290 | Type: Residential | Location: |
6921 NW 133RD TER |
|
| Building Name/Occupant: |
|
OKLAHOMA CITY |
||
| Owner Name 1: | JACOBS ELOISE CLINE & WILLIAM L |
Parcel PIN#: |
3864-20-035-1290 |
|
| Owner Name 2: | 1/4 section #: |
3864 |
||
| Owner Name 3: | Parent Acct: |
|
||
| Billing Address: | 6921 NW 133RD TER | Tax District: |
|
|
| City, State, Zip | OKLAHOMA CITY, OK 73142-6066 | School System: |
Deer Creek #6 |
|
|
Country: (If noted) |
Land Size: |
0.1131 Acres |
||
|
Land Value: 30,442 |
|
|||
|
Sect 16-T13N-R4W Qtr NW |
WESTLAKE BLKS 25-28
Block
026
Lot
05A
|
|||
| Full Legal Description: WESTLAKE BLKS 25-28 026 05A |
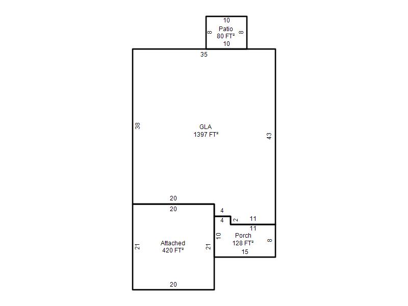
| Photo & Sketch (if available) | Comp Sales (ordered by relevancy) |
|
||||||||||||||||||
|
||||||||||||||||||||
| Value History (*The County Treasurer 405-713-1300 posts & collects actual tax amounts. Contact information HERE) | |||||||||||||
|---|---|---|---|---|---|---|---|---|---|---|---|---|---|
| Year | Market Value | Taxable Mkt Value | Gross Assessed | Exemption | Net Assessed | Millage | Est. Tax | Tax Savings | |||||
|
2025 |
221,000 |
138,859 |
15,274 |
15,274 |
0 |
129.51 |
$0 |
$3,148 |
|||||
|
2024 |
215,500 |
138,859 |
15,274 |
1,000 |
14,274 |
131.12 |
$1,872 |
$1,237 |
|||||
|
2023 |
202,500 |
138,859 |
15,274 |
1,000 |
14,274 |
131.55 |
$1,878 |
$1,052 |
|||||
|
2022 |
177,500 |
138,859 |
15,274 |
1,000 |
14,274 |
130.27 |
$1,860 |
$684 |
|||||
|
2021 |
153,000 |
138,859 |
15,274 |
1,000 |
14,274 |
127.63 |
$1,822 |
$326 |
|||||
| Property Account Status/Adjustments/Exemptions | ||
|---|---|---|
| Account # | Exemption Description | Amount |
|
R200351290 |
100% DAV Exemption |
100 |
|
R200351290 |
DAV Freeze Senior Valuation |
0 |
|
R200351290 |
3% Cap Homestead |
0 |
|
R200351290 |
DAV Homestead |
0 |
| Property Deed Transaction History (Recorded in the County Clerk's Office) | |||||||
|---|---|---|---|---|---|---|---|
| Date | Type | Book | Page | Price | Grantor | Grantee | |
|
7/10/2024 |
|
Deeds |
$0 |
POWELL ELOISE CLINE |
JACOBS ELOISE CLINE & WILLIAM L |
||
|
1/21/2005 |
|
Deeds |
$120,000 |
BELL DEVELOPMENT LLC |
POWELL ELOISE CLINE |
||
|
3/31/2000 |
|
Deeds |
$0 |
MCKEAN BELL DEVELOPMENT LLC |
BELL DEVELOPMENT LLC |
||
|
9/16/1997 |
|
Historical |
$0 |
|
MCKEAN-BELL DEVELOPMENT LLC |
||
| Last Mailed Notice of Value (N.O.V.) Information/History | ||||||||
|---|---|---|---|---|---|---|---|---|
| Year | Date | Market Value | Taxable Market Value | Gross Assessed | Exemption | Net Assessed | ||
|
2026 |
02/23/2026 |
222,000 |
138,859 |
15,274 |
15,274 |
0 |
||
|
2025 |
02/14/2025 |
221,000 |
138,859 |
15,274 |
15,274 |
0 |
||
|
2024 |
02/13/2024 |
215,500 |
138,859 |
15,274 |
1,000 |
14,274 |
||
|
2023 |
02/14/2023 |
202,500 |
138,859 |
15,274 |
1,000 |
14,274 |
||
|
2022 |
03/15/2022 |
177,500 |
138,859 |
15,274 |
1,000 |
14,274 |
||
| Property Building Permit History | ||||||
|---|---|---|---|---|---|---|
| Issued | Permit # | Provided by | Bldg # | Description | Est Construction Cost | Status |
|
6/22/2004 |
10293746 |
OKLAHOMA CITY |
1 |
Main Dwellin |
134,000 |
Inactive |
| Click button on building number to access detailed information: | ||||||
|---|---|---|---|---|---|---|
| Bldg # | Vacant/Improved Land | Bldg Description | Year Built | SqFt | # Stories | |
|
1 |
Improved |
Ranch 1 Story |
2004 |
1,397 |
1 Stories |
|