|
|
|
| Larry Stein Oklahoma County Assessor (405) 713-1200 - Public Access System |
|
|
|
|
|
|
| Real Property Display - Screen Produced 3/20/2026 5:52:25 AM | ||||
|---|---|---|---|---|
| Account: R148651200 | Type: Residential | Location: |
8008 NW 114TH ST |
|
| Building Name/Occupant: |
|
OKLAHOMA CITY |
||
| Owner Name 1: | NORTHWEST OKC PROPERTIES LLC |
Parcel PIN#: |
3873-14-865-1200 |
|
| Owner Name 2: | 1/4 section #: |
3873 |
||
| Owner Name 3: | Parent Acct: |
|
||
| Billing Address: | 2809 SPYGLASS HILL RD | Tax District: |
|
|
| City, State, Zip | EDMOND, OK 73034-8345 | School System: |
Putnam City #1 |
|
|
Country: (If noted) |
UNITED STATES |
Land Size: |
0.1752 Acres |
|
|
Land Value: 37,006 |
|
|||
|
Sect 19-T13N-R4W Qtr NE |
WILLOW CREEK ESTATES
Block
001
Lot
017
|
|||
| Full Legal Description: WILLOW CREEK ESTATES 001 017 |
| Photo & Sketch (if available) | Comp Sales (ordered by relevancy) |
|
||||||||||||||||||
|
||||||||||||||||||||
| Value History (*The County Treasurer 405-713-1300 posts & collects actual tax amounts. Contact information HERE) | |||||||||||||
|---|---|---|---|---|---|---|---|---|---|---|---|---|---|
| Year | Market Value | Taxable Mkt Value | Gross Assessed | Exemption | Net Assessed | Millage | Est. Tax | Tax Savings | |||||
|
2025 |
204,500 |
177,401 |
19,513 |
0 |
19,513 |
123.17 |
$2,404 |
$367 |
|||||
|
2024 |
201,000 |
168,954 |
18,583 |
0 |
18,583 |
122.30 |
$2,273 |
$431 |
|||||
|
2023 |
192,500 |
160,909 |
17,699 |
0 |
17,699 |
121.91 |
$2,158 |
$424 |
|||||
|
2022 |
164,500 |
153,247 |
16,856 |
0 |
16,856 |
123.41 |
$2,080 |
$153 |
|||||
|
2021 |
146,000 |
145,950 |
16,054 |
0 |
16,054 |
122.23 |
$1,962 |
$1 |
|||||
| Property Account Status/Adjustments/Exemptions | ||
|---|---|---|
| Account # | Exemption Description | Amount |
|
R148651200 |
5% Capped Account |
0 |
| Property Deed Transaction History (Recorded in the County Clerk's Office) | |||||||
|---|---|---|---|---|---|---|---|
| Date | Type | Book | Page | Price | Grantor | Grantee | |
|
3/28/2016 |
|
Hmstd Off & |
$0 |
POST DAVID |
NORTHWEST OKC PROPERTIES LLC |
||
|
8/28/2013 |
|
Other |
$0 |
FANNIE MAE |
POST DAVID & PAULA |
||
|
5/7/2013 |
|
Deeds |
$109,000 |
COUNTRYMAN FRANKLIN GLEN |
FANNIE MAE |
||
|
3/1/1985 |
|
Historical |
$0 |
|
COUNTRYMAN FRANKLIN GLEN |
||
| Last Mailed Notice of Value (N.O.V.) Information/History | ||||||||
|---|---|---|---|---|---|---|---|---|
| Year | Date | Market Value | Taxable Market Value | Gross Assessed | Exemption | Net Assessed | ||
|
2026 |
02/23/2026 |
210,500 |
186,271 |
20,489 |
0 |
20,489 |
||
|
2025 |
02/14/2025 |
204,500 |
177,401 |
19,513 |
0 |
19,513 |
||
|
2024 |
02/13/2024 |
201,000 |
168,954 |
18,583 |
0 |
18,583 |
||
|
2023 |
02/14/2023 |
192,500 |
160,909 |
17,699 |
0 |
17,699 |
||
|
2022 |
03/15/2022 |
164,500 |
153,247 |
16,856 |
0 |
16,856 |
||
| Property Building Permit History | |||||||||||
|---|---|---|---|---|---|---|---|---|---|---|---|
| Issued | Permit # | Provided by | Bldg # | Description | Est Construction Cost | Status | |||||
| No Building Permit records returned. | |||||||||||
| Click button on building number to access detailed information: | ||||||
|---|---|---|---|---|---|---|
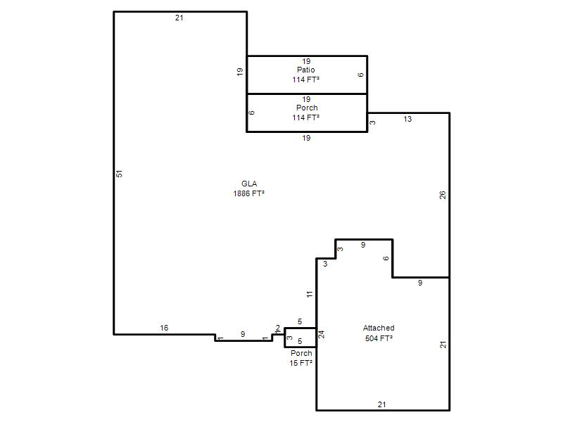
| Bldg # | Vacant/Improved Land | Bldg Description | Year Built | SqFt | # Stories | |
|
1 |
Improved |
Ranch 1 Story |
1977 |
1,886 |
1 Stories |
|