|
|
|
| Larry Stein Oklahoma County Assessor (405) 713-1200 - Public Access System |
|
|
|
|
|
|
| Real Property Display - Screen Produced 3/18/2026 12:01:36 PM | ||||
|---|---|---|---|---|
| Account: R182271260 | Type: Residential | Location: |
11600 WESTERNVIEW DR |
|
| Building Name/Occupant: |
|
OKLAHOMA CITY |
||
| Owner Name 1: | LAPSLEY WILLIAM D |
Parcel PIN#: |
3873-18-227-1260 |
|
| Owner Name 2: | 1/4 section #: |
3873 |
||
| Owner Name 3: | Parent Acct: |
|
||
| Billing Address: | 11600 WESTERN VIEW DR | Tax District: |
|
|
| City, State, Zip | OKLAHOMA CITY, OK 73162-2036 | School System: |
Putnam City #1 |
|
|
Country: (If noted) |
Land Size: |
0.1665 Acres |
||
|
Land Value: 35,172 |
|
|||
|
Sect 19-T13N-R4W Qtr NE |
WILLOW CREEK ESTATES 2ND
Block
010
Lot
034
|
|||
| Full Legal Description: WILLOW CREEK ESTATES 2ND 010 034 |
| Photo & Sketch (if available) | Comp Sales (ordered by relevancy) |
|
||||||||||||||||||
|
||||||||||||||||||||
| Value History (*The County Treasurer 405-713-1300 posts & collects actual tax amounts. Contact information HERE) | |||||||||||||
|---|---|---|---|---|---|---|---|---|---|---|---|---|---|
| Year | Market Value | Taxable Mkt Value | Gross Assessed | Exemption | Net Assessed | Millage | Est. Tax | Tax Savings | |||||
|
2025 |
205,500 |
177,401 |
19,513 |
0 |
19,513 |
123.17 |
$2,404 |
$381 |
|||||
|
2024 |
200,500 |
168,954 |
18,583 |
0 |
18,583 |
122.30 |
$2,273 |
$424 |
|||||
|
2023 |
191,500 |
160,909 |
17,699 |
0 |
17,699 |
121.91 |
$2,158 |
$410 |
|||||
|
2022 |
164,500 |
153,247 |
16,856 |
0 |
16,856 |
123.41 |
$2,080 |
$153 |
|||||
|
2021 |
146,000 |
145,950 |
16,054 |
0 |
16,054 |
122.23 |
$1,962 |
$1 |
|||||
| Property Account Status/Adjustments/Exemptions | ||
|---|---|---|
| Account # | Exemption Description | Amount |
|
R182271260 |
5% Capped Account |
0 |
| Property Deed Transaction History (Recorded in the County Clerk's Office) | ||||||||||
|---|---|---|---|---|---|---|---|---|---|---|
| Date | Type | Book | Page | Price | Grantor | Grantee | ||||
|
10/3/2024 |
|
Hmstd Off & |
$0 |
LAPSLEY SUSAN & WILLIAM D |
LAPSLEY WILLIAM D |
|||||
|
10/10/2013 |
|
Deeds |
$0 |
FUNK SUSAN J |
LAPSLEY SUSAN & WILLIAM D |
|||||
|
6/11/1997 |
|
Historical |
$0 |
FUNK MATTHEW L & SUSAN J |
FUNK SUSAN J |
|||||
|
4/2/1992 |
|
Historical |
$68,000 |
JOHNSON ROGER A & CARLA D |
FUNK MATTHEW L & SUSAN J |
|||||
|
9/21/1990 |
|
Historical |
$65,500 |
CORBETT KEVIN S & PEGGY A |
JOHNSON ROGER A & CARLA D |
|||||
| Last Mailed Notice of Value (N.O.V.) Information/History | ||||||||
|---|---|---|---|---|---|---|---|---|
| Year | Date | Market Value | Taxable Market Value | Gross Assessed | Exemption | Net Assessed | ||
|
2026 |
02/23/2026 |
211,000 |
186,271 |
20,489 |
0 |
20,489 |
||
|
2025 |
02/14/2025 |
205,500 |
177,401 |
19,513 |
0 |
19,513 |
||
|
2024 |
02/13/2024 |
200,500 |
168,954 |
18,583 |
0 |
18,583 |
||
|
2023 |
02/14/2023 |
191,500 |
160,909 |
17,699 |
0 |
17,699 |
||
|
2022 |
03/15/2022 |
164,500 |
153,247 |
16,856 |
0 |
16,856 |
||
| Property Building Permit History | |||||||||||
|---|---|---|---|---|---|---|---|---|---|---|---|
| Issued | Permit # | Provided by | Bldg # | Description | Est Construction Cost | Status | |||||
| No Building Permit records returned. | |||||||||||
| Click button on building number to access detailed information: | ||||||
|---|---|---|---|---|---|---|
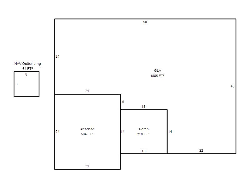
| Bldg # | Vacant/Improved Land | Bldg Description | Year Built | SqFt | # Stories | |
|
1 |
Improved |
Ranch 1 Story |
1977 |
1,885 |
1 Stories |
|