|
|
|
| Larry Stein Oklahoma County Assessor (405) 713-1200 - Public Access System |
|
|
|
|
|
|
| Real Property Display - Screen Produced 3/18/2026 12:02:57 PM | ||||
|---|---|---|---|---|
| Account: R182271640 | Type: Residential | Location: |
8217 NW 115TH ST |
|
| Building Name/Occupant: |
|
OKLAHOMA CITY |
||
| Owner Name 1: | MKED LLC |
Parcel PIN#: |
3873-18-227-1640 |
|
| Owner Name 2: | 1/4 section #: |
3873 |
||
| Owner Name 3: | C/O EVANS & DAVIS | Parent Acct: |
|
|
| Billing Address: | 211 N BROADWAY | Tax District: |
|
|
| City, State, Zip | EDMOND, OK 73034 | School System: |
Putnam City #1 |
|
|
Country: (If noted) |
Land Size: |
0.1773 Acres |
||
|
Land Value: 37,452 |
|
|||
|
Sect 19-T13N-R4W Qtr NE |
WILLOW CREEK ESTATES 2ND
Block
012
Lot
010
|
|||
| Full Legal Description: WILLOW CREEK ESTATES 2ND 012 010 |
| Photo & Sketch (if available) | Comp Sales (ordered by relevancy) |
|
||||||||||||||||||
|
||||||||||||||||||||
| Value History (*The County Treasurer 405-713-1300 posts & collects actual tax amounts. Contact information HERE) | |||||||||||||
|---|---|---|---|---|---|---|---|---|---|---|---|---|---|
| Year | Market Value | Taxable Mkt Value | Gross Assessed | Exemption | Net Assessed | Millage | Est. Tax | Tax Savings | |||||
|
2025 |
302,500 |
258,901 |
28,479 |
0 |
28,479 |
123.17 |
$3,508 |
$591 |
|||||
|
2024 |
297,000 |
246,573 |
27,122 |
0 |
27,122 |
122.30 |
$3,317 |
$678 |
|||||
|
2023 |
278,500 |
234,832 |
25,831 |
0 |
25,831 |
121.91 |
$3,149 |
$586 |
|||||
|
2022 |
243,500 |
223,650 |
24,601 |
0 |
24,601 |
123.41 |
$3,036 |
$269 |
|||||
|
2021 |
213,000 |
213,000 |
23,430 |
0 |
23,430 |
122.23 |
$2,864 |
$0 |
|||||
| Property Account Status/Adjustments/Exemptions | ||
|---|---|---|
| Account # | Exemption Description | Amount |
|
R182271640 |
5% Capped Account |
0 |
| Property Deed Transaction History (Recorded in the County Clerk's Office) | |||||||
|---|---|---|---|---|---|---|---|
| Date | Type | Book | Page | Price | Grantor | Grantee | |
|
12/4/2016 |
|
Other |
$0 |
BROWNEN MICHAEL & KIMBERLY |
MKED LLC |
||
|
9/20/2010 |
|
Deeds |
$110,000 |
LAUBACH RODNEY J |
BROWNEN MICHAEL D & KIMBERLY D |
||
|
12/11/2009 |
|
Hmstd Off & |
$0 |
LAUBACH ADELINE B & RODNEY TRS LAUBACH ADELINE B REV TRUST |
LAUBACH RODNEY J |
||
|
8/31/1998 |
|
Historical |
$0 |
LAUBACH ADELINE B |
LAUBACH ADELINE B & RODNEY TRS |
||
|
6/1/1983 |
|
Historical |
$0 |
|
LAUBACH ADELINE B |
||
| Last Mailed Notice of Value (N.O.V.) Information/History | ||||||||
|---|---|---|---|---|---|---|---|---|
| Year | Date | Market Value | Taxable Market Value | Gross Assessed | Exemption | Net Assessed | ||
|
2026 |
02/23/2026 |
308,500 |
271,846 |
29,902 |
0 |
29,902 |
||
|
2025 |
02/14/2025 |
302,500 |
258,901 |
28,479 |
0 |
28,479 |
||
|
2024 |
02/13/2024 |
297,000 |
246,573 |
27,122 |
0 |
27,122 |
||
|
2023 |
02/14/2023 |
278,500 |
234,832 |
25,831 |
0 |
25,831 |
||
|
2022 |
03/15/2022 |
243,500 |
223,650 |
24,601 |
0 |
24,601 |
||
| Property Building Permit History | |||||||||||
|---|---|---|---|---|---|---|---|---|---|---|---|
| Issued | Permit # | Provided by | Bldg # | Description | Est Construction Cost | Status | |||||
| No Building Permit records returned. | |||||||||||
| Click button on building number to access detailed information: | ||||||
|---|---|---|---|---|---|---|
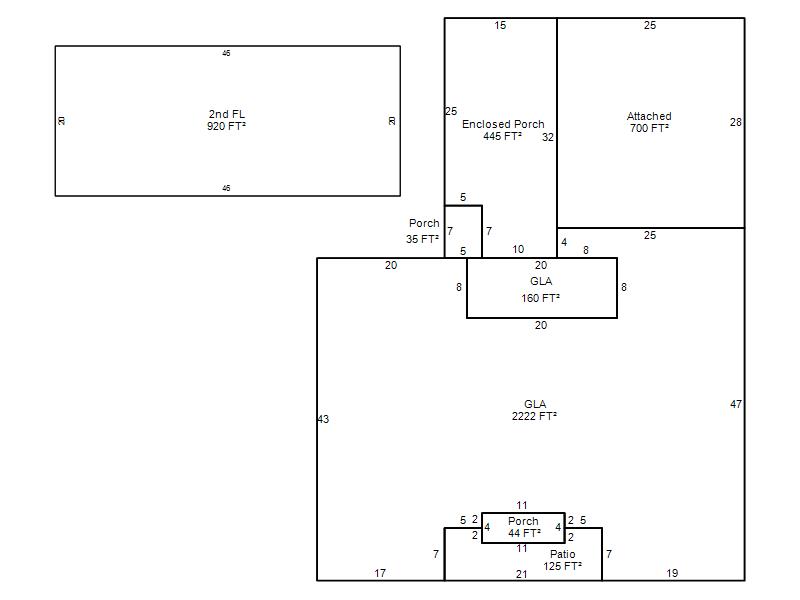
| Bldg # | Vacant/Improved Land | Bldg Description | Year Built | SqFt | # Stories | |
|
1 |
Improved |
1½ Story Fin |
1976 |
3,302 |
1.5 Stories |
|