|
|
|
| Larry Stein Oklahoma County Assessor (405) 713-1200 - Public Access System |
|
|
|
|
|
|
| Real Property Display - Screen Produced 3/18/2026 12:02:58 PM | ||||
|---|---|---|---|---|
| Account: R182271690 | Type: Residential | Location: |
11625 WESTERNVIEW DR |
|
| Building Name/Occupant: |
|
OKLAHOMA CITY |
||
| Owner Name 1: | JAMES SIMON & ABBIE |
Parcel PIN#: |
3873-18-227-1690 |
|
| Owner Name 2: | 1/4 section #: |
3873 |
||
| Owner Name 3: | Parent Acct: |
|
||
| Billing Address: | 11625 WESTERN VIEW DR | Tax District: |
|
|
| City, State, Zip | OKLAHOMA CITY, OK 73162 | School System: |
Putnam City #1 |
|
|
Country: (If noted) |
UNITED STATES |
Land Size: |
0.1880 Acres |
|
|
Land Value: 39,722 |
|
|||
|
Sect 19-T13N-R4W Qtr NE |
WILLOW CREEK ESTATES 2ND
Block
012
Lot
015
|
|||
| Full Legal Description: WILLOW CREEK ESTATES 2ND 012 015 |
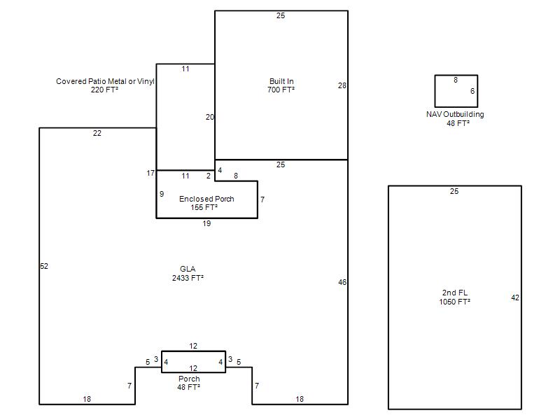
| Photo & Sketch (if available) | Comp Sales (ordered by relevancy) |
|
||||||||||||||||||
|
||||||||||||||||||||
| Value History (*The County Treasurer 405-713-1300 posts & collects actual tax amounts. Contact information HERE) | |||||||||||||
|---|---|---|---|---|---|---|---|---|---|---|---|---|---|
| Year | Market Value | Taxable Mkt Value | Gross Assessed | Exemption | Net Assessed | Millage | Est. Tax | Tax Savings | |||||
|
2025 |
309,500 |
309,500 |
34,045 |
1,000 |
33,045 |
123.17 |
$4,070 |
$123 |
|||||
|
2024 |
304,000 |
304,000 |
33,440 |
0 |
33,440 |
122.30 |
$4,090 |
$0 |
|||||
|
2023 |
306,000 |
306,000 |
33,660 |
0 |
33,660 |
121.91 |
$4,103 |
$0 |
|||||
|
2022 |
247,500 |
223,849 |
24,623 |
1,000 |
23,623 |
123.41 |
$2,915 |
$444 |
|||||
|
2021 |
217,500 |
217,330 |
23,906 |
1,000 |
22,906 |
122.23 |
$2,800 |
$125 |
|||||
| Property Account Status/Adjustments/Exemptions | ||
|---|---|---|
| Account # | Exemption Description | Amount |
|
R182271690 |
Homestead |
1,000 |
|
R182271690 |
3% Cap Homestead |
0 |
| Property Deed Transaction History (Recorded in the County Clerk's Office) | ||||||||||
|---|---|---|---|---|---|---|---|---|---|---|
| Date | Type | Book | Page | Price | Grantor | Grantee | ||||
|
9/30/2022 |
|
Deeds |
$305,000 |
PAXTON EVELYN & THERMAN L |
JAMES SIMON & ABBIE |
|||||
|
6/29/2009 |
|
Hmstd Off & |
$0 |
KLOPFENSTINE BENJAMIN & EDNA 2007 IRREV LIVING TRUST |
PAXTON EVELYN & THERMAN L |
|||||
|
6/10/2009 |
|
Hmstd Off & |
$0 |
KLOPFENSTINE BENJAMIN G & EDNA PAXTON THERMAN L & EVELYN M |
KLOPFENSTINE BENJAMIN & EDNA 2007 IRREV LIVING TRUST |
|||||
|
7/11/2007 |
|
Deeds |
$197,500 |
AKINS SCOT R & CHRISTIE L |
KLOPFENSTINE BENJAMIN G & EDNA PAXTON THERMAN L & EVELYN M |
|||||
|
5/1/1990 |
|
Historical |
$113,500 |
HORNER FRANKLIN D & CATHRINE G |
AKINS SCOT R & CHRISTIE L |
|||||
| Last Mailed Notice of Value (N.O.V.) Information/History | ||||||||
|---|---|---|---|---|---|---|---|---|
| Year | Date | Market Value | Taxable Market Value | Gross Assessed | Exemption | Net Assessed | ||
|
2026 |
02/23/2026 |
316,500 |
316,500 |
34,815 |
1,000 |
33,815 |
||
|
2025 |
02/14/2025 |
309,500 |
309,500 |
34,045 |
0 |
34,045 |
||
|
2023 |
02/14/2023 |
306,000 |
306,000 |
33,660 |
0 |
33,660 |
||
|
2022 |
03/15/2022 |
247,500 |
223,849 |
24,623 |
1,000 |
23,623 |
||
|
2021 |
03/19/2021 |
217,500 |
217,330 |
23,906 |
1,000 |
22,906 |
||
| Property Building Permit History | |||||||||||
|---|---|---|---|---|---|---|---|---|---|---|---|
| Issued | Permit # | Provided by | Bldg # | Description | Est Construction Cost | Status | |||||
| No Building Permit records returned. | |||||||||||
| Click button on building number to access detailed information: | ||||||
|---|---|---|---|---|---|---|
| Bldg # | Vacant/Improved Land | Bldg Description | Year Built | SqFt | # Stories | |
|
1 |
Improved |
1½ Story Fin |
1976 |
3,483 |
1.5 Stories |
|