|
|
|
| Larry Stein Oklahoma County Assessor (405) 713-1200 - Public Access System |
|
|
|
|
|
|
| Real Property Display - Screen Produced 3/18/2026 11:57:43 AM | ||||
|---|---|---|---|---|
| Account: R182271740 | Type: Residential | Location: |
8300 NW 116TH ST |
|
| Building Name/Occupant: |
|
OKLAHOMA CITY |
||
| Owner Name 1: | KOTTUNJALIL ACHENKUNJU JOHN |
Parcel PIN#: |
3873-18-227-1740 |
|
| Owner Name 2: | KOTTUNJALIL JAYSON JOHN | 1/4 section #: |
3873 |
|
| Owner Name 3: | Parent Acct: |
|
||
| Billing Address: | 6717 NW 118TH ST | Tax District: |
|
|
| City, State, Zip | OKLAHOMA CITY, OK 73162-1738 | School System: |
Putnam City #1 |
|
|
Country: (If noted) |
Land Size: |
0.2310 Acres |
||
|
Land Value: 40,056 |
|
|||
|
Sect 19-T13N-R4W Qtr NE |
WILLOW CREEK ESTATES 2ND
Block
012
Lot
020
|
|||
| Full Legal Description: WILLOW CREEK ESTATES 2ND 012 020 |
| Photo & Sketch (if available) | Comp Sales (ordered by relevancy) |
|
||||||||||||||||||
|
||||||||||||||||||||
| Value History (*The County Treasurer 405-713-1300 posts & collects actual tax amounts. Contact information HERE) | |||||||||||||
|---|---|---|---|---|---|---|---|---|---|---|---|---|---|
| Year | Market Value | Taxable Mkt Value | Gross Assessed | Exemption | Net Assessed | Millage | Est. Tax | Tax Savings | |||||
|
2025 |
271,500 |
221,669 |
24,383 |
0 |
24,383 |
123.17 |
$3,003 |
$675 |
|||||
|
2024 |
268,000 |
211,114 |
23,221 |
0 |
23,221 |
122.30 |
$2,840 |
$765 |
|||||
|
2023 |
254,500 |
201,061 |
22,116 |
1,000 |
21,116 |
121.91 |
$2,574 |
$839 |
|||||
|
2022 |
218,000 |
195,205 |
21,472 |
1,000 |
20,472 |
123.41 |
$2,527 |
$433 |
|||||
|
2021 |
193,500 |
189,520 |
20,847 |
1,000 |
19,847 |
122.23 |
$2,426 |
$176 |
|||||
| Property Account Status/Adjustments/Exemptions | ||||||
|---|---|---|---|---|---|---|
| Account # | Exemption Description | Amount | ||||
| No adjustment/exemption records returned. | ||||||
| Property Deed Transaction History (Recorded in the County Clerk's Office) | ||||||||||
|---|---|---|---|---|---|---|---|---|---|---|
| Date | Type | Book | Page | Price | Grantor | Grantee | ||||
|
1/22/2026 |
|
Hmstd Off & |
$0 |
KOTTUNJALIL ACHENKUNJU JOHN |
KOTTUNJALIL ACHENKUNJU JOHN |
|||||
|
5/8/2025 |
|
Deeds |
$205,000 |
MORTGAGE ASSETS MANAGEMENT LLC |
KOTTUNJALIL ACHENKUNJU JOHN |
|||||
|
3/11/2025 |
|
Hmstd Off & |
$0 |
WALTHALL ROSEMARY R |
CASCADE FUNDING MORTGAGE TRUST HB15 |
|||||
|
10/19/2012 |
|
Deeds |
$0 |
WALTHALL ROSEMARY R PERS REP EST RUEL ERWIN WALTHALL |
WALTHALL ROSEMARY R |
|||||
|
4/16/2001 |
|
Deeds |
$0 |
WALTHALL ROSEMARY R & RUEL E |
WALTHALL ROSEMARY R PERS REP EST RUEL ERWIN WALTHALL |
|||||
| Last Mailed Notice of Value (N.O.V.) Information/History | ||||||||
|---|---|---|---|---|---|---|---|---|
| Year | Date | Market Value | Taxable Market Value | Gross Assessed | Exemption | Net Assessed | ||
|
2026 |
02/23/2026 |
281,500 |
281,500 |
30,965 |
0 |
30,965 |
||
|
2025 |
02/14/2025 |
271,500 |
221,669 |
24,383 |
0 |
24,383 |
||
|
2024 |
02/13/2024 |
268,000 |
211,114 |
23,221 |
0 |
23,221 |
||
|
2023 |
02/14/2023 |
254,500 |
201,061 |
22,116 |
1,000 |
21,116 |
||
|
2022 |
03/15/2022 |
218,000 |
195,205 |
21,472 |
1,000 |
20,472 |
||
| Property Building Permit History | |||||||||||
|---|---|---|---|---|---|---|---|---|---|---|---|
| Issued | Permit # | Provided by | Bldg # | Description | Est Construction Cost | Status | |||||
| No Building Permit records returned. | |||||||||||
| Click button on building number to access detailed information: | ||||||
|---|---|---|---|---|---|---|
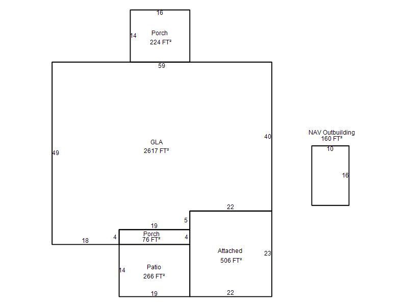
| Bldg # | Vacant/Improved Land | Bldg Description | Year Built | SqFt | # Stories | |
|
1 |
Improved |
Ranch 1 Story |
1976 |
2,617 |
1 Stories |
|