|
|
|
| Larry Stein Oklahoma County Assessor (405) 713-1200 - Public Access System |
|
|
|
|
|
|
| Real Property Display - Screen Produced 3/18/2026 5:02:50 PM | ||||
|---|---|---|---|---|
| Account: R183311070 | Type: Residential | Location: |
8301 NW 119TH ST |
|
| Building Name/Occupant: |
|
OKLAHOMA CITY |
||
| Owner Name 1: | THOMAS CAPITAL INVESTMENTS LLC |
Parcel PIN#: |
3873-18-331-1070 |
|
| Owner Name 2: | 1/4 section #: |
3873 |
||
| Owner Name 3: | Parent Acct: |
|
||
| Billing Address: | 3101 WESTBURY GLEN BLVD | Tax District: |
|
|
| City, State, Zip | OKLAHOMA CITY, OK 73179 | School System: |
Putnam City #1 |
|
|
Country: (If noted) |
Land Size: |
0.2163 Acres |
||
|
Land Value: 30,587 |
|
|||
|
Sect 19-T13N-R4W Qtr NE |
WILLOW CREEK ESTATES #4
Block
026
Lot
008
|
|||
| Full Legal Description: WILLOW CREEK ESTATES #4 026 008 |
| Photo & Sketch (if available) | Comp Sales (ordered by relevancy) |
|
||||||||||||||||||
|
||||||||||||||||||||
| Value History (*The County Treasurer 405-713-1300 posts & collects actual tax amounts. Contact information HERE) | |||||||||||||
|---|---|---|---|---|---|---|---|---|---|---|---|---|---|
| Year | Market Value | Taxable Mkt Value | Gross Assessed | Exemption | Net Assessed | Millage | Est. Tax | Tax Savings | |||||
|
2025 |
309,500 |
177,694 |
19,545 |
0 |
19,545 |
123.17 |
$2,408 |
$1,786 |
|||||
|
2024 |
308,500 |
169,233 |
18,615 |
0 |
18,615 |
122.30 |
$2,277 |
$1,874 |
|||||
|
2023 |
294,000 |
161,175 |
17,729 |
0 |
17,729 |
121.91 |
$2,161 |
$1,781 |
|||||
|
2022 |
153,500 |
153,500 |
16,885 |
0 |
16,885 |
123.41 |
$2,084 |
$0 |
|||||
|
2021 |
221,500 |
221,500 |
24,365 |
0 |
24,365 |
122.23 |
$2,978 |
$0 |
|||||
| Property Account Status/Adjustments/Exemptions | ||
|---|---|---|
| Account # | Exemption Description | Amount |
|
R183311070 |
5% Capped Account |
0 |
| Property Deed Transaction History (Recorded in the County Clerk's Office) | ||||||||||
|---|---|---|---|---|---|---|---|---|---|---|
| Date | Type | Book | Page | Price | Grantor | Grantee | ||||
|
6/30/2022 |
|
Hmstd Off & |
$0 |
THOMAS PUNNOSE K & JOSSY |
THOMAS CAPITAL INVESTMENTS LLC |
|||||
|
4/30/2021 |
|
Hmstd Off & |
$ |
JONES B ALLEN & DORIS ANN TRS |
JONES DORIS A |
|||||
|
4/30/2021 |
|
Deeds |
$150,000 |
JONES DORIS A |
THOMAS PUNNOSE K & JOSSY |
|||||
|
7/28/2016 |
|
Deeds |
$0 |
JONES B ALLEN & DORIS A |
JONES B ALLEN & DORIS ANN TRS |
|||||
|
5/15/2009 |
|
Deeds |
$126,000 |
FEDERAL NATIONAL MORTGAGE ASSOCIATION |
JONES B ALLEN & DORIS A |
|||||
| Last Mailed Notice of Value (N.O.V.) Information/History | ||||||||
|---|---|---|---|---|---|---|---|---|
| Year | Date | Market Value | Taxable Market Value | Gross Assessed | Exemption | Net Assessed | ||
|
2026 |
02/23/2026 |
328,000 |
186,578 |
20,523 |
0 |
20,523 |
||
|
2025 |
02/14/2025 |
309,500 |
177,694 |
19,545 |
0 |
19,545 |
||
|
2024 |
02/13/2024 |
308,500 |
169,233 |
18,615 |
0 |
18,615 |
||
|
2023 |
02/14/2023 |
294,000 |
161,175 |
17,729 |
0 |
17,729 |
||
|
2021 |
03/19/2021 |
221,500 |
221,500 |
24,365 |
0 |
24,365 |
||
| Property Building Permit History | |||||||||||
|---|---|---|---|---|---|---|---|---|---|---|---|
| Issued | Permit # | Provided by | Bldg # | Description | Est Construction Cost | Status | |||||
| No Building Permit records returned. | |||||||||||
| Click button on building number to access detailed information: | ||||||
|---|---|---|---|---|---|---|
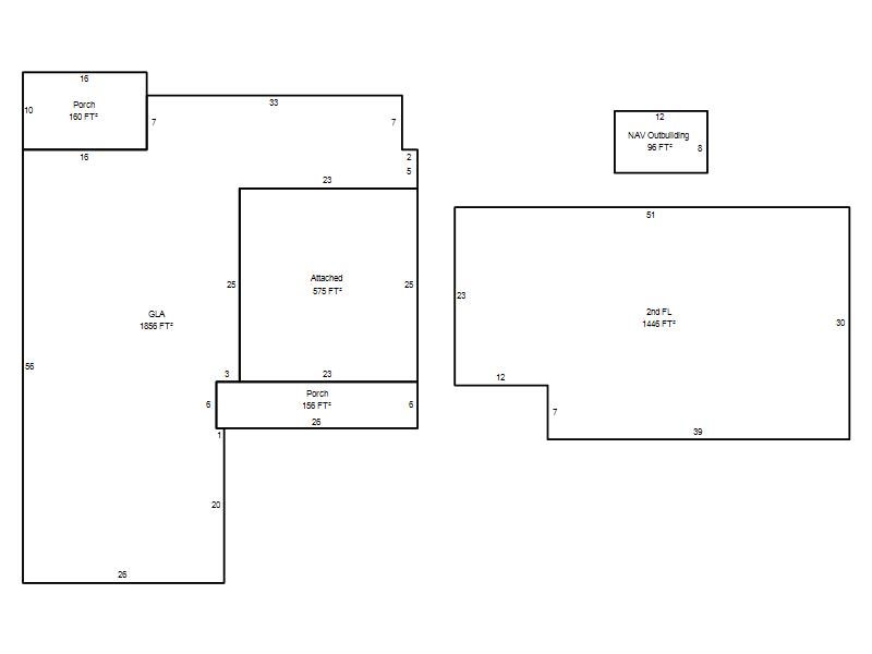
| Bldg # | Vacant/Improved Land | Bldg Description | Year Built | SqFt | # Stories | |
|
1 |
Improved |
2 Story |
1979 |
3,302 |
2 Stories |
|